Bénéficiez des services de nos partenaires locaux soigneusement sélectionnés
pour vous accompagner dans votre parcours d'achat immobilier

Maison coup de cœur au cœur de Feyzin 3 chambres, jardin

— Feyzin 69320 —
309 000 €
79 m² / 300 m²
4 pièces
parkingbalcon/terrasse

Nos partenaires locaux
EXCLUSIVITÉ – Céline H IMMO & Vincent PR IMMO

Maison coup de cœur au cœur de Feyzin
À deux pas de toutes les commodités, découvrez cette maison clé en main, fonctionnelle et idéalement située. Une opportunité rare pour celles et ceux qui recherchent confort, praticité et qualité de vie.
D'une surface d'environ 80 m² environ, cette charmante maison est implantée sur un terrain clos et arboré d'environ 300 m² environ, parfait pour profiter de moments conviviaux en famille ou entre amis.

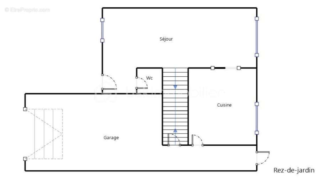
Au rez-de-chaussée :
Une cuisine conviviale
Un salon-séjour lumineux, idéal pour les instants de partage
Un WC indépendant

À l'étage :
3 chambres
Un dressing partagé sur le palier
Une salle de bain et un second WC

Les + qui font la différence :
Sous-sol total, offrant un bel espace de stockage ou une cave idéale pour les amateurs de vin
Garage
Climatisation réversible
Emplacement ultra pratique : commerces, écoles et services accessibles à pied

Cette maison est idéale pour une famille, un premier achat ou un investissement serein.

À visiter sans tarder !
Contactez-nous dès maintenant pour plus d'informations ou pour organiser une visite 7j/7

Cette annonce référence 318800 vous est présentée par votre agent commercial BSK Immobilier VINCENT PAYA-ROSET (EI) immatriculé au RSAC de LACHAPELLE-SOUS-AUBENAS (07200) sous le numéro 81[Coordonnées masquées]35.

Prix du bien : 309 000,00 €
Les honoraires d'agence sont à la charge du vendeur.

A propos de la copropriété :
Pas de procédure en cours.
Nombre de lots : 9
Charges prévisionnelles annuelles : 120,00 €

A propos des performances énergétiques :
Date de réalisation du diagnostic énergétique : 04/02/2026
Score DPE : 186 kWhEP/m²/an
Score GES : 7 kgepCO2/m²/an
Montant estimé des dépenses annuelles d'énergie pour un usage standard : entre 1380.00 € et 1930.00 € par an. Prix moyens des énergies indexés sur l'année 2023 (abonnements compris).

Les informations sur les risques auxquels ce bien est exposé sont disponibles sur le site Géorisques : www.georisques.gouv.fr
Voir plus

Référence: 318800
Bien en copropriété. Nombre de lots : 9. Charges de copropriété : 10 €.
Honoraires à la charge du vendeur.
DPE
A
B
C
D
E
F
G
GES
A
B
C
D
E
F
G
Maison à FEYZIN
Maison à FEYZIN
Maison à FEYZIN
Maison à FEYZIN
Maison à FEYZIN
Maison à FEYZIN
Maison à FEYZIN
Maison à FEYZIN
Maison à FEYZIN
Maison à FEYZIN
Maison à FEYZIN
Maison à FEYZIN
Maison à FEYZIN
Maison à FEYZIN
Maison à FEYZIN
Maison à FEYZIN
Maison à FEYZIN
Maison à FEYZIN
Maison à FEYZIN
Géorisques

Les informations sur les risques auxquels ce bien est exposé sont disponibles sur le site Géorisques : www.georisques.gouv.fr

Ce site est protégé par hCaptcha Politique de confidentialité et Conditions d’utilisation s’appliquent.

En poursuivant votre navigation sans modifier vos paramètres, vous acceptez l'utilisation de cookies susceptibles de réaliser des statistiques de visite. Cliquez ici pour plus d'informations