Bénéficiez des services de nos partenaires locaux soigneusement sélectionnés
pour vous accompagner dans votre parcours d'achat immobilier

Terrain 826 m² à Lissieu

— Lissieu 69380 —
310 000 €
826 m²

Nos partenaires locaux
Iad France - Pauline Velozzo vous propose : Très belle opportunité à saisir - LISSIEU limite Limonest - Secteur résidentiel et calme

Terrain plat et viabilisé de 826 m² avec permis de construire - zone URI2B.
Localisation idéale, à proximité des commerces, écoles, transports.
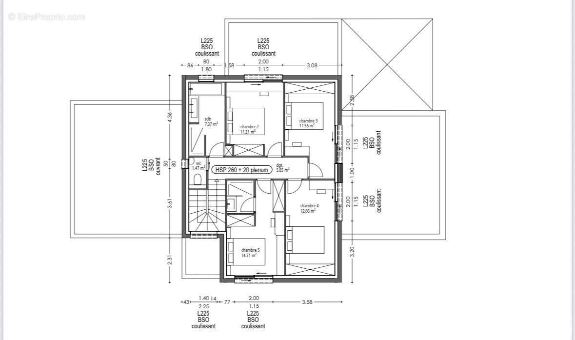
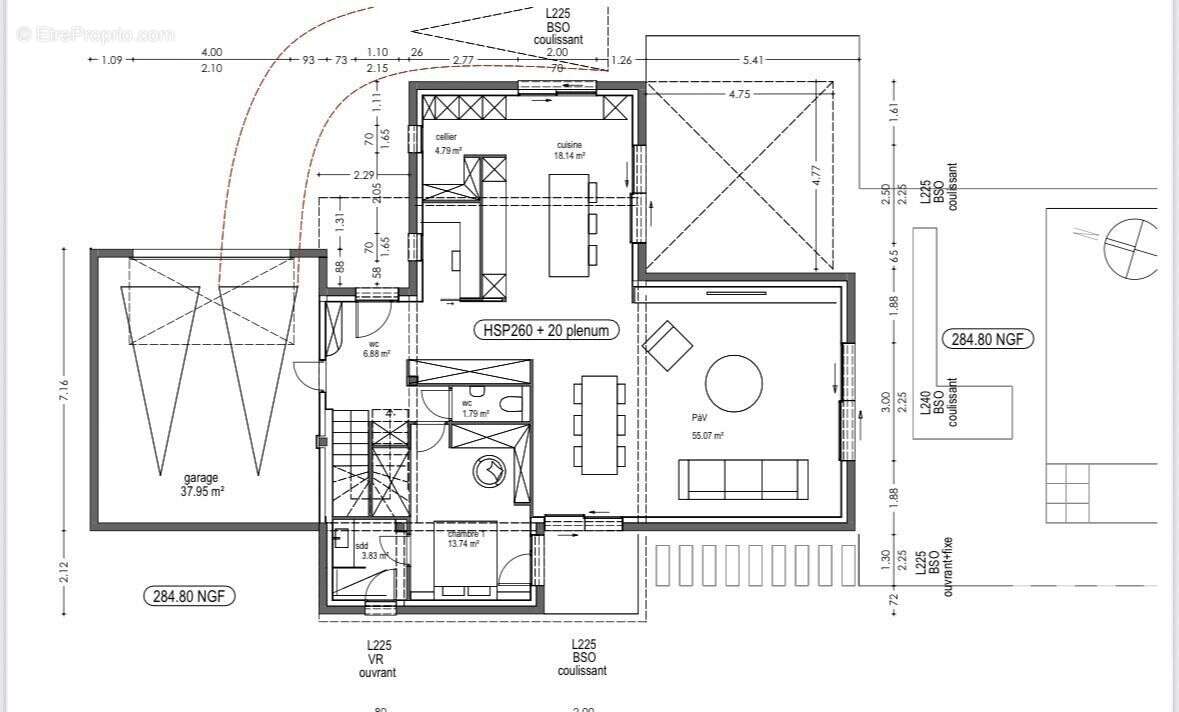
Architecte du projet : Martin&Martin - Prestations haut de gamme - RT2020 - Très belle orientation EST-SUD-OUEST
Permis obtenu pour une maison contemporaine d'habitation en R + 1 d'une surface de plancher de 175 m² environ. PIèce à vivre de près de 75 m², 4 chambres.
Grand garage (près de 40 m²). Piscine.

ATOUT MAJEUR : Lancement de la construction possible dès le lendemain de l'acquisition !

Photos non contractuelles

Honoraires d'agence à la charge du vendeur.
Bien non soumis au DPE. Les informations sur les risques auxquels ce bien est exposé, y compris l'obligation légale de débroussaillement, sont disponibles sur le site Géorisques : http://www.georisques.gouv.fr.
La présente annonce immobilière a été rédigée sous la responsabilité éditoriale de Mme Pauline Velozzo mandataire indépendant en immobilier (sans détention de fonds), agent commercial de la SAS I@D France immatriculé au RSAC de LYON sous le numéro 938283462, titulaire de la carte de démarchage immobilier pour le compte de la société I@D France SAS.Informations LOI ALUR : Honoraires charge vendeur. (gedeon_6727_32923269)
Voir plus

Référence: 1812975
Honoraires à la charge du vendeur.
Barème des honoraires
Photo 1 - Terrain à LISSIEU
Photo 1
Photo 2 - Terrain à LISSIEU
Photo 2
Photo 3 - Terrain à LISSIEU
Photo 3
Photo 4 - Terrain à LISSIEU
Photo 4
Photo 5 - Terrain à LISSIEU
Photo 5
Photo 6 - Terrain à LISSIEU
Photo 6
Photo 7 - Terrain à LISSIEU
Photo 7
Géorisques

Les informations sur les risques auxquels ce bien est exposé sont disponibles sur le site Géorisques : www.georisques.gouv.fr

Ce site est protégé par hCaptcha Politique de confidentialité et Conditions d’utilisation s’appliquent.

En poursuivant votre navigation sans modifier vos paramètres, vous acceptez l'utilisation de cookies susceptibles de réaliser des statistiques de visite. Cliquez ici pour plus d'informations