Bénéficiez des services de nos partenaires locaux soigneusement sélectionnés
pour vous accompagner dans votre parcours d'achat immobilier

Maison en pierres

— Pontoise 95300 —
545 000 €
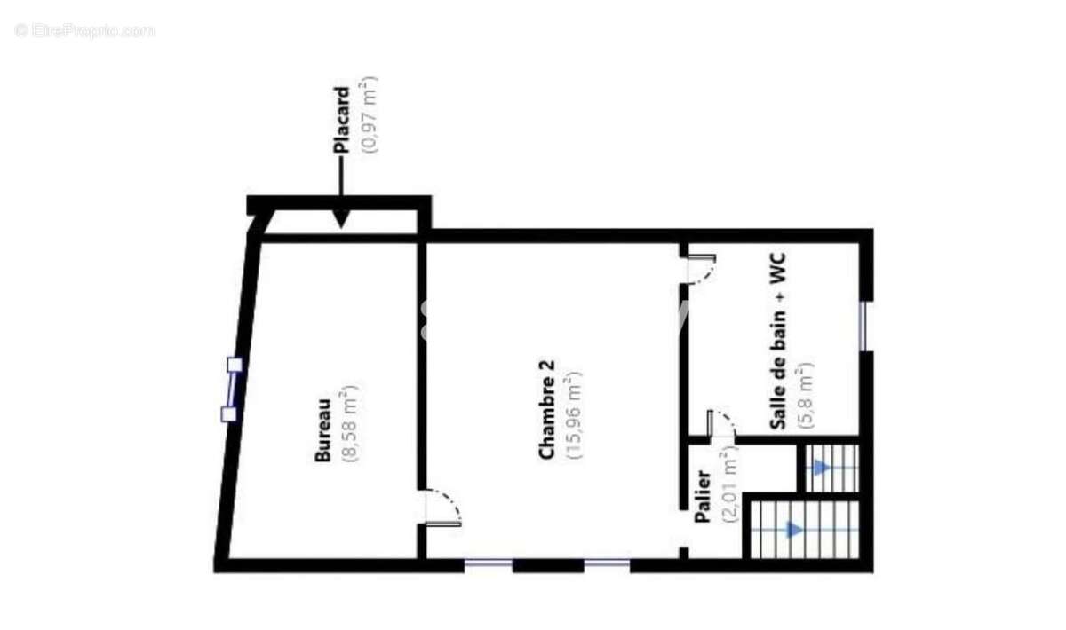
136 m² / 290 m²
7 pièces
balcon/terrassejardin

Nos partenaires locaux
95300 - PONTOISE - CENTRE VILLE - 7 PIÈCES - 5 CHAMBRES - 136 m² - CHARME DE L'ANCIEN - VUE EXCEPTIONNELLE - CALME ABSOLU

efficity, vous propose cette magnifique maison de caractère de 136 m² (119m2 carrez) située dans le centre historique de Pontoise, dans un quartier résidentiel prisé.
Nichée au cœur d'un environnement calme et verdoyant, cette maison pleine de charme et d'histoire saura vous séduire par sa vue exceptionnelle et son absence de vis-à-vis.
Distribuée sur trois niveaux, elle offre de beaux volumes et une luminosité naturelle, grâce à son exposition Sud et Est. Avec ses 7 pièces dont 5 chambres, elle a su préserver l'authenticité de l'ancien tout en offrant un confort moderne.
Au rez-de-chaussée, un spacieux séjour de 26 m² avec parquet d'origine et une cuisine équipée donnant accès à une terrasse de 5 m² côté jardin, idéale pour les repas en extérieur.
Un sous-sol total de 32 m² offrent des opportunités d'agrandissement et de rangement supplémentaires.
Un garage fermé indépendant complète ce bien d'exception.
Ne manquez pas l'opportunité de devenir propriétaire de cette maison rare, alliant le charme de l'ancien, la tranquillité et une vue imprenable à 3 minute de la cathédrale et 10 minute de la gare.
Les informations sur les risques auxquels ce bien est exposé sont disponibles sur le site Georisque : georisques. gouv. fr
Jacques Clave De Otaola - EI - est Agent Commercial mandataire en immobilier, immatriculé au Registre Spécial des Agents Commerciaux du Tribunal de Commerce de Versailles sous le n°788817237.
Siège social du mandant : effiCity, 48 avenue de Villiers - 75017 PARIS - Société par Actions Simplifiée, société au capital de 132 373,05 euros, immatriculée au RCS Paris 497 617 746 et titulaire de la Carte professionnelle CPI 75[Coordonnées masquées]02 025 - CCI Paris IDF - Caisse de Garantie : GALIAN Assurances 89 rue de la Boétie 75008 Paris
Voir plus

Référence: 210635
Honoraires d'agence de 2.83% à la charge de l'acquéreur
Barème des honoraires
DPE
A
B
C
D
E
F
G
GES
A
B
C
D
E
F
G
Maison à PONTOISE
Maison à PONTOISE
Maison à PONTOISE
Maison à PONTOISE
Maison à PONTOISE
Maison à PONTOISE
Maison à PONTOISE
Maison à PONTOISE
Maison à PONTOISE
Maison à PONTOISE
Maison à PONTOISE
Maison à PONTOISE
Maison à PONTOISE
Maison à PONTOISE
Maison à PONTOISE
Maison à PONTOISE
Maison à PONTOISE
Maison à PONTOISE
Maison à PONTOISE
Maison à PONTOISE
Maison à PONTOISE
Maison à PONTOISE
Maison à PONTOISE
Géorisques

Les informations sur les risques auxquels ce bien est exposé sont disponibles sur le site Géorisques : www.georisques.gouv.fr

Ce site est protégé par hCaptcha Politique de confidentialité et Conditions d’utilisation s’appliquent.

En poursuivant votre navigation sans modifier vos paramètres, vous acceptez l'utilisation de cookies susceptibles de réaliser des statistiques de visite. Cliquez ici pour plus d'informations