Bénéficiez des services de nos partenaires locaux soigneusement sélectionnés
pour vous accompagner dans votre parcours d'achat immobilier

Maison 102 m² à Vaureal

— Vaureal 95490 —
334 900 €
102 m² / 258 m²
5 pièces
jardin

Nos partenaires locaux
95490 VAUREAL - VILLAGE - 3 CHAMBRES - 102 m² - 258 m² de jardin - MAISON PLEINE DE CHARME AVEC VUE MAGNIFIQUE

EffiCity, l'agence qui estime votre bien en ligne, vous propose cette très jolie maison au CALME et SANS VIS-A-VIS.,

Au rez-de-chaussée, vous découvrirez
-une CUISINE/SALLE A MANGER SPACIEUSE de 22,5 m²,
- UN SEJOUR LUMINEUX de 24.5 m² donnant d'un côté sur une TERRASSE et de l'autre un BALCON. Le POÊLE A BOIS donne à cette pièce de vie une atmosphère cosy et chaleureuse.
-Une petite VERANDA

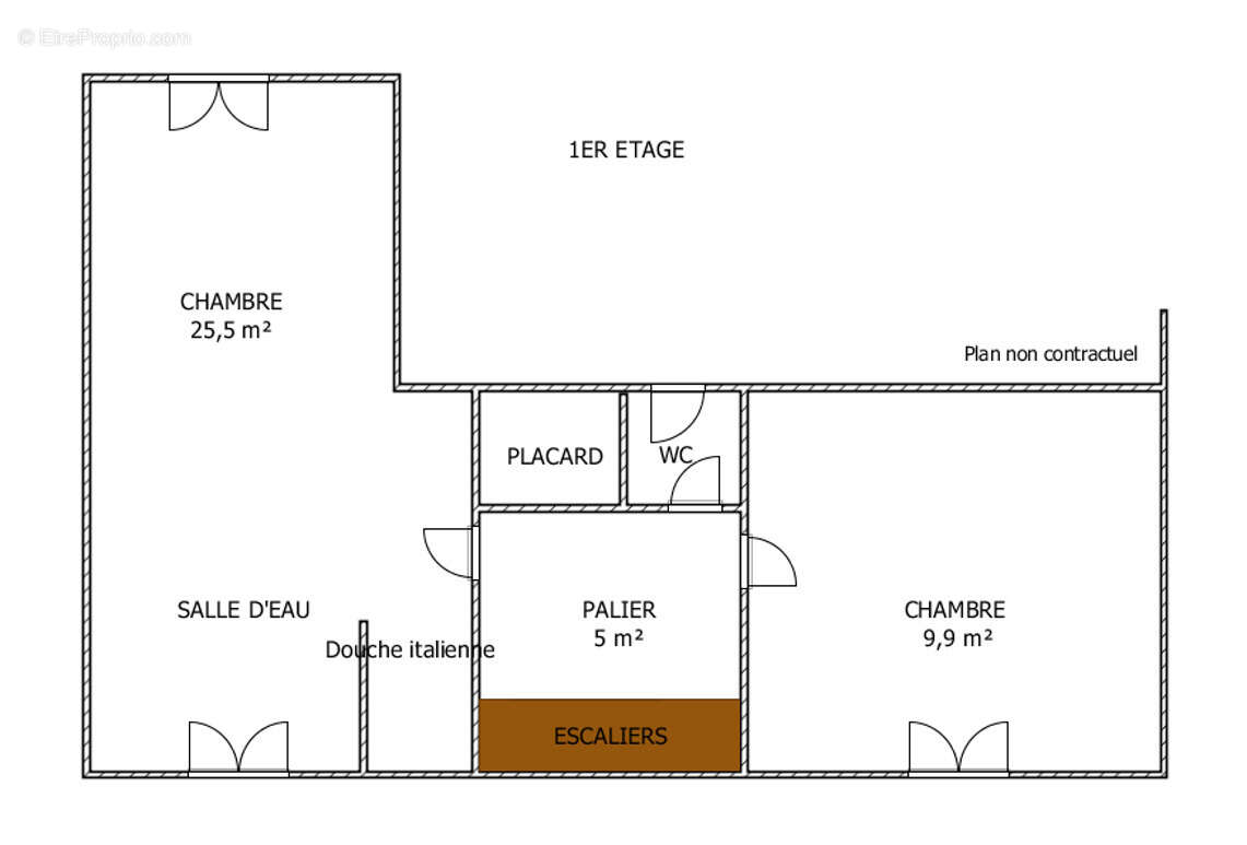
L'étage se compose d'un palier, de 2 CHAMBRES dont une SUITE PARENTALE avec une 1ère salle d'eau, de rangements et de toilettes séparés

En rez-de-jardin, vous trouverez une CHAMBRE en souplex, dotée d'une 2ème SALLE D'EAU.
Vous bénéficierez également d'une BUANDERIE et d'une CAVE A VINS.

L'extérieur vous réserve aussi quelques surprises : Vous pourrez profiter d'une 1ère terrasse accessible depuis le séjour et d'un balcon, idéal pour vos petits déjeunés ensoleillés.
Mais ce n'est pas tout, vous trouverez également un jardin plat et une 2ème terrasse avec barbecue.
Enfin, une DEPENDANCE avec une SALLE D'EAU, actuellement utilisée comme débarras, mais qui peut facilement être transformée en chambre d'amis, ou chambre d'adolescent, ou autre selon vos besoins.
Belle vue dégagée sur la vallée de l'Oise et magnifiques levés de soleil en perspective…

Vous serez comme à la campagne, vous pourrez vous promener dans les bois ou sur les bords de l'Oise, aller à l'ile de loisirs, à pied tout en étant à proximité des écoles, des commerces, des restaurants, du cinéma et de la piscine.
RER A et la LIGNE L à seulement 11 minutes en voiture soit de la gare de Cergy le Haut ou bien de la gare de Neuville Université.

Contactez dès maintenant Catherine BLOUIN au [Coordonnées masquées] ou Sandrine PAVANI au [Coordonnées masquées] pour organiser une visite.
N'attendez plus : coup de cœur assuré !
Les informations sur les risques auxquels ce bien est exposé sont disponibles sur le site Georisque : georisques. gouv. fr
Sandrine Pavani - EI - est Agent Commercial mandataire en immobilier, immatriculé au Registre Spécial des Agents Commerciaux du Tribunal de Commerce de None sous le n°991318148.
Siège social du mandant : effiCity, 48 avenue de Villiers - 75017 PARIS - Société par Actions Simplifiée, société au capital de 132 373,05 euros, immatriculée au RCS Paris 497 617 746 et titulaire de la Carte professionnelle CPI 75[Coordonnées masquées]02 025 - CCI Paris IDF - Caisse de Garantie : GALIAN Assurances 89 rue de la Boétie 75008 Paris
Voir plus

Référence: 210629
Honoraires à la charge du vendeur.
Barème des honoraires
DPE
A
B
C
D
E
F
G
GES
A
B
C
D
E
F
G
Maison à VAUREAL
Maison à VAUREAL
Maison à VAUREAL
Maison à VAUREAL
Maison à VAUREAL
Maison à VAUREAL
Maison à VAUREAL
Maison à VAUREAL
Maison à VAUREAL
Maison à VAUREAL
Maison à VAUREAL
Maison à VAUREAL
Maison à VAUREAL
Maison à VAUREAL
Maison à VAUREAL
Maison à VAUREAL
Maison à VAUREAL
Maison à VAUREAL
Maison à VAUREAL
Géorisques

Les informations sur les risques auxquels ce bien est exposé sont disponibles sur le site Géorisques : www.georisques.gouv.fr

Ce site est protégé par hCaptcha Politique de confidentialité et Conditions d’utilisation s’appliquent.

En poursuivant votre navigation sans modifier vos paramètres, vous acceptez l'utilisation de cookies susceptibles de réaliser des statistiques de visite. Cliquez ici pour plus d'informations