Bénéficiez des services de nos partenaires locaux soigneusement sélectionnés
pour vous accompagner dans votre parcours d'achat immobilier

Havre de paix - cœur saint barnabé

— Marseille-12e 13012 —
1 150 000 €
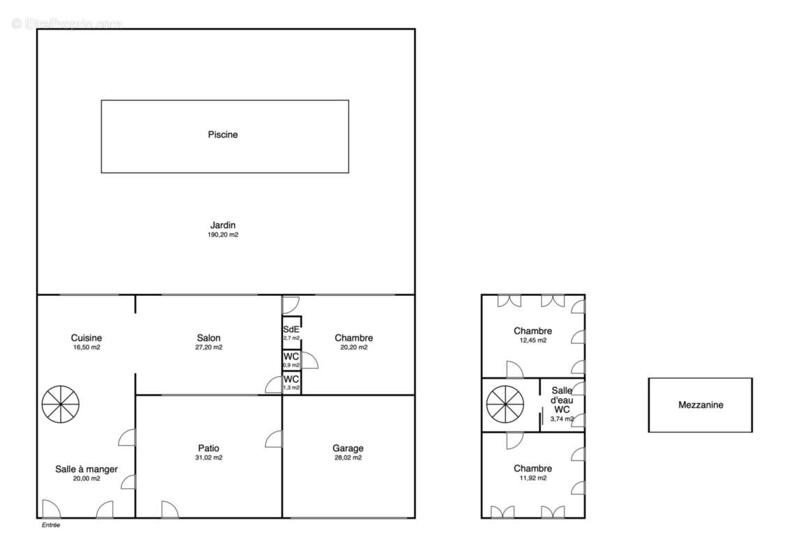
139 m² / 382 m²
4 pièces
parkingbalcon/terrassejardinpiscine

Nos partenaires locaux
Le Café de l'Immo vous ouvre les portes d'une adresse confidentielle, à une minute à pied du village de Saint-Barnabé.


Ici, le calme est absolu et la lumière omniprésente.


Cette maison de 139 m2, entièrement rénovée avec soin, a été pensée pour offrir un cadre de vie épuré et résolument contemporain.


Sur une parcelle de près de 400 m2, l’espace extérieur s’articule autour d’une piscine aux lignes minimalistes. La terrasse en pierre et le jardin profitent d’une exposition plein sud, avec pour seul vis-à-vis le clocher de l’église qui se dessine en arrière-plan.


À l'intérieur, la pièce de vie s’ouvre largement sur le jardin et fait face à un patio, véritable puits de lumière naturelle.


La maison dispose de trois chambres confortables dont une parentale en rez-de-chaussée et d’une mezzanine spacieuse, idéale pour un bureau ou un espace de détente.


Pour un confort total : un double box côte à côte complète ce bien rare.


Contactez-nous pour une dégustation immobilère.
Taxe foncière : 2 866 €.
Cette annonce vous est proposée par ROFFÉ Cyril - EI - NoRSAC: 793 953 282 , Enregistré au Greffe du tribunal de commerce de MARSEILLE
Voir plus

Référence: 1504
Honoraires à la charge du vendeur.
Barème des honoraires
DPE
A
B
C
D
E
F
G
GES
A
B
C
D
E
F
G
Maison à MARSEILLE-12E
Maison à MARSEILLE-12E
Maison à MARSEILLE-12E
Maison à MARSEILLE-12E
Maison à MARSEILLE-12E
Maison à MARSEILLE-12E
Maison à MARSEILLE-12E
Maison à MARSEILLE-12E
Maison à MARSEILLE-12E
Maison à MARSEILLE-12E
Maison à MARSEILLE-12E
Maison à MARSEILLE-12E
Maison à MARSEILLE-12E
Maison à MARSEILLE-12E
Maison à MARSEILLE-12E
Maison à MARSEILLE-12E
Maison à MARSEILLE-12E
Géorisques

Les informations sur les risques auxquels ce bien est exposé sont disponibles sur le site Géorisques : www.georisques.gouv.fr

Ce site est protégé par hCaptcha Politique de confidentialité et Conditions d’utilisation s’appliquent.

En poursuivant votre navigation sans modifier vos paramètres, vous acceptez l'utilisation de cookies susceptibles de réaliser des statistiques de visite. Cliquez ici pour plus d'informations