Bénéficiez des services de nos partenaires locaux soigneusement sélectionnés
pour vous accompagner dans votre parcours d'achat immobilier

Appartement duplex - châteney-malabry

— Chatenay-Malabry 92290 —
492 000 €
79 m²
4 pièces
parkingbalcon/terrasseascenseur

Nos partenaires locaux
APPARTEMENT DUPLEX - CHÂTENEY-MALABRY

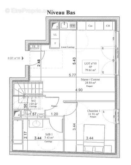
Moriss Immobilier vous présente ce spacieux duplex 4 pièces neuf de 82,40m2 au 2ème et 3ème étage.

Le niveau principal offre un séjour lumineux avec cuisine ouverte, une chambre, une salle de bain et un toilette indépendant.
À l’étage, l’espace nuit comprend deux chambres, une salle de bain moderne avec toilette et un balcon.

Une place de stationnement sécurisée et une cave en sous-sol complètent ce bien.

Son emplacement privilégié constitue un atout majeur : à proximité immédiate des écoles, commerces, transports et commodités utiles du quotidien. Situé aux portes de Paris, Châteney-Malabry permet de rejoindre la capitale en 15 minutes, tout en bénéficiant d’un cadre de vie agréable au sein d’une ville dynamique.

Un appartement neuf, aux prestations soignées, parfaitement adapté aussi bien à un projet de résidence principale qu’à un investissement immobilier.

Frais de notaires réduits.
Voir plus

Référence: 86853444
Appartement à CHATENAY-MALABRY
Appartement à CHATENAY-MALABRY
Appartement à CHATENAY-MALABRY
Appartement à CHATENAY-MALABRY
Géorisques

Les informations sur les risques auxquels ce bien est exposé sont disponibles sur le site Géorisques : www.georisques.gouv.fr

Ce site est protégé par hCaptcha Politique de confidentialité et Conditions d’utilisation s’appliquent.

En poursuivant votre navigation sans modifier vos paramètres, vous acceptez l'utilisation de cookies susceptibles de réaliser des statistiques de visite. Cliquez ici pour plus d'informations