Bénéficiez des services de nos partenaires locaux soigneusement sélectionnés
pour vous accompagner dans votre parcours d'achat immobilier

Paris 2 - special investisseur - opportunite immobiliere

— Paris-2e 75002 —
648 000 €
141 m²

Nos partenaires locaux
PARIS 2 - SENTIER - OPPORTUNITE INVESTISSEUR - PLACEMENT STRATEGIQUE A FORT POTENTIEL DE PLUS-VALUE

Nous vous proposons à la vente TROIS appartements actuellement loués, totalisant une superficie de 141 m², idéalement situés au cœur du Sentier, à proximité de la rue des Jeûneurs et de la rue d'Uzès. Ces biens présentent un potentiel attractif pour les investisseurs à la recherche d'un bien avec forte valorisation future.

Détails des biens :
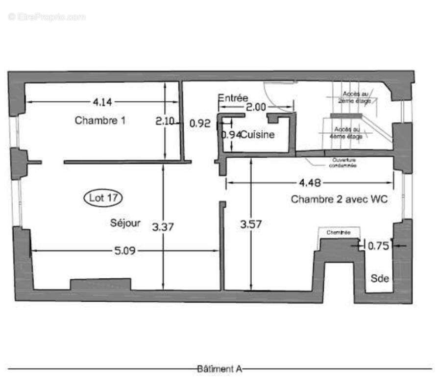
BÂTIMENT A (sur rue) 3ème étage : cuisine, séjour, 2 chambres, salle d'eau avec WC. Superficie de 45 m².
Bien soumis au statut de la copropriété : 1/26 lots. Pas de procédure en cours. Quote-part du budget prévisionnel : 1 130€/an.

BÂTIMENT B (sur cour) 3ème étage : entrée, palier, dégagement, salle d'eau avec WC, cuisine, séjour, chambre et combles. Superficie de 53 m². Bien soumis au statut de la copropriété : 1/26 lots. Pas de procédure en cours. Quote-part du budget prévisionnel : 1 347€/an.

2ème étage : entrée, cuisine, séjour, dégagement, salle d'eau avec WC, chambre. Superficie de 43 m².
Bien soumis au statut de la copropriété : 1/26 lots. Pas de procédure en cours. Quote-part du budget prévisionnel : 1 075€/an.

Informations supplémentaires :
Bien soumis au statut de la copropriété : 3/26 lots. Pas de procédure en cours. Quote-part du budget prévisionnel global : 3 552€/an.

Idéal pour investisseurs à la recherche d'un bien à fort potentiel de valorisation future, idéal recherche de déficit foncier, localisation recherchée. Contactez Gianni AURIEMMA au [Coordonnées masquées] pour plus de détails sur cette opportunité. Estimation confidentielle et gratuite de votre patrimoine disponible sur demande.
Voir plus

Référence: 4185_GA
Bien en copropriété. Nombre de lots : 26. Charges de copropriété : 296 €.
Honoraires à la charge du vendeur.
DPE
A
B
C
D
E
F
G
GES
A
B
C
D
E
F
G
Appartement à PARIS-2E
Appartement à PARIS-2E
Appartement à PARIS-2E
Appartement à PARIS-2E
Appartement à PARIS-2E
Appartement à PARIS-2E
Appartement à PARIS-2E
Appartement à PARIS-2E
Appartement à PARIS-2E
Géorisques

Les informations sur les risques auxquels ce bien est exposé sont disponibles sur le site Géorisques : www.georisques.gouv.fr

Ce site est protégé par hCaptcha Politique de confidentialité et Conditions d’utilisation s’appliquent.

En poursuivant votre navigation sans modifier vos paramètres, vous acceptez l'utilisation de cookies susceptibles de réaliser des statistiques de visite. Cliquez ici pour plus d'informations