Grand studio 31 m² dernier étage terrasse parking Orly Fer à Cheval

— Orly 94310 —
155 000 €
31 m²
1 pièce
parkingbalcon/terrasseascenseur

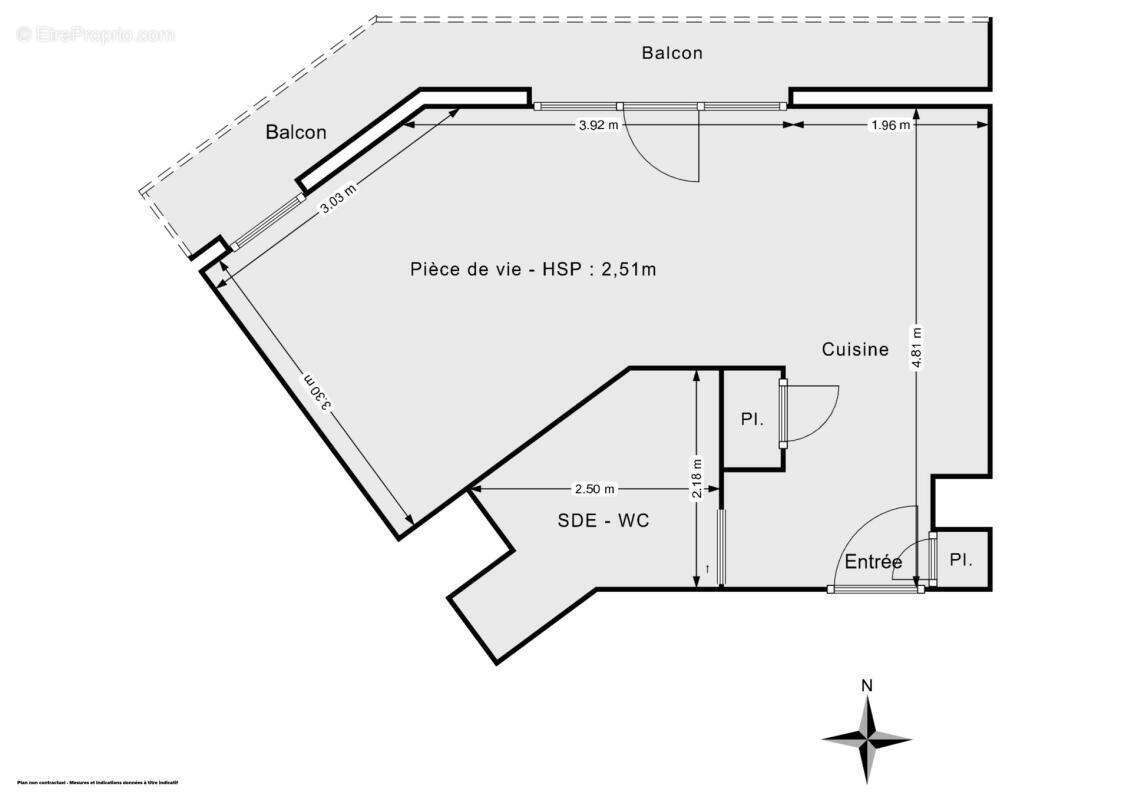
Liberkeys vous propose en exclusivité ce grand studio de 31 m², situé au 4ème et dernier étage d'une résidence récente de 2015, dans le quartier recherché du Fer à Cheval, en centre-ville d'Orly, à seulement 200 mètres du tramway T9 – arrêt Gaston Viens.

Proposé au prix de 155 000 € FAI, ce bien conviendra parfaitement pour un premier achat, un pied-à-terre, ou un investissement locatif recherchant un appartement fonctionnel, bien placé et sans travaux.

Un studio spacieux et bien agencé

L'un des vrais atouts de cet appartement est son excellent agencement, particulièrement appréciable pour cette surface.

Il se compose de :

une entrée avec rangement
un coin cuisine équipé
un espace salon
un espace nuit
une salle d'eau avec WC

Sa configuration permet également d'envisager une transformation en T2 en créant une cloison, ce qui en fait un bien à la fois confortable aujourd'hui et évolutif pour demain.

Les atouts qui font la différence
4ème et dernier étage
Aucun voisin au-dessus
Terrasse orientée nord-ouest
Place de parking sécurisée en sous-sol
Cuisine équipée
Possibilité d'acquérir le bien avec un lit armoire
Résidence récente de 2015
Aucun travaux à prévoir dans la copropriété

Le fait d'être au dernier étage est un vrai plus au quotidien, apportant davantage de tranquillité et limitant les nuisances sonores liées au voisinage.

Charges maîtrisées et bon confort énergétique

Le chauffage et l'eau chaude sont assurés par géothermie, un système à la fois économique et plus écologique.

Les charges de copropriété sont de 110 € par mois, incluant :

le chauffage
l'eau chaude
l'eau froide

Autres informations :

Taxe foncière : 1 100 € / an
DPE : C
Chauffage et eau chaude par géothermie
Un emplacement pratique et recherché

Autre point fort majeur : l'emplacement.

Situé dans le quartier Fer à Cheval, en centre-ville d'Orly, l'appartement bénéficie d'un environnement pratique, vivant et recherché, avec toutes les commodités accessibles à pied :

tramway T9 à 200 m
Leclerc
Pharmacie
Centre de santé
Marché
Centre culturel
Commerces et services du quotidien

Un emplacement idéal pour profiter d'un cadre de vie pratique sans dépendre entièrement de la voiture, tout en bénéficiant d'un parking privatif sécurisé.

En résumé

Un bien rare sur le secteur pour ce budget, réunissant :

une résidence récente
un dernier étage
une terrasse
un parking
un bon DPE
un agencement intelligent
et un fort potentiel d'évolution en T2

Ce bien vous plaît ? Visitez-le virtuellement en 3D sur le site de Liberkeys ou contactez directement votre conseiller. Lauvergeat Hugo, agent commercial immatriculé au RSAC de Créteil sous le numéro 897 414 033. Référence annonce : DOM29456. Date de réalisation du diagnostic : 12/02/2026. Les honoraires sont à la charge du vendeur.
Voir plus

Référence: DOM29456
Honoraires à la charge du vendeur.
DPE
A
B
C
D
E
F
G
GES
A
B
C
D
E
F
G
Appartement à ORLY
Appartement à ORLY
Appartement à ORLY
Appartement à ORLY
Appartement à ORLY
Appartement à ORLY
Appartement à ORLY
Appartement à ORLY
Appartement à ORLY
Appartement à ORLY
Appartement à ORLY
Appartement à ORLY
Appartement à ORLY
Géorisques

Les informations sur les risques auxquels ce bien est exposé sont disponibles sur le site Géorisques : www.georisques.gouv.fr

Ce site est protégé par hCaptcha Politique de confidentialité et Conditions d’utilisation s’appliquent.

En poursuivant votre navigation sans modifier vos paramètres, vous acceptez l'utilisation de cookies susceptibles de réaliser des statistiques de visite. Cliquez ici pour plus d'informations