Bénéficiez des services de nos partenaires locaux soigneusement sélectionnés
pour vous accompagner dans votre parcours d'achat immobilier

BRON CENTRE Maison 7 pièces avec grand garage et sous-sol

— Bron 69500 —
695 000 €
154 m² / 708 m²
7 pièces
parkingbalcon/terrassejardin

Nos partenaires locaux
BRON CENTRE dans une rue calme, à seulement 300 mètres de l'arrêt de tram Bron-Hôtel de ville (T2 et T5), cette maison a bénéficié de travaux d'isolation (ravalement de façade avec isolation par l'extérieur en 2020, changement des huisseries en 2017,isolation des combles 2017, chaudière à condensation 2018) portant son DPE à la lettre C.

Le jardin plat et arboré, vous permettra de passer d'agréables moments à la belle saison.

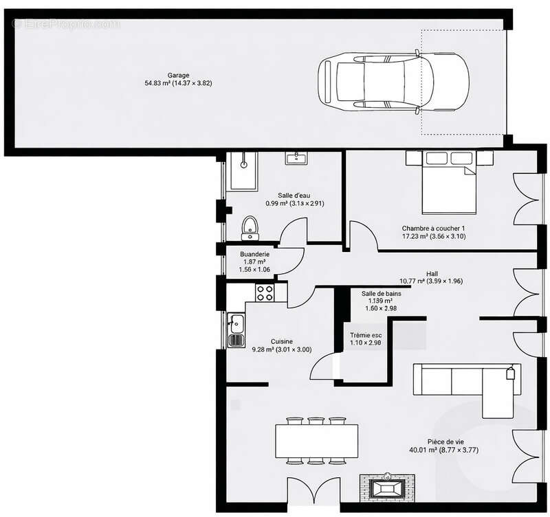
Le rez-de-chaussée comprend une pièce de vie de 50 m² bénéficiant d'une triple orientation avec une cuisine ouverte et équipée. En complément du chauffage au gaz, un poêle à bois vous permettra de profiter d'une atmosphère chaleureuse en hiver. L'été vous pourrez accéder directement à la terrasse depuis le séjour.

Au même niveau se trouvent une chambre spacieuse (17 m²), une grande salle d'eau avec WC (9m² donnant la possibilité de séparer les toilettes) et un petit espace buanderie.

L'étage est composé de 4 chambres dont l'une de plus de 18 m², d'un petit bureau et d'une salle de bains avec un second WC.

Pour compléter cet ensemble, vous disposez d'un sous-sol de 40 m² sur dalle béton accessible depuis l'intérieur se divisant en 2 pièces, très pratique pour stocker ou bricoler, et d'un immense garage double de 55m².

LES PLUS : Emplacement calme et central, plus de 80 000€ de travaux de rénovation réalisés entre 2017 et 2024 (factures disponibles), accessibilité PMR de tout le Rez-de-chaussée, superficie du garage et des caves, DPE C, proximité des trams T2 et T5 et des commerces
Les honoraires sont à la charge du vendeur.
Les informations sur les risques auxquels ce bien est exposé sont disponibles sur le site Géorisques : www. georisques. gouv. fr.

Réseau Immobilier CAPIFRANCE - Votre agent commercial (RSAC N°845 170 596 - Greffe de LYON) Pierre COURBIS Entrepreneur Individuel [Coordonnées masquées] - Réf.946934
Voir plus

Référence: 340933512453
Honoraires à la charge du vendeur.
DPE
A
B
C
D
E
F
G
GES
A
B
C
D
E
F
G
Maison à BRON
Maison à BRON
Maison à BRON
Maison à BRON
Maison à BRON
Maison à BRON
Maison à BRON
Maison à BRON
Maison à BRON
Maison à BRON
Maison à BRON
Maison à BRON
Maison à BRON
Maison à BRON
Maison à BRON
Maison à BRON
Maison à BRON
Maison à BRON
Maison à BRON
Géorisques

Les informations sur les risques auxquels ce bien est exposé sont disponibles sur le site Géorisques : www.georisques.gouv.fr

Ce site est protégé par hCaptcha Politique de confidentialité et Conditions d’utilisation s’appliquent.

En poursuivant votre navigation sans modifier vos paramètres, vous acceptez l'utilisation de cookies susceptibles de réaliser des statistiques de visite. Cliquez ici pour plus d'informations