Bénéficiez des services de nos partenaires locaux soigneusement sélectionnés
pour vous accompagner dans votre parcours d'achat immobilier

Maison, Elliant 7 pièce(s) DPE D

— Elliant 29370 —
299 980 €
170 m² / 876 m²
7 pièces
jardin

Nos partenaires locaux
Très belle demeure des années 80 en excellent état idéalement située à 10' de Quimper, 5' de la gare de Rosporden, 20' des plages de Concarneau
Le vaste jardin est arboré avec gout

La distribution harmonieuse sur 2 niveaux qui orientent les pièces de vie coté soleil, donne à ce bien un coté intemporel. et reposant. La terrasse est en accès direct du vaste séjour, la cuisine est rationnelle avec son coin repas attenant.

Le mode de chauffage par pompe à chaleur et autres chauffage annexe(pellet) confère à cette maison une gestion maitrisée des couts énergétiques, la conformité électrique sera revue avant la vente.

Une création de chambre de type parentale est envisageable en modulant la buanderie et le bureau

Niveau jardin: dégagement, vestiaire, toilette, cuisine-repas, séjour, salon, réserve, buanderie, bureau, terrasse
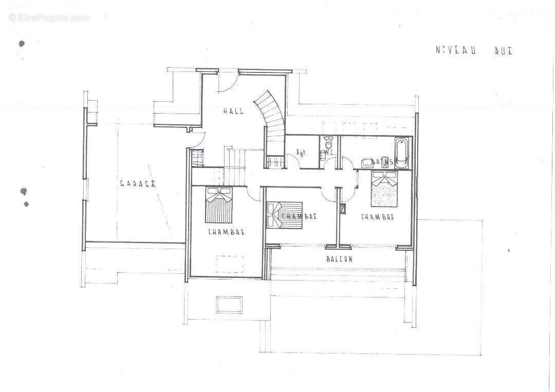
Niveau rue: hall entrée, 3 chambres, salle de bains, toilette, rangement, garage avec grenier, dégagement

DPE D et GES B
Montant estimé des dépenses annuelles d'énergie pour un usage standard entre 2790 euros et 3840 euros indexées aux années 2021, 2022 et 2023

Mandat réf : 444043 au prix de 299 980 euros dont 16980 euros honoraires agence inclus soit 283000 euros net vendeur. - Le professionnel garantit et sécurise votre projet immobilier.

Pour visiter et vous accompagner dans votre projet, contactez Marc LE BACCON, au [Coordonnées masquées] ou, par courriel à [Coordonnées masquées].
Selon l'article L.561.5 du Code Monétaire et Financier, pour l'organisation de la visite, la présentation d'une pièce d'identité vous sera demandée.
Cette présente annonce a été rédigée sous la responsabilité éditoriale de Marc LE BACCON agissant sous le statut d'agent commercial immatriculé au RSAC Quimper 327 474 334 auprès de SAS PROPRIETES PRIVEES, au capital de 44 920 euros, ZAC LE CHÊNE FERRÉ - 44 ALLÉE DES CINQ CONTINENTS 44120 VERTOU; SIRET 487 624 777 00040, RCS Nantes. Carte Professionnelle Transactions sur immeubles et fonds de commerce (T) et Gestion immobilière (G) n°CPI 44[Coordonnées masquées]10 388 délivrée par la CCI Nantes - Saint Nazaire. Compte séquestre n°3[Coordonnées masquées] BPA SAINT-SEBASTIEN-SUR-LOIRE (44230). Garantie GALIAN-SMABTP - 89 rue de la Boétie, 75008 Paris - n°28137 J pour 2 000 000 euros pour T et 120 000 euros pour G. Assurance responsabilité civile professionnelle par GALIAN-SMABTP n° de police 28137.J

(6.00 % honoraires TTC à la charge de l'acquéreur.)

Marc LE BACCON (EI) Agent Commercial - Numéro RSAC : Quimper 327 474 334 - .
Les informations sur les risques auxquels ce bien est exposé sont disponibles sur le site Géorisques : www. georisques. gouv. fr
Voir plus

Référence: 444043MLBA
Honoraires d'agence de 6% à la charge de l'acquéreur
DPE
A
B
C
D
E
F
G
GES
A
B
C
D
E
F
G
Maison à ELLIANT
Maison à ELLIANT
Maison à ELLIANT
Maison à ELLIANT
Maison à ELLIANT
Maison à ELLIANT
Maison à ELLIANT
Maison à ELLIANT
Maison à ELLIANT
Maison à ELLIANT
Maison à ELLIANT
Maison à ELLIANT
Maison à ELLIANT
Maison à ELLIANT
Maison à ELLIANT
Maison à ELLIANT
Maison à ELLIANT
Géorisques

Les informations sur les risques auxquels ce bien est exposé sont disponibles sur le site Géorisques : www.georisques.gouv.fr

Ce site est protégé par hCaptcha Politique de confidentialité et Conditions d’utilisation s’appliquent.

En poursuivant votre navigation sans modifier vos paramètres, vous acceptez l'utilisation de cookies susceptibles de réaliser des statistiques de visite. Cliquez ici pour plus d'informations