Bénéficiez des services de nos partenaires locaux soigneusement sélectionnés
pour vous accompagner dans votre parcours d'achat immobilier

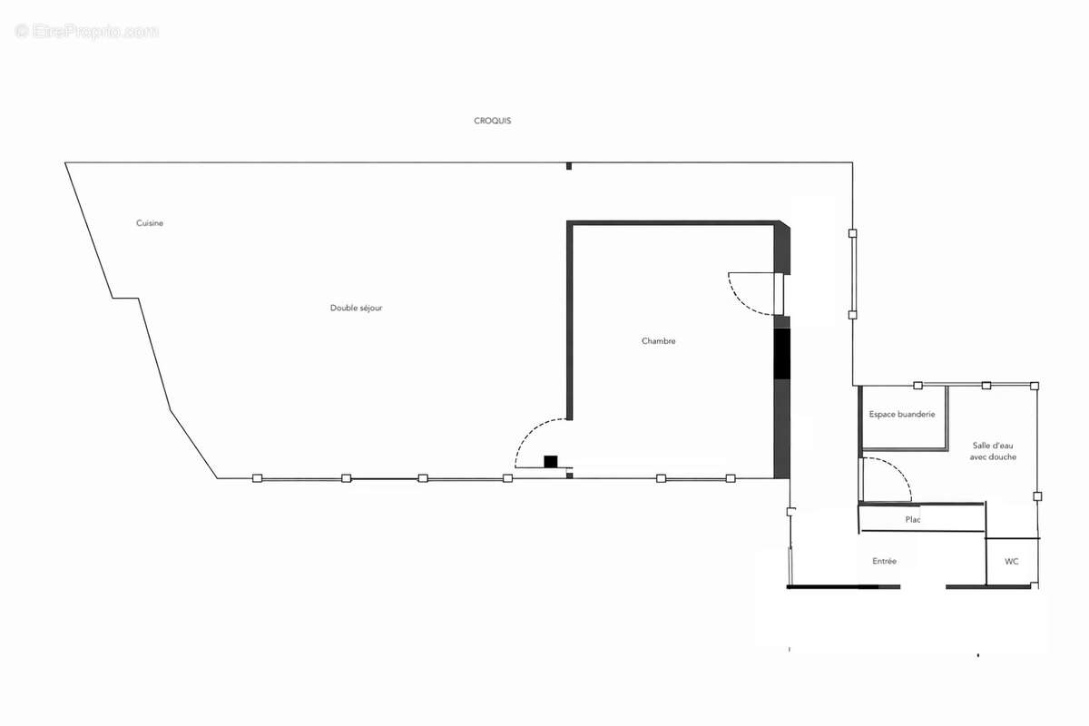
Appartement 64 m2 à Paris 14ème - Alésia

— Paris-14e 75014 —
499 000 €
64 m²
2 pièces

Nos partenaires locaux
Exclusivité quartier Alésia - Vente intéractive* - Au 1er étage par escalier d'un bel immeuble datant de 1903, un appartement sur cour au calme absolu de 64 m2 (62.73 m2 loi Carrez), exposé Ouest / Sud-Ouest, et composé d'une entrée avec placard, un grand séjour de 33.10 m2 avec cuisine ouverte équipée, une chambre avec dressing de 12.6 m2, une salle de douches avec espace buanderie, un WC indépendant. Une cave complète le bien.
Possibilité de créer une 2ème chambre ou un espace bureau dans la pièce de vie.
On aime : la présence des codes de l'ancien joliment préservés (parquet, moulures, deux cheminées), le volume des pièces et la hauteur sous plafond (2.90 m), la fonctionnalité et la paisibilité du lieu.
Très bon état. Fenêtres double vitrage. DPE D / GES E.
Professions libérales autorisées.
Métro Alésia (ligne 4) à 4 minutes à pied, station Denfert-Rochereau (lignes 4 - 6 RER B) à 9 minutes. Bus 62-38-68-92-88-216.
Ecoles, commerces, loisirs à proximité immédiate.
*Vente intéractive : le prix affiché correspond à un prix de première offre possible, honoraires d'agence inclus. Après visite du bien, toutes les offres seront transmises au vendeur, lequel restera libre dans la sélection de l'offre à laquelle il entend donner suite. Aucun frais supplémentaires ne sont à prévoir.
Voir plus

Référence: 135
Bien en copropriété. Nombre de lots : 54. Charges de copropriété : 1405 €.
Honoraires d'agence de 3.6% à la charge de l'acquéreur
Barème des honoraires
DPE
A
B
C
D
E
F
G
GES
A
B
C
D
E
F
G
Appartement à PARIS-14E
Appartement à PARIS-14E
Appartement à PARIS-14E
Appartement à PARIS-14E
Appartement à PARIS-14E
Appartement à PARIS-14E
Appartement à PARIS-14E
Appartement à PARIS-14E
Appartement à PARIS-14E
Appartement à PARIS-14E
Appartement à PARIS-14E
Appartement à PARIS-14E
Appartement à PARIS-14E
Appartement à PARIS-14E
Appartement à PARIS-14E
Géorisques

Les informations sur les risques auxquels ce bien est exposé sont disponibles sur le site Géorisques : www.georisques.gouv.fr

Ce site est protégé par hCaptcha Politique de confidentialité et Conditions d’utilisation s’appliquent.

En poursuivant votre navigation sans modifier vos paramètres, vous acceptez l'utilisation de cookies susceptibles de réaliser des statistiques de visite. Cliquez ici pour plus d'informations