Maison à vendre 5 pièces 80 m² LES SORINIERES (44)

— Les Sorinieres 44840 —
305 000 €
80 m² / 169 m²
5 pièces
parkingbalcon/terrassejardin

Idéalement située en plein cœur du centre bourg des Sorinières, au calme dans une impasse, cette maison de 2014 bénéficie d'un emplacement privilégié à proximité immédiate des écoles, transports et commodités.

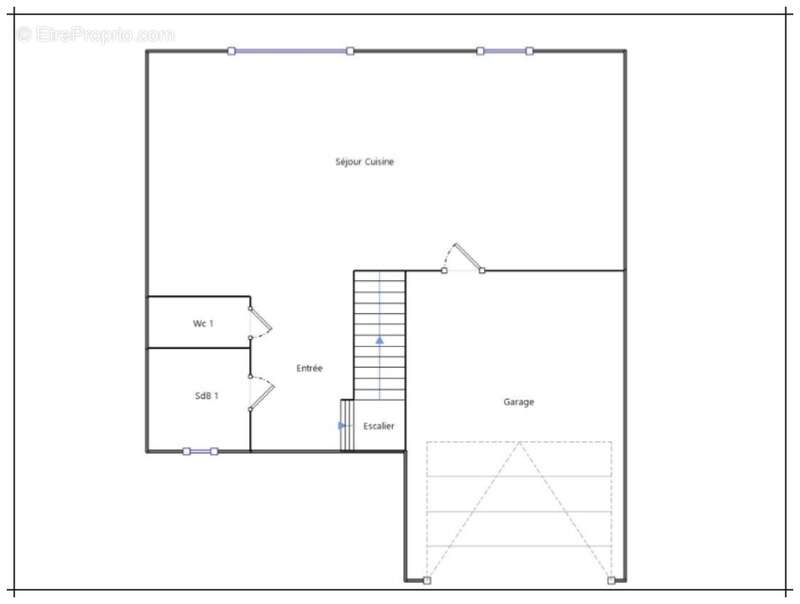
Au rez-de-chaussée, vous découvrirez une agréable pièce de vie lumineuse, une salle d'eau ainsi qu'un WC séparé. Un garage complète ce niveau.

À l'étage, l'espace nuit se compose de trois chambres spacieuses de plus de 10 m² chacune, d'une salle de bains et d'un second WC indépendant.

Implantée sur une parcelle de 169 m², la maison dispose également d'une place de stationnement devant le garage.

Les atouts :
- Maison à faible consommation énergétique (pompe à chaleur)
- Emplacement recherché en centre bourg
- Environnement calme (impasse)
- Exposition sud-est / sud-ouest, offrant une belle luminosité
- Garage + stationnement extérieur
- Proximité immédiate des écoles, transports et commerces

La maison fait partie d'une ASL (Association Syndicale Libre) de 6 lots, avec des charges d'environ 400 € par an pour l'Assainissement collectif avec pompe de relevage.

Une maison idéale pour une vie de famille confortable, au cœur d'un environnement pratique et agréable.

Contactez-moi dès maintenant pour organiser une visite ! Les honoraires d'agence sont à la charge de l'acquéreur, soit 4,45% TTC du prix hors honoraires.
Les informations sur les risques auxquels ce bien est exposé sont disponibles sur le site Géorisques : www. georisques. gouv. fr.

Réseau Immobilier CAPIFRANCE - Votre agent commercial (RSAC N°952 477 396 - Greffe de NANTES) Coralie FOUILLEN Entrepreneur Individuel [Coordonnées masquées] - Réf.947695
Voir plus

Référence: 340939902699
DPE
A
B
C
D
E
F
G
GES
A
B
C
D
E
F
G
Maison à LES SORINIERES
Maison à LES SORINIERES
Maison à LES SORINIERES
Maison à LES SORINIERES
Maison à LES SORINIERES
Maison à LES SORINIERES
Maison à LES SORINIERES
Maison à LES SORINIERES
Maison à LES SORINIERES
Maison à LES SORINIERES
Maison à LES SORINIERES
Maison à LES SORINIERES
Géorisques

Les informations sur les risques auxquels ce bien est exposé sont disponibles sur le site Géorisques : www.georisques.gouv.fr

Ce site est protégé par hCaptcha Politique de confidentialité et Conditions d’utilisation s’appliquent.

En poursuivant votre navigation sans modifier vos paramètres, vous acceptez l'utilisation de cookies susceptibles de réaliser des statistiques de visite. Cliquez ici pour plus d'informations