Bénéficiez des services de nos partenaires locaux soigneusement sélectionnés
pour vous accompagner dans votre parcours d'achat immobilier

Vente appartement t3 _ coulommiers

— Coulommiers 77120 —
118 463 €
70 m²
3 pièces

Nos partenaires locaux
FRAIS DE NOTAIRE REDUITS A 3,5 % au lieu de 8 %.

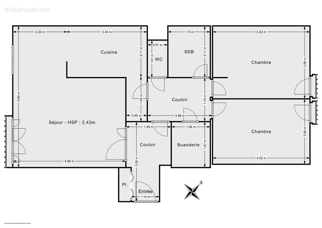
Situé au 2ᵉ étage d'une copropriété paisible (sans ascenseur), cet appartement 3 pièces séduit par ses beaux volumes et sa luminosité naturelle, offrant un cadre de vie agréable et confortable.

Avec une superficie généreuse de 70 m², il se compose d’une entrée avec placard, d’un vaste séjour baigné de lumière, d’une cuisine indépendante, de deux chambres accueillantes et d’une salle de bain fonctionnelle.

Un stationnement extérieur privatif vient compléter ce bien – un véritable atout au quotidien.

Ses points forts :

À seulement 8 minutes à pied de la gare de Coulommiers (ligne P – SNCF), pour un accès rapide à Paris et ses environs

Proximité immédiate des écoles et commerces

Environnement dynamique et convivial, idéal pour les familles.

Que vous soyez primo-accédant, couple ou à la recherche d’un cadre de vie agréable pour votre famille, cet appartement saura répondre à vos attentes.

VISITE VIRTUELLE : https://my.matterport.com/show/?m=n8a7F6zV6BR

Faites vite, une opportunité comme celle-ci ne reste pas longtemps sur le marché !

Contactez-nous dès maintenant pour organiser une visite au le [Coordonnées masquées].

Estimation de la taxe foncière 2024 : 1 150 €
Quote-part annuelle des charges courantes prévisionnelles 2024 : 2 400 €
DPE : C
Chauffage et production d’eau chaude : Collectif Gaz

Honoraires à la charge du vendeur et Frais de notaire à la charge de l'acquéreur.

MODALITES DE VISITES ET DE REMISE DES OFFRES D’ACHAT Visites sur rendez-vous, renseignements et dépôt des candidatures avec dossier complet.

Conformément à l'article l.561-5 du code monétaire et financier, la copie de la pièce d'identité de tous les visiteurs sera demandée avant la visite. Nous vous remercions de faciliter cette démarche à votre conseiller.

Conformément à l’article R123-237 du code de commerce :

Trans’Actif Immobilier SAS

24 rue de Paradis-75 010 PARIS

N°SIRET 514 367 978 00046 - RCS Paris

Conformément à l’article 94 du décret n°72-678 du 20 juillet 1972 « l’agence ne doit recevoir ni détenir d’autres fonds, effets ou valeurs que ceux représentatifs de sa rémunération ou de ses honoraires ».

Prix et conditions soumis à ressources selon l'article L443-11 et suivants du CCH.

Délais de remise des offres : Au plus tard 1 mois à compter de la date de parution de la dernière
publicité légale.

Modalités de remise des offres : Par mail, remise en mains propres ou par tout autre moyen.

Les informations sur les risques auxquels ce bien est exposé sont disponibles sur le site Géorisques : www.georisques.gouv.fr
Voir plus

Référence: 8174L-0101 - JAS
Appartement à COULOMMIERS
Appartement à COULOMMIERS
Appartement à COULOMMIERS
Appartement à COULOMMIERS
Appartement à COULOMMIERS
Appartement à COULOMMIERS
Appartement à COULOMMIERS
Appartement à COULOMMIERS
Appartement à COULOMMIERS
Appartement à COULOMMIERS
Appartement à COULOMMIERS
Appartement à COULOMMIERS
Appartement à COULOMMIERS
Appartement à COULOMMIERS
Appartement à COULOMMIERS
Appartement à COULOMMIERS
Géorisques

Les informations sur les risques auxquels ce bien est exposé sont disponibles sur le site Géorisques : www.georisques.gouv.fr

Ce site est protégé par hCaptcha Politique de confidentialité et Conditions d’utilisation s’appliquent.

En poursuivant votre navigation sans modifier vos paramètres, vous acceptez l'utilisation de cookies susceptibles de réaliser des statistiques de visite. Cliquez ici pour plus d'informations