Bénéficiez des services de nos partenaires locaux soigneusement sélectionnés
pour vous accompagner dans votre parcours d'achat immobilier

CASTRES Albinque - Maison avec piscine

— Castres 81100 —
205 000 €
108 m² / 430 m²
4 pièces
jardinpiscine

Nos partenaires locaux
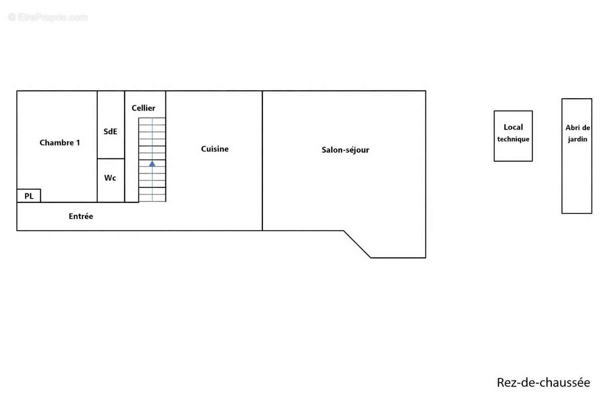
PACFA IMMOBILIER vous propose en exclusivité, au coeur du quartier de l'Albinque à Castres, cette jolie maison de ville en pierre rénovée. Idéale pour un premier achat, elle combine charme, confort et fonctionnalité, à proximité immédiate des commerces, des écoles et des transports.

Avec ses 108m² habitables et son jardin arboré de 430m² clos avec piscine, cette maison offre un cadre de vie chaleureux et pratique.
Vous apprécierez sa pièce de vie spacieuse et lumineuse de 46m² avec cuisine ouvert donnant sur une grande terrasse couverte et l'espace piscine.

A l'extérieur, tout est pensé pour la détente et la convivialité : terrasse, piscine, espace barbecue, jardin intime et une annexe indépendante de 15m² avec un point d'eau et toilettes, idéale pour un bureau, un atelier ou un studio.
Voir plus

Référence: 4043
Barème des honoraires
DPE
A
B
C
D
E
F
G
GES
A
B
C
D
E
F
G
Maison à CASTRES
Maison à CASTRES
Maison à CASTRES
Maison à CASTRES
Maison à CASTRES
Maison à CASTRES
Maison à CASTRES
Maison à CASTRES
Maison à CASTRES
Maison à CASTRES
Maison à CASTRES
Maison à CASTRES
Géorisques

Les informations sur les risques auxquels ce bien est exposé sont disponibles sur le site Géorisques : www.georisques.gouv.fr

Ce site est protégé par hCaptcha Politique de confidentialité et Conditions d’utilisation s’appliquent.

En poursuivant votre navigation sans modifier vos paramètres, vous acceptez l'utilisation de cookies susceptibles de réaliser des statistiques de visite. Cliquez ici pour plus d'informations