Bénéficiez des services de nos partenaires locaux soigneusement sélectionnés
pour vous accompagner dans votre parcours d'achat immobilier

Maison 97 m² à Avrille

— Avrille 49240 —
340 000 €
97 m²
5 pièces
parkingaccès handicapé

Nos partenaires locaux
L'agence 'MON BIEN A LA MER', spécialiste de l'immobilier sur le Grand Ouest, sélectionne auprès des promoteurs les meilleures opérations aux mêmes prix, sans commission d'agence. Bénéficiez de notre expertise indépendante, et de nos services (aide aux plans, maquette, drone, visite virtuelles). Nous vous présentons ce bien :

Résidence en cours de travaux à AVRILLE pour fin 2026 :
Seulement 15 minutes de l'hypercentre d'Angers grâce au tramway accessible à 300 mètres. Commodités à pied.
Le programme propose un habitat diversifié, allant du studio au 5 pièces, ainsi que des maisons avec jardins privatifs. Certifié NF Habitat, ce programme allie confort urbain et douceur de vivre avec une omniprésence du végétal.

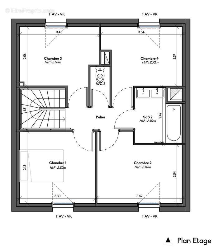
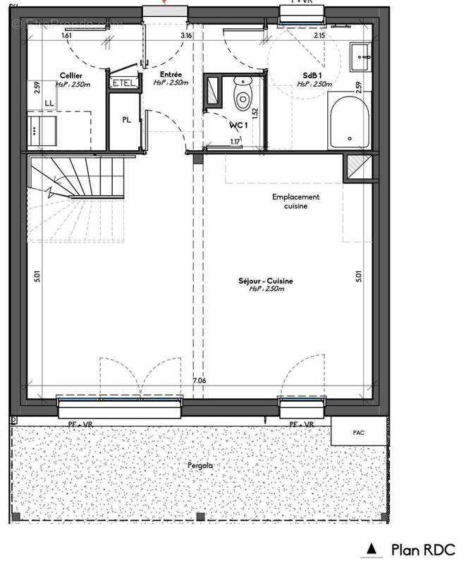
Grande Maison de ville 97m2 T5 exposée sud comprenant :
- Au 1er niveau : Séjour 32,28m2, grand cellier, salle d'eau douche à l'italienne, wc séparé, placard
- A l'étage : 4 Chambres 10,3-10,25-9,21-9,2m2, salle de bains baignoire double vasque, wc séparé
- Jardin 90m2
- Stationnement inclus.

Nous consulter.

Honoraires à la charge du vendeur. Non soumis au DPE. Les informations sur les risques auxquels ce bien est exposé sont disponibles sur le site Géorisques : georisques.gouv.fr.

Votre conseiller MON BIEN A LA MER : Gérant - .fr MON BIEN A LA MER
Carte T CPI 22[Coordonnées masquées]25 040
RCP ACM IARD B1 7025278
Voir plus

Référence: VM1644-BIENALAMER
Honoraires à la charge du vendeur.
Barème des honoraires
Maison à AVRILLE
Maison à AVRILLE
Maison à AVRILLE
Maison à AVRILLE
Maison à AVRILLE
Maison à AVRILLE
Maison à AVRILLE
Maison à AVRILLE
Maison à AVRILLE
Géorisques

Les informations sur les risques auxquels ce bien est exposé sont disponibles sur le site Géorisques : www.georisques.gouv.fr

Ce site est protégé par hCaptcha Politique de confidentialité et Conditions d’utilisation s’appliquent.

En poursuivant votre navigation sans modifier vos paramètres, vous acceptez l'utilisation de cookies susceptibles de réaliser des statistiques de visite. Cliquez ici pour plus d'informations