Bénéficiez des services de nos partenaires locaux soigneusement sélectionnés
pour vous accompagner dans votre parcours d'achat immobilier

appartement coup de cœur – t3 rénové au 9 ème étage lumineux avec vue dégagée

— Saint-Priest 69800 —
169 000 €
72 m²
3 pièces
balcon/terrasseascenseur

Nos partenaires locaux
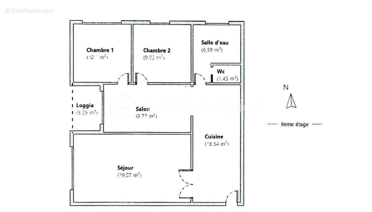
À Saint-Priest, au sein d'une copropriété calme sécurisée, laissez-vous séduire par ce superbe appartement de 72,54 m² entièrement rénové, baigné de lumière.

Dès l'entrée, vous découvrirez un espace de vie moderne et chaleureux, composé d'une grande cuisine équipée ouverte sur le salon et le séjour. Un lieu idéal pour partager des moments conviviaux au quotidien.

Le séjour de 19,07 m², lumineux et sans vis-à-vis, offre un cadre de vie agréable avec son placard mural intégré et son coin salon cosy.

L'espace nuit se compose de deux chambres confortables, d'une salle de bains élégante et d'un WC indépendant, pensés pour allier confort et praticité.

Les points forts qui font la différence:

Une loggia sécurisée, parfaite pour profiter d'un extérieur en toute tranquillité
Une cave, idéale pour optimiser votre rangement
Un appartement clé en main, sans aucun travaux à prévoir
Secteur recherché et parfaitement desservi
Bien rare sur le marché

Situé dans un environnement calme, ce bien bénéficie d'un emplacement privilégié où tout est accessible à pied:

Commerces
Transports
Marché hebdomadaire
Écoles (de la maternelle au lycée)

Un appartement lumineux, fonctionnel et prêt à vivre !

Ne tardez pas à le découvrir : contactez-moi pour organiser une visite !

Cette annonce référence 327578 vous est présentée par votre agent commercial BSK Immobilier CÉCILIA MUNARI (EI) immatriculé au RSAC de LYON-3E-ARRONDISSEMENT (69003) sous le numéro 99193671700016.

Prix du bien : 169 000,00 €
Les honoraires d'agence sont à la charge du vendeur.

A propos de la copropriété :
Pas de procédure en cours.
Nombre de lots : 204
Charges prévisionnelles annuelles : 2 743,24 €

Les informations sur les risques auxquels ce bien est exposé sont disponibles sur le site Géorisques : www.georisques.gouv.fr
Voir plus

Référence: 327578
Bien en copropriété. Nombre de lots : 204. Charges de copropriété : 228 €.
Honoraires à la charge du vendeur.
Appartement à SAINT-PRIEST
Appartement à SAINT-PRIEST
Appartement à SAINT-PRIEST
Appartement à SAINT-PRIEST
Appartement à SAINT-PRIEST
Appartement à SAINT-PRIEST
Appartement à SAINT-PRIEST
Appartement à SAINT-PRIEST
Appartement à SAINT-PRIEST
Géorisques

Les informations sur les risques auxquels ce bien est exposé sont disponibles sur le site Géorisques : www.georisques.gouv.fr

Ce site est protégé par hCaptcha Politique de confidentialité et Conditions d’utilisation s’appliquent.

En poursuivant votre navigation sans modifier vos paramètres, vous acceptez l'utilisation de cookies susceptibles de réaliser des statistiques de visite. Cliquez ici pour plus d'informations