Maison 86 m² à Nanterre

— Nanterre 92000 —
445 000 €
86 m² / 213 m²
4 pièces
parkingjardin

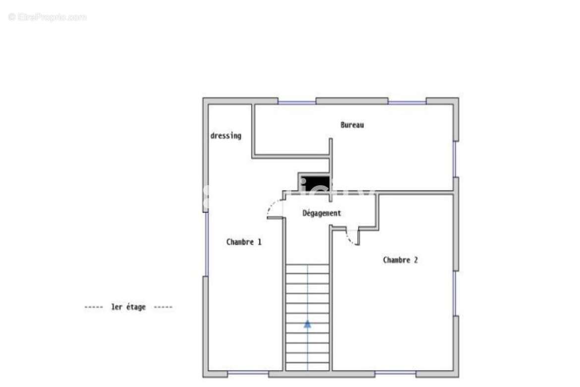
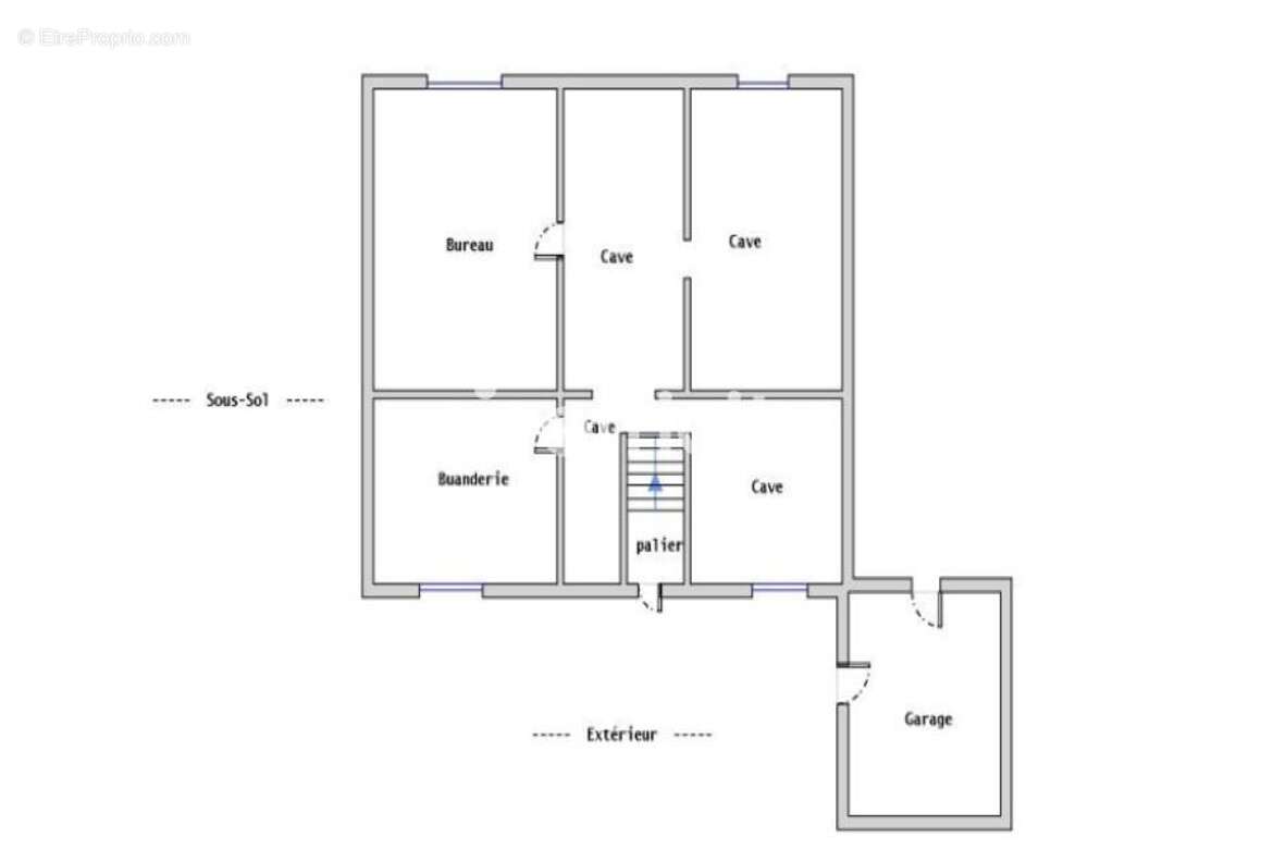
92000 - NANTERRE - QUARTIER CHEMIN DE L'ÎLE - CALME - MAISON de 86 m² au sol -3 CHAMBRES - TRAVERSANTE ET LUMINEUSE - TERRAIN 213 m² - BOX - GARE DE NANTERRE VILLE à 10 minutes à pied.

Efficity, l'agence qui estime votre bien en ligne vous propose dans une rue calme cette maison, en parfait état, d'une surface habitable de 73 m². Le rez-de-chaussée se compose, d'une grande pièce de vie de 35 m² avec une cuisine ouverte, d'un séjour bénéficiant d'un poêle à bois et d'une salle de bains avec WC. Toute la maison a été refaite et repensée avec des matériaux haut de gamme. Le 1er étage est composé de 3 chambres. Parquet massif dans la majorité des pièces. Le sous-sol est aménagé et isolé. Une grande dépendance de 13 m² complète le tout.

Les commerces, écoles, parc et transports sont proches.
Les informations sur les risques auxquels ce bien est exposé sont disponibles sur le site Georisque : georisques. gouv. fr
Eric Aufour - EI - est Agent Commercial mandataire en immobilier, immatriculé au Registre Spécial des Agents Commerciaux du Tribunal de Commerce de Nanterre sous le n°904650645.
Siège social du mandant : effiCity, 48 avenue de Villiers - 75017 PARIS - Société par Actions Simplifiée, société au capital de 132 373,05 euros, immatriculée au RCS Paris 497 617 746 et titulaire de la Carte professionnelle CPI 75[Coordonnées masquées]02 025 - CCI Paris IDF - Caisse de Garantie : GALIAN Assurances 89 rue de la Boétie 75008 Paris
Voir plus

Référence: 211369
Honoraires à la charge du vendeur.
Barème des honoraires
DPE
A
B
C
D
E
F
G
GES
A
B
C
D
E
F
G
Maison à NANTERRE
Maison à NANTERRE
Maison à NANTERRE
Maison à NANTERRE
Maison à NANTERRE
Maison à NANTERRE
Maison à NANTERRE
Maison à NANTERRE
Maison à NANTERRE
Maison à NANTERRE
Maison à NANTERRE
Maison à NANTERRE
Maison à NANTERRE
Maison à NANTERRE
Maison à NANTERRE
Géorisques

Les informations sur les risques auxquels ce bien est exposé sont disponibles sur le site Géorisques : www.georisques.gouv.fr

Ce site est protégé par hCaptcha Politique de confidentialité et Conditions d’utilisation s’appliquent.

En poursuivant votre navigation sans modifier vos paramètres, vous acceptez l'utilisation de cookies susceptibles de réaliser des statistiques de visite. Cliquez ici pour plus d'informations