Bénéficiez des services de nos partenaires locaux soigneusement sélectionnés
pour vous accompagner dans votre parcours d'achat immobilier

Hotel Particulier de prestige

— Begles 33130 —
1 665 000 €
513 m² / 1 028 m²
1 pièce

Nos partenaires locaux
A proximité immédiate du centre de Bègles et du projet urbain Newton, cet hôtel particulier remarquable développe plus de 500 m² au coeur d'un environnement en pleine évolution. Une adresse confidentielle offrant un équilibre rare entre prestige, accessibilité et potentiel de transformation.

Chargée d'histoire, cette maison de maître a fait l'objet d'une rénovation soignée, sublimant ses éléments d'origine : moulures délicates, parquets massifs, escalier d'apparat et perron emblématique. L'ensemble dialogue harmonieusement avec des prestations contemporaines, offrant un confort moderne et une luminosité naturelle omniprésente.

Les volumes spectaculaires et les hauteurs sous plafond généreuses ouvrent le champ des possibles : résidence familiale d'exception, siège professionnel de standing, ou division en apartemebn. Chaque espace invite à imaginer un lieu de vie ou de travail unique, à la hauteur des plus belles adresses.
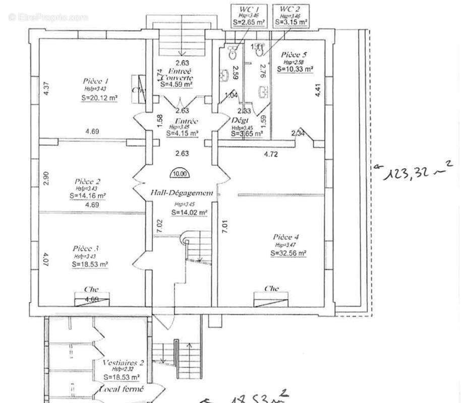
A RDC, une grande entrée de 18 m2 et 4 espaces bureau (33, 10,33,20) et un vestiaire de 20 m2.
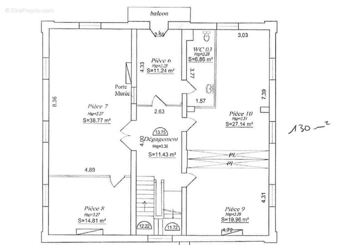
Au premier étage, 4espaces bureau (dont 1 de 55 m2)
Au deuxième étage: 6 bureaux
et en sous sol: bureau, cuisine, espace repas.

Implantée sur une parcelle close et sécurisée, la propriété dispose de 17 places de stationnement, un atout rare renforçant son caractère fonctionnel et exclusif.

Vivre ou entreprendre ici, c'est choisir une situation stratégique, à quelques minutes de Bordeaux, à proximité immédiate des commerces, des transports et des grands axes, au sein d'un secteur dynamique et en plein renouveau.

Bien vendu libre , division et changement d'usage envisageables.

Pour découvrir ce lieu singulier et en révéler tout le potentiel, contactez-nous pour une visite privée.

Prix de vente FAI: 1665000e

DPE D GES C Montant estimé des dépenses annuelles d'énergie pour un usage standard entre 9000 et 12000 euros indexées aux années 2021, 2022 et 2023.Pour visiter et vous accompagner dans votre projet, contactez Frédéric PANTECOUTEAU , au [Coordonnées masquées] ou, par courriel à [Coordonnées masquées]. Selon l'article L.561.5 du Code Monétaire et Financier, pour l'organisation de la visite, la présentation d'une pièce d'identité vous sera demandée. Cette présente annonce a été rédigée sous la responsabilité éditoriale de Frédéric Pantecouteau agissant sous le statut d'agent commercial auprès de SAS PROPRIETES PRIVEES, au capital de 44 920 euros, ZAC LE CHÊNE FERRÉ - 44 ALLÉE DES CINQ CONTINENTS 44120 VERTOU; SIRET 487 624 777 00040, RCS Nantes. Carte Professionnelle Transactions sur immeubles et fonds de commerce (T) et Gestion immobilière (G) n°CPI 44[Coordonnées masquées]10 388 délivrée par la CCI Nantes - Saint Nazaire. Compte séquestre n°3[Coordonnées masquées] BPA SAINT-SEBASTIEN-SUR-LOIRE (44230). Garantie GALIAN-SMABTP - 89 rue de la Boétie, 75008 Paris - n°28137 J pour 2 000 000 euros pour T et 120 000 euros pour G. Assurance responsabilité civile professionnelle par GALIAN-SMABTP n° de police 28137.J Mandat réf 410627 - Le professionnel garantit et sécurise votre projet immobilier.

Frederic PANTECOUTEAU (EI) Agent Commercial - Numéro RSAC : 484845813 RSAC BOEDEAUX - .
Les informations sur les risques auxquels ce bien est exposé sont disponibles sur le site Géorisques : www. georisques. gouv. fr
Voir plus

Référence: 441683FPAN
Honoraires à la charge du vendeur.
Maison à BEGLES
Maison à BEGLES
Maison à BEGLES
Maison à BEGLES
Maison à BEGLES
Maison à BEGLES
Maison à BEGLES
Maison à BEGLES
Maison à BEGLES
Maison à BEGLES
Maison à BEGLES
Maison à BEGLES
Maison à BEGLES
Maison à BEGLES
Maison à BEGLES
Géorisques

Les informations sur les risques auxquels ce bien est exposé sont disponibles sur le site Géorisques : www.georisques.gouv.fr

Ce site est protégé par hCaptcha Politique de confidentialité et Conditions d’utilisation s’appliquent.

En poursuivant votre navigation sans modifier vos paramètres, vous acceptez l'utilisation de cookies susceptibles de réaliser des statistiques de visite. Cliquez ici pour plus d'informations