Bénéficiez des services de nos partenaires locaux soigneusement sélectionnés
pour vous accompagner dans votre parcours d'achat immobilier

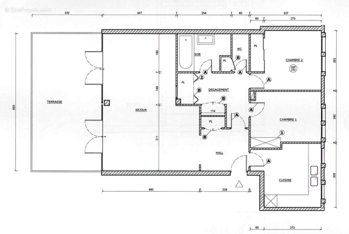
3 pièces de 69m2 avec terrasse de 23m2 situé à 600m de la place Marcel Sembat

— Boulogne-Billancourt 92100 —
660 000 €
69 m²
3 pièces
parkingbalcon/terrasse

Nos partenaires locaux
Bossé & Mona Immobilier vous propose à la vente cet appartement clair et calme de 69m2, en parfait état, avec terrasse de 22m2, situé dans les immeubles Pouillon, à 600m de la place Marcel Sembat.
Ce bien, situé au 2ème étage sans ascenseur, se compose d'une entrée avec rangements, d'un séjour de 26m2 donnant accès à une terrasse de 23m2 exposée Est, d'une cuisine indépendante entièrement équipée et aménagée, de 2 chambres de 10m2 et 9m2, d'une salle de bains, d'un WC indépendant et d'une cave. Parking en location dans la copropriété.
Le ravalement exterieur est voté et payé.
L'appartement dispose de fenêtres en double vitrage, d'un store éléctrique sur la terrasse, de nombreux rangements et de parquet.
Les charges de copropriété sont de 300 euros / mois et comprennent le chauffage (au sol), le gardien, l'eau et l'entretien des parties communes. Local Velos dans la copropriété. Le DPE est D. Taxe fonciére 2025: 783 euros.
Nous sommes à votre disposition si vous souhaitez vendre ou faire estimer votre bien à Paris ou dans l'Ouest parisien.
Voir plus

Bien en copropriété. Nombre de lots : 2753.
Honoraires d'agence de 3.13% à la charge de l'acquéreur
Barème des honoraires
DPE
A
B
C
D
E
F
G
GES
A
B
C
D
E
F
G
Appartement à BOULOGNE-BILLANCOURT
Appartement à BOULOGNE-BILLANCOURT
Appartement à BOULOGNE-BILLANCOURT
Appartement à BOULOGNE-BILLANCOURT
Appartement à BOULOGNE-BILLANCOURT
Appartement à BOULOGNE-BILLANCOURT
Appartement à BOULOGNE-BILLANCOURT
Appartement à BOULOGNE-BILLANCOURT
Appartement à BOULOGNE-BILLANCOURT
Appartement à BOULOGNE-BILLANCOURT
Appartement à BOULOGNE-BILLANCOURT
Géorisques

Les informations sur les risques auxquels ce bien est exposé sont disponibles sur le site Géorisques : www.georisques.gouv.fr

Ce site est protégé par hCaptcha Politique de confidentialité et Conditions d’utilisation s’appliquent.

En poursuivant votre navigation sans modifier vos paramètres, vous acceptez l'utilisation de cookies susceptibles de réaliser des statistiques de visite. Cliquez ici pour plus d'informations