Bénéficiez des services de nos partenaires locaux soigneusement sélectionnés
pour vous accompagner dans votre parcours d'achat immobilier

Villa de standing au Kirchberg 226 m2 habitables + sous-sol aménagé de 134m2 sur 7.91a

— Morschwiller-Le-Bas 68790 —
548 000 €
232 m² / 8 m²
8 pièces
parkingbalcon/terrassejardin

Nos partenaires locaux
Villa contemporaine de standing aux portes de Mulhouse environnement résidentiel recherché










Idéalement située sur les hauteurs d’un secteur prisé à proximité immédiate de Mulhouse, cette élégante villa développe de généreux volumes et offre un cadre de vie à la fois calme, lumineux et qualitatif.
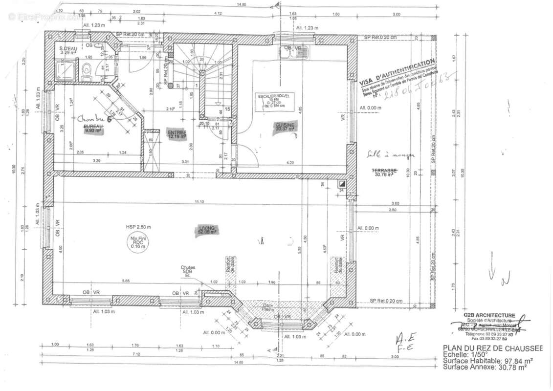
Implantée sur un terrain arboré d’environ 8 ares, la propriété séduit dès l’entrée par ses prestations soignées et ses matériaux de qualité. L’espace de vie principal, spacieux et baigné de lumière, s’organise autour d’un salon avec cheminée, prolongé par une salle à manger ouverte sur l’extérieur et une cuisine contemporaine entièrement équipée. L’ensemble offre une circulation fluide et conviviale, idéale pour la vie de famille comme pour la réception.
Le rez-de-chaussée propose également une pièce polyvalente pouvant faire office de bureau ou de chambre, avec salle d’eau attenante, permettant une vie de plain-pied.
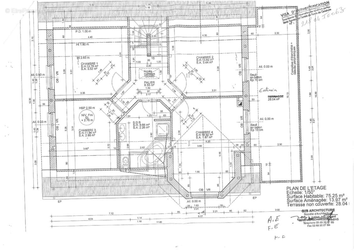
À l’étage, l’espace nuit se compose de plusieurs chambres confortables aux volumes équilibrés, dont certaines bénéficient d’une ouverture sur un espace vitré offrant une vue dégagée. Une salle de bains complète vient parfaire ce niveau, avec équipements contemporains et finitions soignées.
La maison profite d’une orientation traversante assurant une belle luminosité tout au long de la journée, avec d’un côté un jardin agréable et facilement aménageable, et de l’autre un accès fonctionnel aux stationnements.
Le niveau inférieur, entièrement exploitable, offre de nombreuses possibilités : espace de loisirs, rangement, ou encore activité professionnelle grâce à un accès indépendant déjà en place.
Côté technique, le bien bénéficie d’équipements récents et performants, avec un excellent niveau de confort thermique et énergétique, renforcé par une isolation optimisée et des menuiseries de qualité.
Stationnements multiples, garages spacieux, environnement pratique avec écoles, transports et commodités à proximité viennent compléter les atouts de cette propriété.
Données non contractuelles. Honoraires inclus selon barème à la charge de l'acquéreur soit 4% ht inclus dans le prix présenté. AFIM IMMO depuis le Coeur du Rebberg03 89 42 trente et un 05.









AFIM-IMMO.FR [Coordonnées masquées] Tel: +33 7 56 96 18 18
Voir plus

Référence: 2019194
Barème des honoraires
DPE
A
B
C
D
E
F
G
GES
A
B
C
D
E
F
G
Maison à MORSCHWILLER-LE-BAS
Maison à MORSCHWILLER-LE-BAS
Maison à MORSCHWILLER-LE-BAS
Maison à MORSCHWILLER-LE-BAS
Maison à MORSCHWILLER-LE-BAS
Maison à MORSCHWILLER-LE-BAS
Maison à MORSCHWILLER-LE-BAS
Maison à MORSCHWILLER-LE-BAS
Maison à MORSCHWILLER-LE-BAS
Maison à MORSCHWILLER-LE-BAS
Maison à MORSCHWILLER-LE-BAS
Maison à MORSCHWILLER-LE-BAS
Géorisques

Les informations sur les risques auxquels ce bien est exposé sont disponibles sur le site Géorisques : www.georisques.gouv.fr

Ce site est protégé par hCaptcha Politique de confidentialité et Conditions d’utilisation s’appliquent.

En poursuivant votre navigation sans modifier vos paramètres, vous acceptez l'utilisation de cookies susceptibles de réaliser des statistiques de visite. Cliquez ici pour plus d'informations