Bénéficiez des services de nos partenaires locaux soigneusement sélectionnés
pour vous accompagner dans votre parcours d'achat immobilier

Exclusivite a vendre brest saint-michel gambetta appartement t2 49,41 m² balcons vue mer

— Brest 29200 —
169 900 €
49 m²
2 pièces
balcon/terrasseascenseur

Nos partenaires locaux
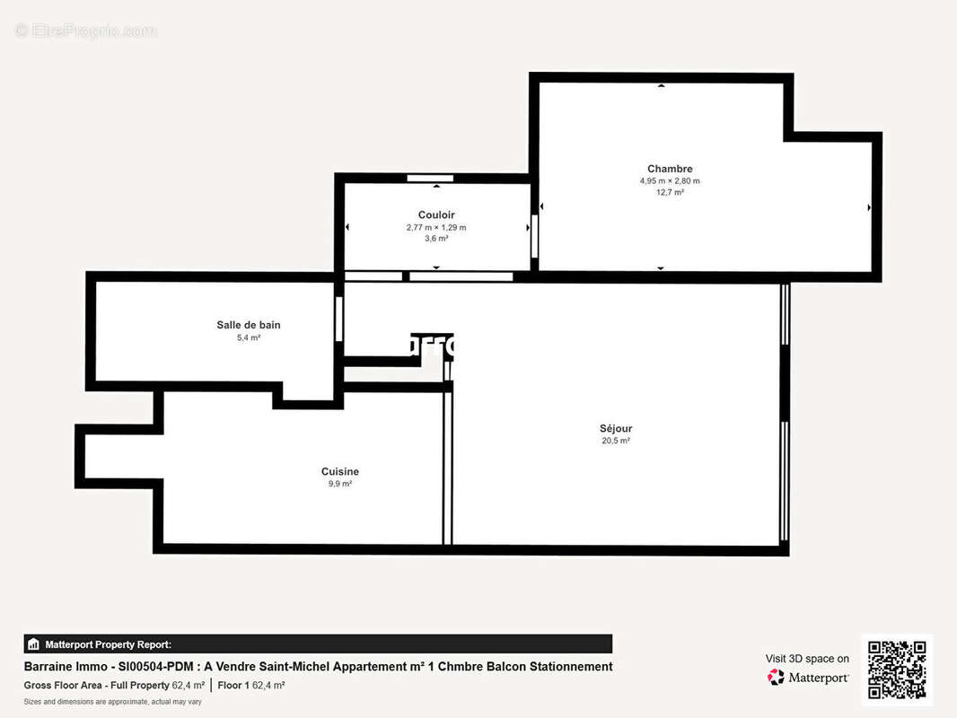
EXCLUSIVITE - BREST - SAINT-MICHEL - GAMBETTA . Réf : SI00504-PDM Située dans le secteur de Saint-Michel, à proximité immédiate de la Gare de Brest (29200), venez découvrir cet appartement T2 bénéficiant d'une vue mer. Développant 49.41 m², cet appartement T2 se trouve au 4ème étage d'un immeuble des années 60 avec ascenseur. Bénéficiant d'une exposition EST/OUEST et d'une vue sur la mer, il se compose d'une pièce à vivre de 27,41 m² comprenant une cuisine aménagée et équipée et s'ouvrant sur deux balcons, l'un pouvant vous permettre de déjeuner au soleil, le second, fermé, pouvant être utilisé en tant que buanderie. Côté nuit, une chambre de 9,81 m² avec dressing et s'ouvrant également sur un balcon. Salle d'eau avec douche et l'italienne et fenêtre. WC indépendants et nombreux rangements. Les fenêtres sont en PVC double vitrage garantissent un confort thermique et acoustique optimal. Côté stationnement, un parking est réservé à la copropriété. Situé à proximité de nombreux points d'intérêts, vous trouverez de nombreux commerces à proximité immédiate ainsi que le centre-ville. La gare de Brest est à 10min à pied et le bien se situe à proximité du lycée Fénelon. Ce bien est proposé par l'agence Barraine IMMO - Brest Siam. Ne manquez pas cette opportunité unique sur le marché ! (6.19 % honoraires TTC à la charge de l'acquéreur.) Copropriété de 302 lots - dont 300 lots habitation. Charges annuelles : 1911.48 euros.
Voir plus

Référence: SI00504-PDM
Bien en copropriété. Nombre de lots : 302. Charges de copropriété : 1911 €.
Honoraires d'agence de 6.19% à la charge de l'acquéreur
Barème des honoraires
DPE
A
B
C
D
E
F
G
GES
A
B
C
D
E
F
G
Appartement à BREST
Appartement à BREST
Appartement à BREST
Appartement à BREST
Appartement à BREST
Appartement à BREST
Appartement à BREST
Appartement à BREST
Appartement à BREST
Appartement à BREST
Appartement à BREST
Appartement à BREST
Appartement à BREST
Géorisques

Les informations sur les risques auxquels ce bien est exposé sont disponibles sur le site Géorisques : www.georisques.gouv.fr

Ce site est protégé par hCaptcha Politique de confidentialité et Conditions d’utilisation s’appliquent.

En poursuivant votre navigation sans modifier vos paramètres, vous acceptez l'utilisation de cookies susceptibles de réaliser des statistiques de visite. Cliquez ici pour plus d'informations