Bondy secteur gare rer e

— Bondy 93140 —
384 000 €
111 m² / 216 m²
7 pièces
jardin

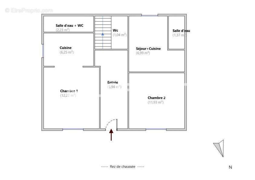
BONDY secteur GARE RER E Proximité commerces, écoles, transports Dans une impasse au calme, MEULIERE INDEPENDANTE comprenant au rez de chaussée, 2 pièces, 2 cuisines, 2 wc, 2 salle d'eau Au 1er, palier, une pièce de vie/cuisine US, salle d'eau avec wc, 2 chambres Au 2ème, grande pièce mansardée avec cuisine US, coin nuit, salle d'eau, wc, espace de rangement. En Sous sol SEMI ENTERRE, 2 pièces avec une HSP de 2m, salle d'eau et wc. Possibilité de redistribuer les volumes en MAISON FAMILIALE TRADITIONELLE. Le tout avec une parcelle d'environ 216m²
Voir plus

Référence: 1920
Honoraires à la charge du vendeur.
Barème des honoraires
DPE
A
B
C
D
E
F
G
GES
A
B
C
D
E
F
G
Maison à BONDY
Maison à BONDY
Maison à BONDY
Maison à BONDY
Maison à BONDY
Maison à BONDY
Maison à BONDY
Maison à BONDY
Maison à BONDY
Maison à BONDY
Maison à BONDY
Maison à BONDY
Maison à BONDY
Maison à BONDY
Maison à BONDY
Maison à BONDY
Maison à BONDY
Maison à BONDY
Géorisques

Les informations sur les risques auxquels ce bien est exposé sont disponibles sur le site Géorisques : www.georisques.gouv.fr

Ce site est protégé par hCaptcha Politique de confidentialité et Conditions d’utilisation s’appliquent.

En poursuivant votre navigation sans modifier vos paramètres, vous acceptez l'utilisation de cookies susceptibles de réaliser des statistiques de visite. Cliquez ici pour plus d'informations