Bénéficiez des services de nos partenaires locaux soigneusement sélectionnés
pour vous accompagner dans votre parcours d'achat immobilier

Appartement 141 m² à Toulouse

— Toulouse 31500 —
598 000 €
141 m²
6 pièces
parking

Nos partenaires locaux
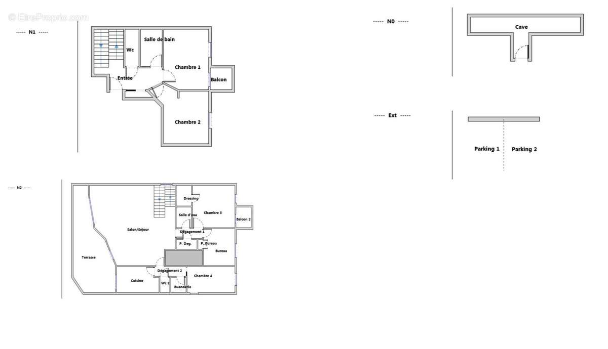
TOULOUSE - Duplex T6 de standing de 141 m². Climatisé et équipé d'une porte blindée.

Situé dans le quartier de Guilhemery, proche de l'hypercentre de Toulouse, ce duplex de 141 m² se trouve au 1e et 2e étage d'une petite résidence calme composée de trois appartements.

À l'entrée, nous trouvons 2 chambres, 1 salle de bain ainsi qu'un toilette séparé.
Sur le second niveau, vous vous laisserez séduire par un grand séjour baigné de lumière, d'une cuisine équipé ainsi que de ses 3 chambres accompagné d'une salle de bain et d'un toilette.

L'appartement bénéficie d'une double exposition Ouest / Sud-Ouest offrant un ensoleillement agréable tout au long de la journée.

Le bien est composé d'une grande terrasse et de 2 balcons. Une cave privative ainsi que 2 place de parking sécurisé dans sa cour intérieure complète le tout.

Le bien comprend 4 lots, et il est situé dans une copropriété de 12 lots (les charges courantes annuelles moyennes de copropriété sont de 2650 ¤ et le syndicat des copropriétaires ne fait pas l'objet d'une procédure citée à l'article L. 721-1 du code de la construction et de l'habitation).

Les informations sur les risques auxquels ce bien est exposé sont disponibles sur le site Géorisques : www.georisques.gouv.fr
Prix de vente : 598 000 ¤
Honoraires charge vendeur

Contactez votre conseiller SAFTI : Samuel PEZET, Tél. : [Coordonnées masquées], E-mail : [Coordonnées masquées] - EI - Agent commercial immatriculé au RSAC de Toulouse sous le numéro 917634586.Informations LOI ALUR : Soumis au régime de copropriété. Nombre de lots : 12. Quote part annuelle(moyenne) : 2650 euros. Honoraires charge vendeur. (gedeon_26118_32986427)
Voir plus

Référence: 1630350
Bien en copropriété. Nombre de lots : 12. Charges de copropriété : 2650 €.
Honoraires à la charge du vendeur.
Barème des honoraires
DPE
A
B
C
D
E
F
G
GES
A
B
C
D
E
F
G
Photo 1 - Appartement à TOULOUSE
Photo 1
Photo 2 - Appartement à TOULOUSE
Photo 2
Photo 3 - Appartement à TOULOUSE
Photo 3
Photo 4 - Appartement à TOULOUSE
Photo 4
Photo 5 - Appartement à TOULOUSE
Photo 5
Photo 6 - Appartement à TOULOUSE
Photo 6
Photo 7 - Appartement à TOULOUSE
Photo 7
Géorisques

Les informations sur les risques auxquels ce bien est exposé sont disponibles sur le site Géorisques : www.georisques.gouv.fr

Ce site est protégé par hCaptcha Politique de confidentialité et Conditions d’utilisation s’appliquent.