Bénéficiez des services de nos partenaires locaux soigneusement sélectionnés
pour vous accompagner dans votre parcours d'achat immobilier

Appartement 3 pièces - AVON (77)

— Avon 77210 —
267 000 €
68 m²
3 pièces
parkingascenseur

Nos partenaires locaux
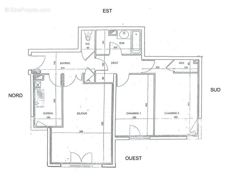
Rare dans le secteur, cet appartement très calme de 68 m2 à rez-de-chaussée se compose comme suit : une entrée avec placard, un séjour/salle à manger de 21m2 orienté Ouest, une cuisine 6,20 m2, deux belles chambres dont une avec un petit dressing, une salle de bain et un wc indépendant.
Prestations et confort : double vitrage, chaudière gaz individuelle, stores électriques dans le séjour et manuels dans les chambres. Un garage fermé en sous-sol.
Les charges comprennent l'eau froide, les charges d'ascenseur, l'entretien des parties communes et des espaces verts.
Environnement : cette résidence sécurisée de 2003 est très proche des commerces, écoles, crèche, gare de Fontainebleau/Avon (8minutes à pied), forêt et grand canal du château.
Un appartement très bien situé, idéal pour profiter de la proximité immédiate de la forêt, des commerces et de la gare.
Nombre de lots de la copropriété: 40, Montant moyen de la quote-part annuelle de charges (budget prévisionnel) : 1440€ soit 120€ par mois. Les honoraires d'agence sont à la charge de l'acquéreur, soit 4,71% TTC du prix hors honoraires.
Les informations sur les risques auxquels ce bien est exposé sont disponibles sur le site Géorisques : www. georisques. gouv. fr.

Contactez Anne Michelle SUSINI Entrepreneur Individuel, Agent commercial OptimHome (RSAC N°805 258 696 Greffe de MELUN) [Coordonnées masquées] (réf. 604602 )
Voir plus

Référence: 830034357802
Bien en copropriété. Nombre de lots : 40. Charges de copropriété : 120 €.
DPE
A
B
C
D
E
F
G
GES
A
B
C
D
E
F
G
Appartement à AVON
Appartement à AVON
Appartement à AVON
Appartement à AVON
Appartement à AVON
Appartement à AVON
Appartement à AVON
Appartement à AVON
Appartement à AVON
Appartement à AVON
Appartement à AVON
Géorisques

Les informations sur les risques auxquels ce bien est exposé sont disponibles sur le site Géorisques : www.georisques.gouv.fr

Ce site est protégé par hCaptcha Politique de confidentialité et Conditions d’utilisation s’appliquent.

En poursuivant votre navigation sans modifier vos paramètres, vous acceptez l'utilisation de cookies susceptibles de réaliser des statistiques de visite. Cliquez ici pour plus d'informations