Bénéficiez des services de nos partenaires locaux soigneusement sélectionnés
pour vous accompagner dans votre parcours d'achat immobilier

Commerce 97 m² à Boulogne-Billancourt

— Boulogne-Billancourt 92100 —
695 000 €
97 m²
4 pièces

Nos partenaires locaux
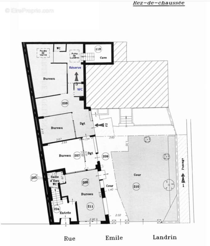
Au calme et à quelques pas du métro Marcel Sembat ligne 9 et des commerces, nous vous proposons des bureaux de 99,7 m² découpable accessibles de plain-pied.

Les bureaux sont en très bon état avec coin cuisine / sanitaire (une salle d'eau, deux WC) et peuvent être divisé en 3. Vue cour.

Copropriété de deux lots ; un appartement et les bureaux au rdc avec deux accès possible rue et cour.


Référence: APIS3375A
Honoraires d'agence de 2.96% à la charge de l'acquéreur
Barème des honoraires
DPE
A
B
C
D
E
F
G
GES
A
B
C
D
E
F
G
Commerce à BOULOGNE-BILLANCOURT
Commerce à BOULOGNE-BILLANCOURT
Commerce à BOULOGNE-BILLANCOURT
Commerce à BOULOGNE-BILLANCOURT
Commerce à BOULOGNE-BILLANCOURT
Commerce à BOULOGNE-BILLANCOURT
Commerce à BOULOGNE-BILLANCOURT
Commerce à BOULOGNE-BILLANCOURT
Géorisques

Les informations sur les risques auxquels ce bien est exposé sont disponibles sur le site Géorisques : www.georisques.gouv.fr

Ce site est protégé par hCaptcha Politique de confidentialité et Conditions d’utilisation s’appliquent.

En poursuivant votre navigation sans modifier vos paramètres, vous acceptez l'utilisation de cookies susceptibles de réaliser des statistiques de visite. Cliquez ici pour plus d'informations