Bénéficiez des services de nos partenaires locaux soigneusement sélectionnés
pour vous accompagner dans votre parcours d'achat immobilier

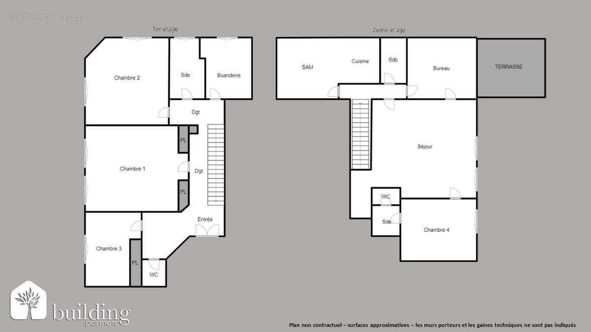
Gare de Courbevoie/Normandie - Appartement en duplex 7 pièces - 197.18 m² + 17.19 m² de terrasse

— Courbevoie 92400 —
1 694 000 €
197 m²
5 pièces

Nos partenaires locaux
Dans le quartier recherché de la gare de Courbevoie / Normandie, BUILDING PARTNERS vous propose à la vente ce superbe duplex 7 pièces de 197,18 m² Carrez, avec 17,19 m² de terrasse, situé aux derniers étages d'un Hôtel Particulier de standing. Baigné de lumière et bénéficiant d'une belle vue dégagée, cet appartement rare séduit par ses volumes, son calme et son plan parfaitement optimisé. Au premier niveau, il se compose d'une entrée, de trois chambres, d'une salle de bains avec douche et toilettes, d'une buanderie ainsi que de WC séparés. A l'étage supérieur, vous découvrirez une seconde entrée, une double réception traversante avec puits de lumière, une cuisine indépendante aménagée et équipée avec salle à manger, une chambre en suite, un bureau avec accès direct à la terrasse de 17,19 m², ainsi qu'une salle de bains avec toilettes. Deux emplacements de parking sont proposés en supplément du prix. Idéalement situé à proximité immédiate des commerces, des transports et de la gare de Courbevoie, ce bien offre un cadre de vie privilégié, dans un environnement recherché et résidentiel. Ce duplex d'exception séduira les familles ou les amateurs de beaux volumes à la recherche d'un bien lumineux, élégant et parfaitement situé aux portes de Paris. Contactez-nous pour plus d'informations ou pour organiser une visite.
Voir plus

Référence: 17322
Bien en copropriété.
Honoraires à la charge du vendeur.
Barème des honoraires
DPE
A
B
C
D
E
F
G
GES
A
B
C
D
E
F
G
Appartement à COURBEVOIE
Appartement à COURBEVOIE
Appartement à COURBEVOIE
Appartement à COURBEVOIE
Appartement à COURBEVOIE
Appartement à COURBEVOIE
Appartement à COURBEVOIE
Appartement à COURBEVOIE
Appartement à COURBEVOIE
Appartement à COURBEVOIE
Appartement à COURBEVOIE
Appartement à COURBEVOIE
Appartement à COURBEVOIE
Appartement à COURBEVOIE
Appartement à COURBEVOIE
Appartement à COURBEVOIE
Appartement à COURBEVOIE
Appartement à COURBEVOIE
Géorisques

Les informations sur les risques auxquels ce bien est exposé sont disponibles sur le site Géorisques : www.georisques.gouv.fr

Ce site est protégé par hCaptcha Politique de confidentialité et Conditions d’utilisation s’appliquent.

En poursuivant votre navigation sans modifier vos paramètres, vous acceptez l'utilisation de cookies susceptibles de réaliser des statistiques de visite. Cliquez ici pour plus d'informations