Bénéficiez des services de nos partenaires locaux soigneusement sélectionnés
pour vous accompagner dans votre parcours d'achat immobilier

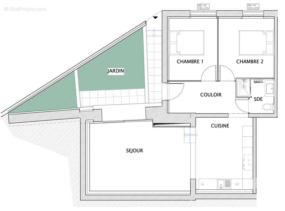
Appartement 3 pièces – Terrasse – Nice L’Archet

— Nice 06200 —
355 000 €
67 m²
3 pièces
balcon/terrassejardin

Nos partenaires locaux
Dans une résidence récente et sécurisée, idéalement située à deux pas du CHU de l'Archet, découvrez ce charmant 3 pièces en rez-de-jardin alliant confort et calme.

L'appartement de 67,2 m² se compose :

- d'une grande pièce à vivre avec une partie salon séjour bien distincte de la cuisine ouverte,
- de deux chambres,
- d'une salle d'eau moderne,
- et d'un jardinet privatif de 21 m², parfait pour les moments de détente ou repas en extérieur.

Ce bien est proposé avec une place de stationnement !

Entièrement rénové avec des matériaux de qualité,
Calme et lumineux
Proximité immédiate CHU,

Idéal résidence principale

Une vidéo est disponible pour ce bien.

Les informations sur les risques auxquels ce bien est exposé sont disponibles sur le site Géorisques : www.georisques.gouv.fr.
Voir plus

Référence: 25-049-8
Bien en copropriété. Nombre de lots : 14.
Honoraires à la charge du vendeur.
DPE
A
B
C
D
E
F
G
Appartement à NICE
Appartement à NICE
Appartement à NICE
Appartement à NICE
Appartement à NICE
Appartement à NICE
Appartement à NICE
Appartement à NICE
Appartement à NICE
Appartement à NICE
Appartement à NICE
Appartement à NICE
Géorisques

Les informations sur les risques auxquels ce bien est exposé sont disponibles sur le site Géorisques : www.georisques.gouv.fr

Ce site est protégé par hCaptcha Politique de confidentialité et Conditions d’utilisation s’appliquent.

En poursuivant votre navigation sans modifier vos paramètres, vous acceptez l'utilisation de cookies susceptibles de réaliser des statistiques de visite. Cliquez ici pour plus d'informations