Bénéficiez des services de nos partenaires locaux soigneusement sélectionnés
pour vous accompagner dans votre parcours d'achat immobilier

Terrain constructible d’exception

— Caille 06750 —
300 000 €
9 300 m²

Nos partenaires locaux
À seulement une heure de Cannes, face aux pistes de ski, découvrez ce magnifique terrain constructible de 9 224 m², une opportunité rare au cœur d'un environnement naturel préservé.

Implanté en pleine forêt, dans un calme absolu et bénéficiant d'une exposition plein sud, le terrain offre un cadre idéal pour un projet résidentiel ou touristique de standing, aussi bien en été qu'en hiver.

Règles d'urbanisme :

Emprise au sol :
• 25 % pour une construction classique
• Jusqu'à 50 % pour une construction en ERP

Hauteur maximale autorisée : 9 mètres

Un permis de construire accordé et purgé permet la réalisation de deux chalets.

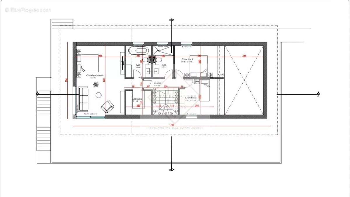
Projet de chalets de luxe

Le projet prévoit la construction de deux chalets haut de gamme, aux prestations soignées et matériaux de qualité, développant chacun environ 250 m² habitables.

Chaque chalet comprend :

un garage fermé pour deux voitures,
une buanderie,
un espace spa / bien-être,
un salon de 50 m² avec cuisine ouverte,
cinq chambres, chacune avec sa salle de bains privative,
des hauteurs sous plafond exceptionnelles, de 2,65 m à 4,40 m, offrant des volumes et de la luminosité.

Travaux déjà réalisés

Les travaux sont largement avancés, avec :
terrassement et débroussaillage effectués,
préparation des plateaux,
dalles coulées, route d'accès en gravier réalisée,
murs de soutènement construits,
parking d'environ 700 m²,
système d'assainissement individuel moderne par biofiltre,
réseaux et canalisations en place.

Atout supplémentaire

Un mobil-home moderne et fonctionnel, déjà installé sur le terrain, complète le bien. Il permet une occupation immédiate du site ou un hébergement temporaire pendant la durée des travaux.

Un bien rare, alliant nature et montagne, idéal pour la réalisation d'une résidence secondaire de prestige ou pour un projet d'investissement locatif haut de gamme.

Bien présenté par Agences de France par délégation.
Agences de France – SIREN : 899413603 – Titulaire de la carte T : 29[Coordonnées masquées]00009 non habilité à percevoir des fonds
Voir plus

Référence: getkey_u_510834728
Honoraires à la charge du vendeur.
Terrain à CAILLE
Terrain à CAILLE
Terrain à CAILLE
Terrain à CAILLE
Terrain à CAILLE
Terrain à CAILLE
Terrain à CAILLE
Terrain à CAILLE
Terrain à CAILLE
Terrain à CAILLE
Terrain à CAILLE
Terrain à CAILLE
Terrain à CAILLE
Géorisques

Les informations sur les risques auxquels ce bien est exposé sont disponibles sur le site Géorisques : www.georisques.gouv.fr

Ce site est protégé par hCaptcha Politique de confidentialité et Conditions d’utilisation s’appliquent.

En poursuivant votre navigation sans modifier vos paramètres, vous acceptez l'utilisation de cookies susceptibles de réaliser des statistiques de visite. Cliquez ici pour plus d'informations