Bénéficiez des services de nos partenaires locaux soigneusement sélectionnés
pour vous accompagner dans votre parcours d'achat immobilier

Maison indépendante 6 pièces, terrain 3000 m2, piscine, calme

— Le Vigan 30120 —
268 000 €
154 m² / 2 971 m²
6 pièces
parkingbalcon/terrassepiscine

Nos partenaires locaux
A l'orée d'un bois, cette grande maison familiale saura vous séduire par son emplacement et son calme.
A 2 pas de toute commodités, 5 minutes du centre ville du Vigan et 1h00 de Montpellier.
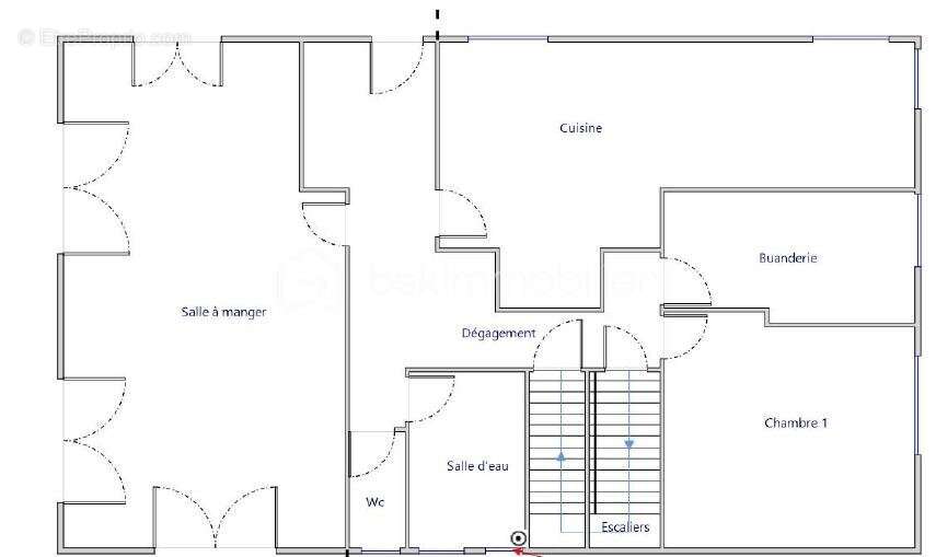
Une maison agréable à vivre et lumineuse d'environ 155 m2 habitables (voir surfaces annexées).
Une belle terrasse pour profiter de cette belle nature et d'un ensoleillement même tard le soir en été.
Un espace extérieur avec jardin, forêt et piscine, rare et précieux ..... une source.
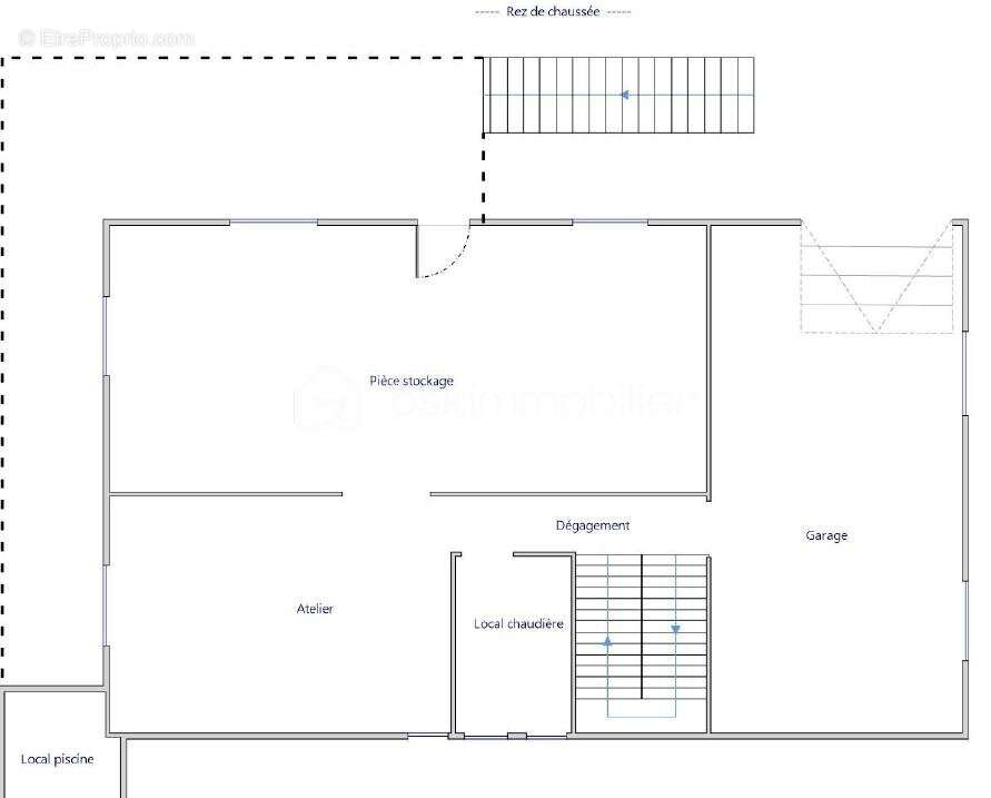
Sous-sol total avec garage, atelier, chaufferie, local piscine, espaces de rangement.
(surfaces annexes : 132 m2)
Au premier étage, superbe pièce à vivre très ajourée avec sa cheminée et son accès extérieur, cuisine aménagée, chambre, sde, WC et buanderie.
Au deuxième étage : 3 chambres dont 1 avec sde + wc.
Pièces en sous-pente, grenier, bureau, espace petit atelier.
Terrain joliment arboré et aménagé, portail, possibilité de garer plusieurs véhicules.
Assainissement - Maison raccordée à un réseau public.

Cette annonce référence 320663 vous est présentée par votre agent commercial BSK Immobilier NATHALIE BRESSON (EI) immatriculé au RSAC de NIMES (30000) sous le numéro 75221232400020.

Prix du bien : 268 000,00 €
Les honoraires d'agence sont à la charge du vendeur.

A propos des performances énergétiques :
Date de réalisation du diagnostic énergétique : 22/12/2025
Score DPE : 211 kWhEP/m²/an
Score GES : 38 kgepCO2/m²/an
Montant estimé des dépenses annuelles d'énergie pour un usage standard : entre 3050.00 € et 4200.00 € par an. Prix moyens des énergies indexés sur l'année 2023 (abonnements compris).

Les informations sur les risques auxquels ce bien est exposé sont disponibles sur le site Géorisques : www.georisques.gouv.fr
Voir plus

Référence: 320663
Honoraires à la charge du vendeur.
DPE
A
B
C
D
E
F
G
GES
A
B
C
D
E
F
G
Maison à LE VIGAN
Maison à LE VIGAN
Maison à LE VIGAN
Maison à LE VIGAN
Maison à LE VIGAN
Maison à LE VIGAN
Maison à LE VIGAN
Maison à LE VIGAN
Maison à LE VIGAN
Maison à LE VIGAN
Maison à LE VIGAN
Maison à LE VIGAN
Maison à LE VIGAN
Géorisques

Les informations sur les risques auxquels ce bien est exposé sont disponibles sur le site Géorisques : www.georisques.gouv.fr

Ce site est protégé par hCaptcha Politique de confidentialité et Conditions d’utilisation s’appliquent.

En poursuivant votre navigation sans modifier vos paramètres, vous acceptez l'utilisation de cookies susceptibles de réaliser des statistiques de visite. Cliquez ici pour plus d'informations