Bénéficiez des services de nos partenaires locaux soigneusement sélectionnés
pour vous accompagner dans votre parcours d'achat immobilier

Voir tous les partenaires locaux

Appartement rénové

— La Rochelle 17000 —
530 000 €
91 m²
3 pièces

Nos partenaires locaux
Votre peintre/décorateur
Décoration, peinture intérieure & ravalement de façade en Vendée et Charente-Maritime.
02 51 00 90 96 ou cliquez-ici
Votre parquettiste
Votre professionnel spécialisé dans la pose, la rénovation et l'entretien de parquets sur La Rochelle et les alentours
06 42 10 14 03 ou cliquez-ici
Votre chercheur de fuite
Expert en recherche de fuite d'eau. Nous localisons, sans rien casser. Avec nous, toutes les fuites ont une fin.
09 70 72 39 73 ou cliquez-ici
Votre artisan peintre
Fort de 15 ans d'expérience dans la rénovation et remise en état , peinture intérieure et extérieure.Contactez nous au
06 65 06 51 81 ou cliquez-ici
Votre paysagiste local
Terrasses & Jardins, l’adresse incontournable pour tous vos projets d’aménagement extérieur sur mesure et de qualité
05 46 42 57 36 ou cliquez-ici
Votre ingénieur/maître d'œuvre
ADC17/ADC.Construction a pour vocation de répondre à vos besoins dans vos projets rénovation ou construction.
0630542854 ou cliquez-ici

Voir tous les partenaires locaux

17000, La Rochelle – APPARTEMENT LUMINEUX AVEC VUE VIEUX PORT, JARDIN ET GARAGE À PROXIMITÉ IMMÉDIATE

Raphaël Charbonnier vous propose en exclusivité cet appartement de 91 m², idéalement situé à deux pas du Vieux Port et de la gare SNCF, dans une petite copropriété calme et familiale de 6 lots.

Une visite virtuelle est à votre disposition directement dans l'annonce.
Vous pouvez la consulter en ligne ou me contacter pour en faire la demande.

Descriptif du bien

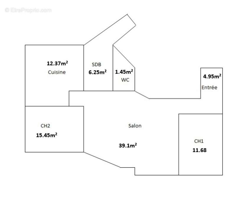
Situé au 2ᵉ étage, cet appartement de 3 pièces séduit immédiatement par sa lumière traversante, ses beaux volumes et son emplacement exceptionnel en cœur de ville.

Surface habitable : 91 m²

Grande pièce de vie d'environ 40 m², baignée de lumière

Vue dégagée sur le Vieux Port et l'Aquarium de La Rochelle depuis le salon et l'une des chambres

Cuisine indépendante, donnant sur le jardin

2 chambres, dont une avec vue emblématique sur le port

Salle d'eau entièrement rénovée, avec douche, moderne et fonctionnelle

Jardin privatif partagé, rare en centre-ville

Grande cave en annexe

L'appartement est en parfait état général, aucun travaux à prévoir.
La toiture de la copropriété a été entièrement refaite en 2023.

Stationnement – un vrai confort en hypercentre

En complément, possibilité d'acquérir un garage fermé, situé à seulement 10 mètres de l'appartement.

Dimensions : environ 5 m x 3,5 m

Surface : env. 17,5 m²

Accès facile, stationnement ultra pratique et confortable, un atout rare dans ce secteur
(Garage proposé en supplément)

Confort & performance énergétique

Chauffage et climatisation par pompe à chaleur réversible
Double vitrage
DPE : C, logement performant et économe
Taxe foncière : 1 754 € / an
Charges de copropriété : 1050 € / an

Cadre de vie & environnement

Un emplacement premium offrant un quotidien 100 % à pied :
Vieux Port, marché central, commerces
Parcs, plages et front de mer
Gare SNCF à proximité

Un bien parfaitement adapté à une résidence principale, mais également à une activité de bureaux ou profession libérale, compte tenu de sa situation et de sa configuration.

Financement

Si vous avez besoin d'un financement, n'hésitez pas à me contacter.
Je travaille avec des partenaires courtiers efficaces et réactifs qui pourront vous aider.

Je serai ravi de vous faire visiter ce bien.
N'hésitez pas à me contacter et à prendre rendez-vous.
Les informations sur les risques auxquels ce bien est exposé sont disponibles sur le site Georisque : georisques. gouv. fr
Raphaël Charbonnier - EI - est Agent Commercial mandataire en immobilier, immatriculé au Registre Spécial des Agents Commerciaux du Tribunal de Commerce de La Rochelle sous le n°908071210.
Siège social du mandant : effiCity, 48 avenue de Villiers - 75017 PARIS - Société par Actions Simplifiée, société au capital de 132 373,05 euros, immatriculée au RCS Paris 497 617 746 et titulaire de la Carte professionnelle CPI 75[Coordonnées masquées]02 025 - CCI Paris IDF - Caisse de Garantie : GALIAN Assurances 89 rue de la Boétie 75008 Paris
Voir plus

Référence: 205964
Bien en copropriété. Nombre de lots : 6. Charges de copropriété : 87 €.
Honoraires d'agence de 5.24% à la charge de l'acquéreur
Barème des honoraires
DPE
A
B
C
D
E
F
G
GES
A
B
C
D
E
F
G
Appartement à LA ROCHELLE
Appartement à LA ROCHELLE
Appartement à LA ROCHELLE
Appartement à LA ROCHELLE
Appartement à LA ROCHELLE
Appartement à LA ROCHELLE
Appartement à LA ROCHELLE
Appartement à LA ROCHELLE
Appartement à LA ROCHELLE
Appartement à LA ROCHELLE
Appartement à LA ROCHELLE
Appartement à LA ROCHELLE
Appartement à LA ROCHELLE
Appartement à LA ROCHELLE
Géorisques

Les informations sur les risques auxquels ce bien est exposé sont disponibles sur le site Géorisques : www.georisques.gouv.fr

Ce site est protégé par hCaptcha Politique de confidentialité et Conditions d’utilisation s’appliquent.

En poursuivant votre navigation sans modifier vos paramètres, vous acceptez l'utilisation de cookies susceptibles de réaliser des statistiques de visite. Cliquez ici pour plus d'informations