Bénéficiez des services de nos partenaires locaux soigneusement sélectionnés
pour vous accompagner dans votre parcours d'achat immobilier

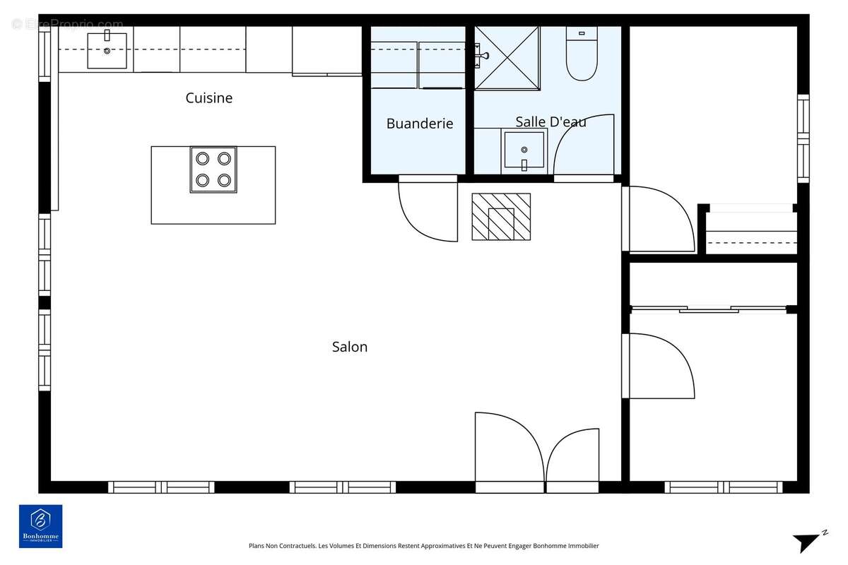
Maison 3 pièces - 59 m² Langoiran

— Langoiran 33550 —
149 250 €
59 m² / 186 m²
3 pièces
jardin

Nos partenaires locaux
LANGOIRAN – 33550

NOUVEAUTÉ, EXCLUSIVITÉ
Maison de bourg, proximité immédiate des commerces et services / 30 minutes de Bordeaux Centre / 20 minutes Rocade.

Cette maison se compose d’un grand séjour ouvert avec cuisine équipée et poêle à bois, 1 petite buanderie, 1 salle d’eau avec WC, ainsi que 2 pièces de plus idéales pour bureau ou chambres d’appoint.

À l’extérieur, une terrasse carrelée de 18m2 longe la maison qui se trouve sur une parcelle de 186m2 idéalement orientée sud-ouest.

À l’avant de la maison un jardin d'accueil plein sud avec abri bois, possibilité de garer deux véhicules sur la parcelle entièrement clôturée et fermée par un portail en fer forgé. Pas de vis à vis.

La maison est au tout à l’égout et raccordée à la fibre.


Mentions Loi Alur :
- Statut du négociateur : Agent Commercial
- Prix HAI TTC de 149 250 €
- Honoraires charge : vendeur
- Référence annonce : 452VAB26
- Date de réalisation du diagnostic énergétique : 31/03/2026
- Consommation énergétique : 339 kWh/m²/an
- Emission de gaz à effet de serre : 12 Kg CO2/m²/an
- Montant estimé des dépenses annuelles pour un usage standard : entre 1590 € et 2190 € / an. Prix moyen des énergies indexé sur l’année de référence :
- Logement à consommation énergétique excessive
- Les informations sur les risques auxquels ce bien est exposé sont disponibles sur le site Géorisques : georisques.gouv.fr
Voir plus

Référence: 86872883
Barème des honoraires
DPE
A
B
C
D
E
F
G
GES
A
B
C
D
E
F
G
Maison à LANGOIRAN
Maison à LANGOIRAN
Maison à LANGOIRAN
Maison à LANGOIRAN
Maison à LANGOIRAN
Maison à LANGOIRAN
Maison à LANGOIRAN
Maison à LANGOIRAN
Maison à LANGOIRAN
Maison à LANGOIRAN
Maison à LANGOIRAN
Maison à LANGOIRAN
Maison à LANGOIRAN
Maison à LANGOIRAN
Géorisques

Les informations sur les risques auxquels ce bien est exposé sont disponibles sur le site Géorisques : www.georisques.gouv.fr

Ce site est protégé par hCaptcha Politique de confidentialité et Conditions d’utilisation s’appliquent.

En poursuivant votre navigation sans modifier vos paramètres, vous acceptez l'utilisation de cookies susceptibles de réaliser des statistiques de visite. Cliquez ici pour plus d'informations