Bénéficiez des services de nos partenaires locaux soigneusement sélectionnés
pour vous accompagner dans votre parcours d'achat immobilier

Appartement spacieux de 7 pièces - 186 m² Carrez - Charme de l'ancien - 75003 Paris

— Paris-3e 75003 —
1 960 000 €
186 m²
7 pièces
ascenseur

Nos partenaires locaux
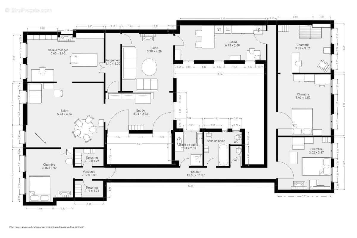
Hosman propose à la vente ce bel appartement de 186,08 m² Carrez (189,07 m² au sol), situé au premier étage sur sept avec ascenseur d'un immeuble de 1920, sécurisé par un double sas.

L'appartement se compose d'une entrée donnant sur une salle à manger de 16 m², d'un séjour de 27 m², d'un salon de musique de 20 m², d'une première chambre pouvant être transformée en triple séjour, d'une cuisine individuelle, de trois autres chambres de 12, 13 et 11 m² donnant sur la rue Sainte-Apolline, d'une salle d'eau et d'une salle de bain avec WC séparé.

Nombreux rangements et possibilités d'aménagement variées. L'appartement bénéficie du charme de l'ancien : moulures, parquet, cheminée et belle hauteur sous plafond.

Bien idéalement situé dans un quartier commerçant et touristique, parfaitement desservi par les transports (M3, M4, M8, M9, M11 – Strasbourg–Saint-Denis, Réaumur–Sébastopol, Arts et Métiers). À proximité directe des Halles (Châtelet) ou de la Porte Saint-Denis, l'appartement se trouve au cœur de l'écosystème parisien. Le Marais est à moins de 5 minutes à pied. Il est également facile de rejoindre les Grands Boulevards ou République.

Chauffage et eau chaude au gaz.
La taxe foncière est de 3335 €.

Le bien est soumis au statut de copropriété.
Hosman s'efforce de réinventer l'agence immobilière en offrant un service innovant et transparent aux acheteurs et aux vendeurs. Nos frais d'agence sont de 39,200 euros au pourcentage à la charge du vendeur. Si vous êtes un professionnel de l'immobilier (agent, mandataire ou chasseur immobilier), sachez que toutes les annonces Hosman sont ouvertes à la collaboration. N'hésitez pas à nous contacter pour en discuter.
Voir plus

Référence: 6ddf34
Bien en copropriété. Charges de copropriété : 329 €.
Honoraires à la charge du vendeur.
DPE
A
B
C
D
E
F
G
GES
A
B
C
D
E
F
G
Appartement à PARIS-3E
Appartement à PARIS-3E
Appartement à PARIS-3E
Appartement à PARIS-3E
Appartement à PARIS-3E
Appartement à PARIS-3E
Appartement à PARIS-3E
Appartement à PARIS-3E
Appartement à PARIS-3E
Appartement à PARIS-3E
Appartement à PARIS-3E
Appartement à PARIS-3E
Appartement à PARIS-3E
Appartement à PARIS-3E
Appartement à PARIS-3E
Appartement à PARIS-3E
Appartement à PARIS-3E
Appartement à PARIS-3E
Appartement à PARIS-3E
Appartement à PARIS-3E
Appartement à PARIS-3E
Appartement à PARIS-3E
Appartement à PARIS-3E
Appartement à PARIS-3E
Géorisques

Les informations sur les risques auxquels ce bien est exposé sont disponibles sur le site Géorisques : www.georisques.gouv.fr

Ce site est protégé par hCaptcha Politique de confidentialité et Conditions d’utilisation s’appliquent.

En poursuivant votre navigation sans modifier vos paramètres, vous acceptez l'utilisation de cookies susceptibles de réaliser des statistiques de visite. Cliquez ici pour plus d'informations