Bénéficiez des services de nos partenaires locaux soigneusement sélectionnés
pour vous accompagner dans votre parcours d'achat immobilier

Maison de 4 pièces de 84 m² à Saubion- Maison Neuve (2024) – Prestations Clés en Main

— Saubion 40230 —
425 000 €
84 m² / 102 m²
4 pièces
parkingjardin

Nos partenaires locaux
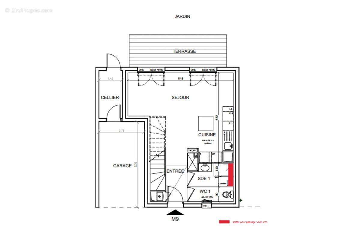
Vous recherchez le confort du neuf sans attendre la construction ? Cette maison en R+1 mitoyenne par le garage de 84 m², livrée en 2024, est l'opportunité idéale. Alliant modernité, calme et praticité, elle n'attend plus que vos valises.

Les Atouts de la Maison :
Espace Vie & Nuit : Un intérieur lumineux et parfaitement au goût du jour. À l'étage, vous découvrirez 3 chambres confortables, une salle d'eau moderne et un WC indépendant.
Au RDC, Salle d'eau également et WC visiteur.

Extérieurs & Annexes : Édifiée sur une parcelle d'environ 214 m², le terrain est optimisé pour un entretien facile. Le vrai "plus" ? Un garage complété par un espace atelier, idéal pour le bricolage ou le stockage.

Confort & Énergie : Chauffage performant via une chaudière centrale au gaz. Vous bénéficiez de toutes les garanties décennales en cours pour une sérénité totale.

Un Emplacement Privilégié :
Située dans un environnement au calme, la maison profite d'une situation géographique stratégique :

À deux pas de la piste cyclable pour vos balades.

Proximité immédiate des commerces et services.

L'avis de l'expert : Une maison extrêmement saine, fonctionnelle et lumineuse. Pour tout projet dans le sud des Landes, le Pays d'Adour ou la région de Dax, cette perle est à découvrir sans tarder.

Caractéristiques techniques

- Taxe foncière : 221 €
- DPE : C
- Mode de chauffage : gaz
- Distribution de l'eau chaude : gaz

Mentions légales :

Les données cartographiques et les informations publiques relatives aux risques (naturels, technologiques et sismiques) sont consultables sur www.georisques.gouv.fr. Elles constituent un support d'information général, mis à disposition par les autorités compétentes. Ces éléments sont fournis à titre informatif et doivent être complétés par les diagnostics techniques et les vérifications préalables. Pour des informations locales complémentaires, contactez la mairie ou consultez la documentation officielle. Annonce diffusée par Zefir.

Pour toute question, contactez Zefir au [Coordonnées masquées].
Voir plus

Référence: 680119c7-f72e-40e3-82b5-ede7b5
Bien en copropriété.
Honoraires à la charge du vendeur.
DPE
A
B
C
D
E
F
G
GES
A
B
C
D
E
F
G
Maison à SAUBION
Maison à SAUBION
Maison à SAUBION
Maison à SAUBION
Maison à SAUBION
Maison à SAUBION
Maison à SAUBION
Maison à SAUBION
Maison à SAUBION
Maison à SAUBION
Maison à SAUBION
Maison à SAUBION
Maison à SAUBION
Maison à SAUBION
Maison à SAUBION
Maison à SAUBION
Maison à SAUBION
Maison à SAUBION
Maison à SAUBION
Maison à SAUBION
Géorisques

Les informations sur les risques auxquels ce bien est exposé sont disponibles sur le site Géorisques : www.georisques.gouv.fr

Ce site est protégé par hCaptcha Politique de confidentialité et Conditions d’utilisation s’appliquent.

En poursuivant votre navigation sans modifier vos paramètres, vous acceptez l'utilisation de cookies susceptibles de réaliser des statistiques de visite. Cliquez ici pour plus d'informations