Bénéficiez des services de nos partenaires locaux soigneusement sélectionnés
pour vous accompagner dans votre parcours d'achat immobilier

Appartement 70 m² à Grasse

— Grasse 06130 —
349 000 €
70 m²
4 pièces
balcon/terrasse

Nos partenaires locaux
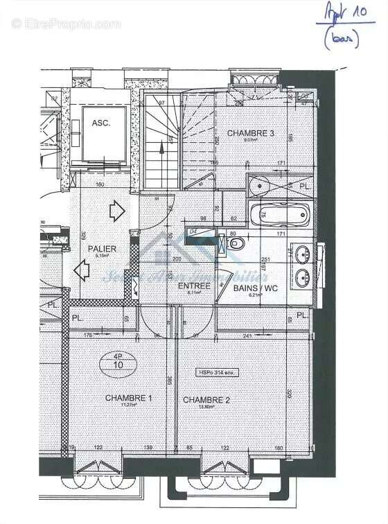
Grasse - 4P DUPLEX avec grande terrasse Dans un bel Immeuble Belle Epoque avec ascenseur, un appartement 4 pièces en duplex au 4eme / 5eme dernier étage avec grande terrasse sur les hauteurs de GRASSE, Secteur Traverse du Prado - La Marbrière.



Sa surface est de 70,95 m² habitables sur 2 niveaux + 34,30 m² de terrasse environ en dernier étage. La vue est exceptionnelle sur la ville de Grasse et l'Estérel et ce, jusqu'à la mer.

Exposé plein Sud, il est très lumineux et sans aucun vis à vis.



L'appartement est composé au niveau inférieur R+4 d'une belle entrée avec rangement et de 3 chambres ( 1365 m2 + 10,90 m2 + 7,80 m2 ) avec placards, une grande salle de bains avec baignoire et WC.

Un escalier mène au niveau supérieur R+5 et dernier étage avec séjour de 25 m2 avec cuisine neuve totalement équipée.


L'ensemble donnant sur la très grande terrasse avec vue panoramique.

DPE : D / A


Les charges de copropriété s'élèvent à 350 euros /mensuel comprenant l'eau froide.

Le chauffage et l'eau chaude sont individuels.

Les honoraires de vente sont à la charge du vendeur .



Possibilité d'acquérir un double garage mobile en supplément.



Les informations sur les risques auxquels ce bien est exposé sont disponibles sur le site Géorisques. N'hésitez pas à nous contacter pour une visite de ce bien au fort caractère !

--------------------------------



Vous avez le projet de vendre votre bien immobilier, mais vous ne savez pas quelle est la valeur réelle de celui-ci à l'instant T.



Aller sur notre site internet ''

-cliquez sur 'J'estime mon bien' de la page d'accueil

=> En moins de 2min chrono vous avez la valeur de votre bien à l'instant T

-SI VOUS NOUS CONFIEZ VOTRE BIEN IMMOBILIER EN EXCLUSIVITE, ON VOUS PAIE/REMBOURSE LES DIAGNOSTICS ( en cas de vente )
Voir plus

Référence: AG1260-86541076B
DPE
A
B
C
D
E
F
G
GES
A
B
C
D
E
F
G
Appartement à GRASSE
Appartement à GRASSE
Appartement à GRASSE
Appartement à GRASSE
Appartement à GRASSE
Appartement à GRASSE
Appartement à GRASSE
Appartement à GRASSE
Appartement à GRASSE
Géorisques

Les informations sur les risques auxquels ce bien est exposé sont disponibles sur le site Géorisques : www.georisques.gouv.fr

Ce site est protégé par hCaptcha Politique de confidentialité et Conditions d’utilisation s’appliquent.

En poursuivant votre navigation sans modifier vos paramètres, vous acceptez l'utilisation de cookies susceptibles de réaliser des statistiques de visite. Cliquez ici pour plus d'informations