Bénéficiez des services de nos partenaires locaux soigneusement sélectionnés
pour vous accompagner dans votre parcours d'achat immobilier

Exclusivité - maison saint-jacut-de-la-mer

— Saint-Jacut-De-La-Mer 22750 —
556 500 €
112 m² / 417 m²
4 pièces
jardin

Nos partenaires locaux

EXCLUSIVITÉ ARMOR CONSEIL IMMOBILIER - Geoffrey PERRÉE vous propose, à seulement 200 mètres de la plage, au cœur de l’extra-centre de la presqu’île, une opportunité unique d’acquérir une maison neuve dans un environnement aussi recherché que préservé.


Cette future réalisation, dont le démarrage des travaux est imminent, vous offre la possibilité rare de devenir propriétaire d’un bien aux dernières normes de construction (RE2020), alliant confort moderne, performance énergétique et qualité de vie incomparable.
Pensée pour répondre aux exigences actuelles, cette maison proposera des prestations de qualité, une conception optimisée et des espaces de vie lumineux, le tout dans un cadre privilégié à proximité immédiate de la mer.

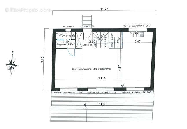
Cette maison en ossature bois et laine de bois est composée au rez-de-chaussée d'une belle pièce de vie lumineuse avec grande cuisine, d'une salle d'eau, un wc et une terrasse plein sud.
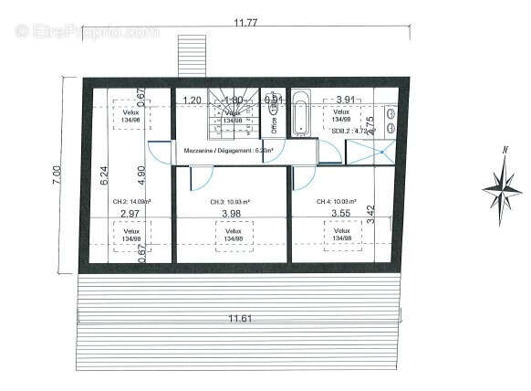
A l'étage un palier desservant 3 chambres, une salle de bains et un wc.
Le tout sur un terrain de 417m2.

Prestations haut de gamme !

Fin des travaux en octobre 2026, à voir très rapidement !

Les informations sur les risques auxquels ce bien est exposé sont disponibles sur le site Géorisques : www.georisques.gouv.fr
Voir plus

Référence: 14167
Honoraires d'agence de 5% à la charge de l'acquéreur
Barème des honoraires
Maison à SAINT-JACUT-DE-LA-MER
Maison à SAINT-JACUT-DE-LA-MER
Maison à SAINT-JACUT-DE-LA-MER
Maison à SAINT-JACUT-DE-LA-MER
Maison à SAINT-JACUT-DE-LA-MER
Géorisques

Les informations sur les risques auxquels ce bien est exposé sont disponibles sur le site Géorisques : www.georisques.gouv.fr

Ce site est protégé par hCaptcha Politique de confidentialité et Conditions d’utilisation s’appliquent.

En poursuivant votre navigation sans modifier vos paramètres, vous acceptez l'utilisation de cookies susceptibles de réaliser des statistiques de visite. Cliquez ici pour plus d'informations