Bénéficiez des services de nos partenaires locaux soigneusement sélectionnés
pour vous accompagner dans votre parcours d'achat immobilier

Maison familiale avec potentiel - Limite Rueil-Malmaison

— Nanterre 92000 —
549 000 €
100 m² / 386 m²
4 pièces
parkingbalcon/terrassejardin

Nos partenaires locaux
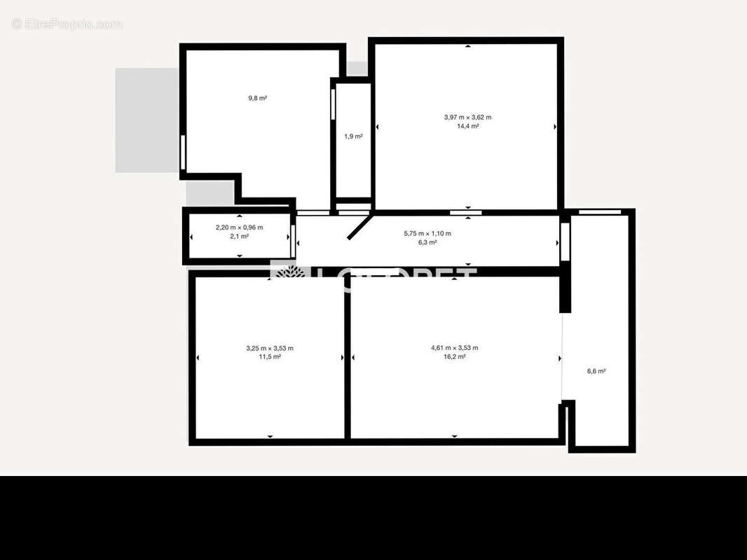
Cette maison profite d'un emplacement recherché : à 12 minutes à pied du RER, 5 minutes des écoles et à 8 minutes du marché de Nanterre Ville. Elle se compose d'un séjour traversant d'environ 30 m², d'une cuisine ouvrant sur une véranda lumineuse donnant accès à un jardin. L'espace nuit comprend deux chambres, les combles d'environ 60 m², avec une belle hauteur sous plafond, offrent un beau potentiel d'aménagement avec la possibilité de créer deux chambres supplémentaires et une seconde salle d'eau avec WC. Un sous-sol total avec garage double et espaces de rangement complète ce bien, édifié sur un terrain arboré de 386 m². Visite virtuelle ainsi que le devis des travaux disponibles sur demande (5.78 % honoraires TTC à la charge de l'acquéreur.)
Voir plus

Référence: 3675
Honoraires d'agence de 5.78% à la charge de l'acquéreur
Barème des honoraires
DPE
A
B
C
D
E
F
G
GES
A
B
C
D
E
F
G
Maison à NANTERRE
Maison à NANTERRE
Maison à NANTERRE
Maison à NANTERRE
Maison à NANTERRE
Maison à NANTERRE
Maison à NANTERRE
Maison à NANTERRE
Maison à NANTERRE
Maison à NANTERRE
Maison à NANTERRE
Maison à NANTERRE
Maison à NANTERRE
Maison à NANTERRE
Maison à NANTERRE
Maison à NANTERRE
Maison à NANTERRE
Maison à NANTERRE
Géorisques

Les informations sur les risques auxquels ce bien est exposé sont disponibles sur le site Géorisques : www.georisques.gouv.fr

Ce site est protégé par hCaptcha Politique de confidentialité et Conditions d’utilisation s’appliquent.

En poursuivant votre navigation sans modifier vos paramètres, vous acceptez l'utilisation de cookies susceptibles de réaliser des statistiques de visite. Cliquez ici pour plus d'informations