Bénéficiez des services de nos partenaires locaux soigneusement sélectionnés
pour vous accompagner dans votre parcours d'achat immobilier

Exclusivité doly // grand 2 pièces // grand rooftop // mairie d'issy

— Issy-Les-Moulineaux 92130 —
599 000 €

Nos partenaires locaux
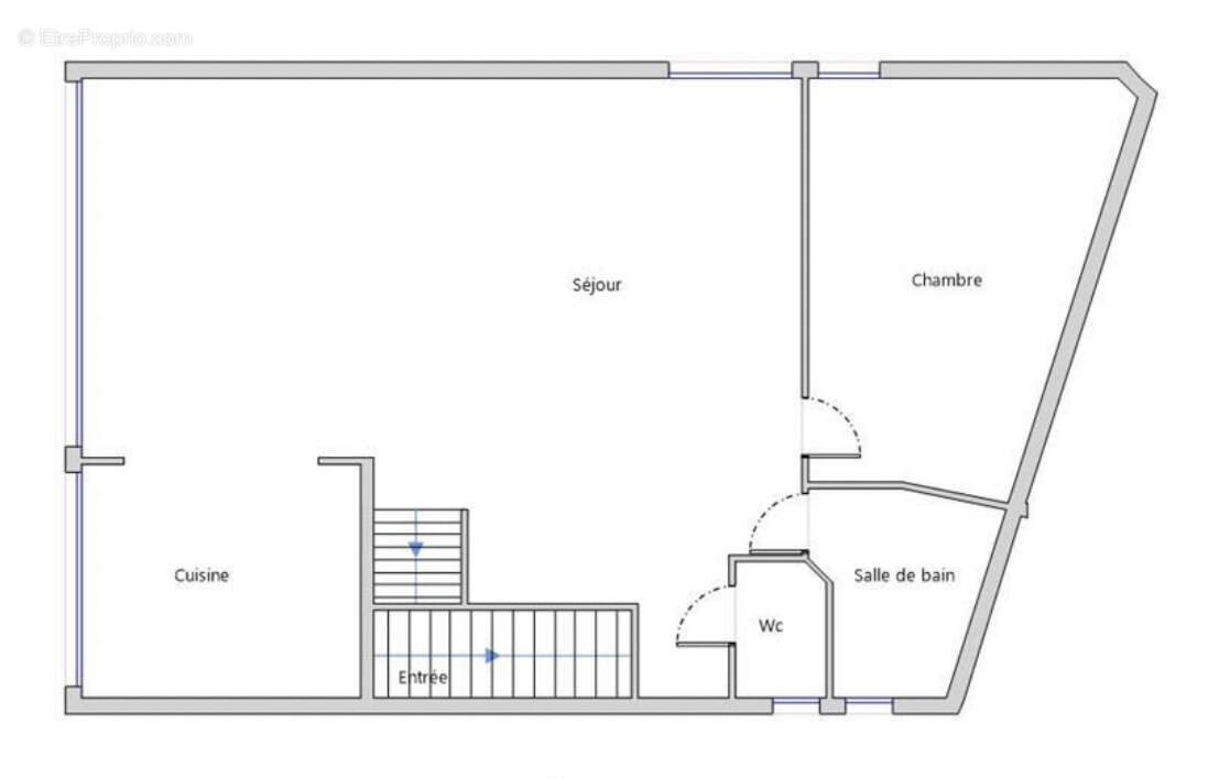
Idéalement situé à deux pas de la Mairie d'Issy-les-Moulineaux, DOLY est fier de vous présenter en EXCLUSIVITÉ ce grand deux pièces de 64,40 m2 (dont 59,60 m2 loi carrez) au 1er étage d'un petit immeuble des années 30 et son rooftop de 58,80 m2.

* PROFESSION LIBÉRAL AUTORISÉE *

Vous serez séduit par son double séjour de 36,45 m2 baigné de lumière naturelle grâce à son plafond en brique de verre et ses trois fenêtres exposé Sud-Ouest et son vaste rooftop accessible directement depuis l'appartement.
Il se compose également d'une cuisine semi-ouverte donnant sur le séjour, une chambre avec placards, une salle de bain et un toilette indépendant.

Possibilité de créer une seconde chambre.
Travaux de rafraîchissement à prévoir.

DPE E/B
Plancher chauffant à rayonnement électrique individuel
Ballon d'eau chaude individuel

* À VISITER *
Voir plus

Référence: DOM28192-7
Bien en copropriété. Nombre de lots : 2.
Honoraires d'agence de 5% à la charge de l'acquéreur
DPE
A
B
C
D
E
F
G
GES
A
B
C
D
E
F
G
Commerce à ISSY-LES-MOULINEAUX
Commerce à ISSY-LES-MOULINEAUX
Commerce à ISSY-LES-MOULINEAUX
Commerce à ISSY-LES-MOULINEAUX
Commerce à ISSY-LES-MOULINEAUX
Commerce à ISSY-LES-MOULINEAUX
Commerce à ISSY-LES-MOULINEAUX
Commerce à ISSY-LES-MOULINEAUX
Commerce à ISSY-LES-MOULINEAUX
Commerce à ISSY-LES-MOULINEAUX
Géorisques

Les informations sur les risques auxquels ce bien est exposé sont disponibles sur le site Géorisques : www.georisques.gouv.fr

Ce site est protégé par hCaptcha Politique de confidentialité et Conditions d’utilisation s’appliquent.

En poursuivant votre navigation sans modifier vos paramètres, vous acceptez l'utilisation de cookies susceptibles de réaliser des statistiques de visite. Cliquez ici pour plus d'informations