Bénéficiez des services de nos partenaires locaux soigneusement sélectionnés
pour vous accompagner dans votre parcours d'achat immobilier

À 10 minutes en vélo des plages, maison contemporaine familiale et au calme – Coup de cœur à Erdeven

— Erdeven 56410 —
624 995 €
176 m² / 774 m²
6 pièces
parkingbalcon/terrassejardin

Nos partenaires locaux
Bienvenue chez Abriculteurs, l'agence familiale engagée à vous offrir un service immobilier d'exception. Profitez d'une présentation soignée de ce bien : photos professionnelles, plan détaillé et visite virtuelle immersive pour vous projeter dans un cadre unique. Faites confiance à notre expertise pour concrétiser tous vos projets immobiliers.

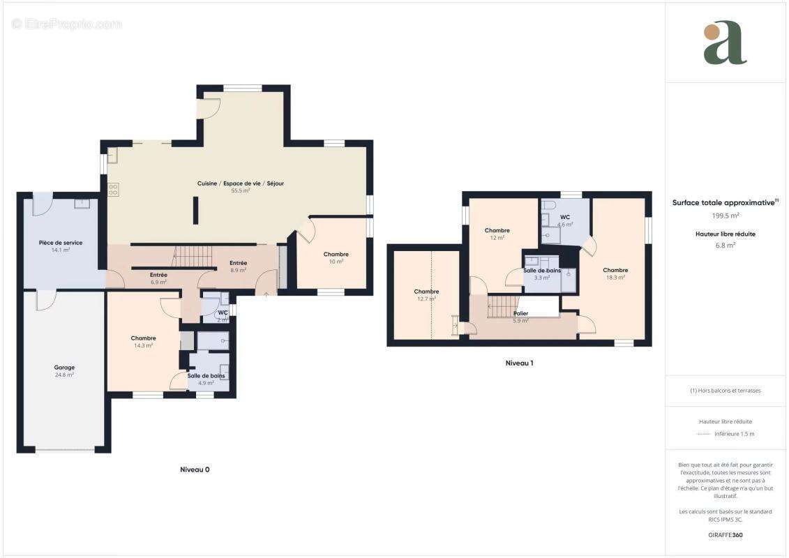
Venez découvrir cette maison de 150 m² (plus de 190 m² de surface utile), idéalement située à deux pas du centre-ville d'Erdeven, accessible à pied ou à vélo, tout en profitant du calme d'un hameau résidentiel.

Dès l'entrée, vous serez séduits par un vaste espace de vie lumineux, comprenant une cuisine ouverte, une salle à manger conviviale et un salon chaleureux, tous ouverts sur la terrasse.

Au rez-de-chaussée, vous trouverez également :
• Une chambre ou bureau pratique
• Une suite parentale avec salle de bain et toilettes séparées
• Une arrière-cuisine
• Un grand garage

À l'étage, le confort se poursuit avec :
• Deux grandes chambres, chacune dotée d'une salle de bain et de toilettes privatives
• Une pièce mansardée, idéale en chambre d'appoint ou en bureau

À l'extérieur, tout a été pensé pour votre confort et la convivialité :
• Une terrasse abritée par un auvent, parfaite pour les repas
• Un espace barbecue, légèrement à l'écart pour éviter les désagréments de fumée, tout en restant proche de la table
• Un carport, en complément du garage, pour stationner à l'abri

Commodités et accès :
• Commerces, écoles et services accessibles en quelques minutes à pied ou à vélo
• Plages et sentiers côtiers à quelques kilomètres seulement
• Accès rapide à la voie express et à la gare d'Auray à 15 minutes

Les + du bien :
• Maison récente, volumes généreux, meublée
• Calme absolu, sans vis-à-vis direct
• Possibilité de vie de plain-pied
• Bon état, quelques travaux de décoration à prévoir dans une chambre
• Aménagements extérieurs fonctionnels et pensés pour le quotidien

À noter :
- Taxe foncière : 1 126 € /an
- État du bien : bon état (papier peint à refaire dans une chambre à l'étage)
- Bien raccordé à une fosse septique

Consommation conventionnelle (kWhEP/m².an) : 216 (D)
Estimation des émissions (kg CO₂/m².an) : 7 (B)
Coût annuel de l'énergie estimé : 2 449 € / 3 313 €
Années de référence des prix : 2021 – 2022 – 2023
Prix de vente : 624 995 € TTC (Honoraires Abriculteurs à la charge du vendeur).

Les informations sur les risques auxquels ce bien est exposé sont disponibles sur le site Géorisques : www.georisques.gouv.fr

Annonce rédigée sous la responsabilité éditoriale de M. Cédric Coffin, agent commercial (EI), immatriculé au RSAC de Lorient sous le n° 490 141 538 sans détention de fonds, agissant pour le compte de la SARL Abriculteurs immobilier, au capital de 5 000 €, immatriculée sous le SIREN n° 837 704 584, titulaire de la carte professionnelle n° CPI 75[Coordonnées masquées]25 842 délivrée par la CCI de Paris Île-de-France, dont le représentant légal est M. Adrien Piot, ayant son siège social au 12 rue des Halles, 75001 Paris.
Les informations sur les risques auxquels ce bien est exposé sont disponibles sur le site www.georisques.gouv.fr

Cédric COFFIN
EI • RSAC LORIENT 490 141 538
Voir plus

Référence: CCVM030417556410_2
Honoraires à la charge du vendeur.
Barème des honoraires
DPE
A
B
C
D
E
F
G
GES
A
B
C
D
E
F
G
Maison à ERDEVEN
Maison à ERDEVEN
Maison à ERDEVEN
Maison à ERDEVEN
Maison à ERDEVEN
Maison à ERDEVEN
Maison à ERDEVEN
Maison à ERDEVEN
Maison à ERDEVEN
Maison à ERDEVEN
Maison à ERDEVEN
Maison à ERDEVEN
Maison à ERDEVEN
Maison à ERDEVEN
Maison à ERDEVEN
Maison à ERDEVEN
Maison à ERDEVEN
Maison à ERDEVEN
Maison à ERDEVEN
Maison à ERDEVEN
Maison à ERDEVEN
Géorisques

Les informations sur les risques auxquels ce bien est exposé sont disponibles sur le site Géorisques : www.georisques.gouv.fr

Ce site est protégé par hCaptcha Politique de confidentialité et Conditions d’utilisation s’appliquent.

En poursuivant votre navigation sans modifier vos paramètres, vous acceptez l'utilisation de cookies susceptibles de réaliser des statistiques de visite. Cliquez ici pour plus d'informations