Bénéficiez des services de nos partenaires locaux soigneusement sélectionnés
pour vous accompagner dans votre parcours d'achat immobilier

Ecurie Maison semi individuelle 4 pièces 82 m2

— Arras 62000 —
227 000 €
82 m² / 364 m²
4 pièces

Nos partenaires locaux
Maison semi individuelle récente de 82 m² à vendre à Écurie

Découvrez cette jolie maison semi individuelle située dans un lotissement calme, à seulement 500 mètres du centre-ville et à 6 minutes en voiture d'Arras et 15 minutes de Lens.

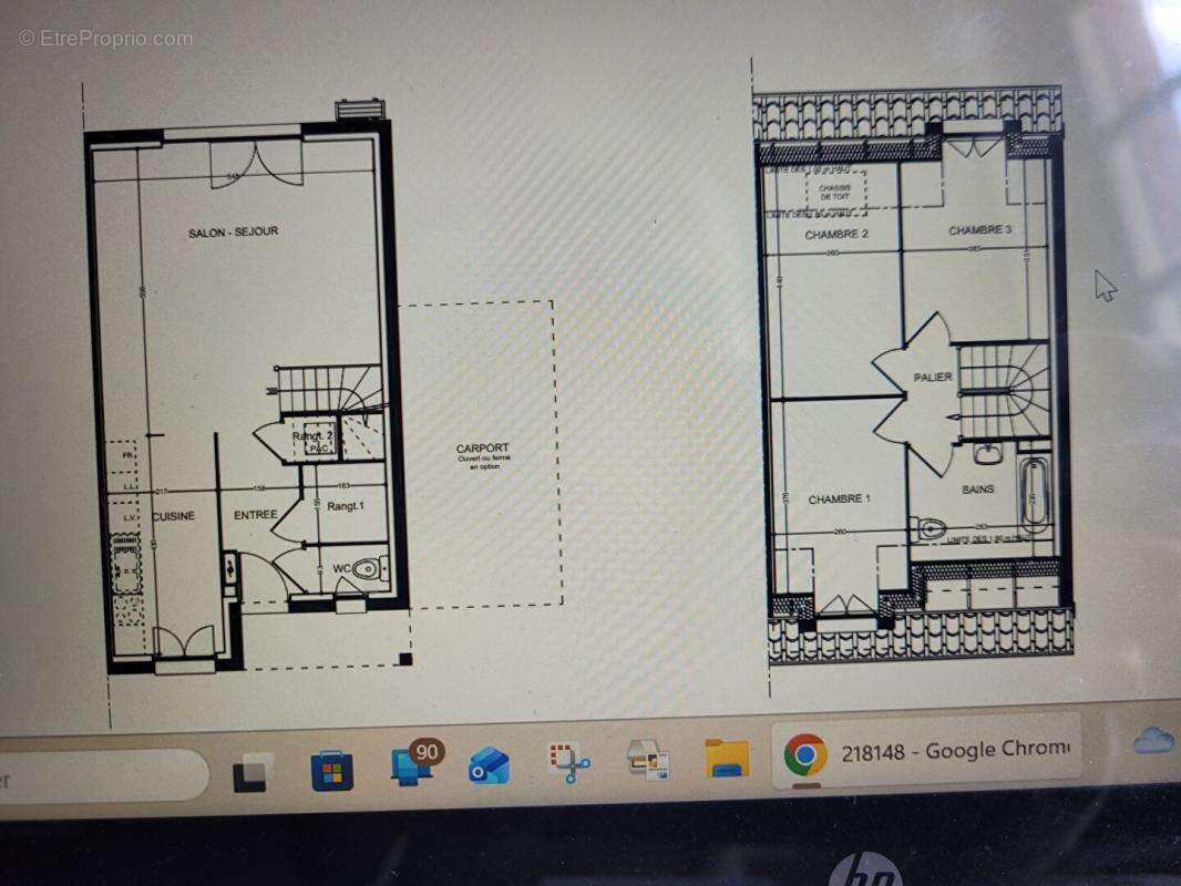
La maison se compose:
Au RDC:
Salon avec sa cuisine ouverte de 39 m²
Salle d'eau
Placard

Au 1er étage:
3 chambres
Salle de bains

Carport
Jardin gazonné et clôturé

Maison RE2020
Chauffage par pompe à chaleur, économique et performant

Prix: 227 000 euros frais d'agence à la charge vendeur

Pour visiter et vous accompagner dans votre projet, contactez Corinne DEFRANCE, au [Coordonnées masquées] ou, par courriel à [Coordonnées masquées].
Selon l'article L.561.5 du Code Monétaire et Financier, pour l'organisation de la visite, la présentation d'une pièce d'identité vous sera demandée.
Cette présente annonce a été rédigée sous la responsabilité éditoriale de Corinne DEFRANCE agissant sous le statut d'agent commercial immatriculé au RSAC Douai 822355244 auprès de SAS PROPRIETES PRIVEES, au capital de 44 920 euros, ZAC LE CHÊNE FERRÉ - 44 ALLÉE DES CINQ CONTINENTS 44120 VERTOU; SIRET 487 624 777 00040, RCS Nantes. Carte Professionnelle Transactions sur immeubles et fonds de commerce (T) et Gestion immobilière (G) n°CPI 44[Coordonnées masquées]10 388 délivrée par la CCI Nantes - Saint Nazaire. Compte séquestre n°3[Coordonnées masquées] BPA SAINT-SEBASTIEN-SUR-LOIRE (44230). Garantie GALIAN-SMABTP - 89 rue de la Boétie, 75008 Paris - n°28137 J pour 2 000 000 euros pour T et 120 000 euros pour G. Assurance responsabilité civile professionnelle par GALIAN-SMABTP n° de police 28137.J

Mandat réf : 445 814 Le professionnel garantit et sécurise votre projet immobilier.

Corinne DEFRANCE (EI) Agent Commercial - Numéro RSAC : douai 822355244 - .
Les informations sur les risques auxquels ce bien est exposé sont disponibles sur le site Géorisques : www. georisques. gouv. fr
Voir plus

Référence: 445814CDEF
Honoraires à la charge du vendeur.
Maison à ARRAS
Maison à ARRAS
Maison à ARRAS
Géorisques

Les informations sur les risques auxquels ce bien est exposé sont disponibles sur le site Géorisques : www.georisques.gouv.fr

Ce site est protégé par hCaptcha Politique de confidentialité et Conditions d’utilisation s’appliquent.

En poursuivant votre navigation sans modifier vos paramètres, vous acceptez l'utilisation de cookies susceptibles de réaliser des statistiques de visite. Cliquez ici pour plus d'informations