Bénéficiez des services de nos partenaires locaux soigneusement sélectionnés
pour vous accompagner dans votre parcours d'achat immobilier

Maison familiale - 4 chambres - veranda -piscine

— Naintre 86530 —
350 000 €
184 m²
6 pièces

Nos partenaires locaux
L'agence Foncia Achat / Vente de CHATELLERAULT, vous propose le bien immobilier ci-dessous :
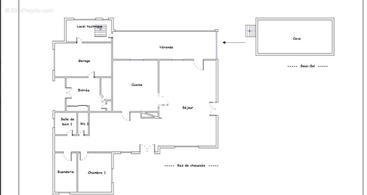
Sur la commune de Naintré, cette spacieuse maison familiale avec piscine couverte.

Au rez-de-chaussée :

Entrée
Vaste salon/séjour lumineux d'environ 53 m², accès à la véranda chauffée
Cuisine aménagée et équipée
Salle de bains
Chambre
Buanderie
WC indépendant

À l'étage :
Palier desservant deux chambres
Salle d'eau
WC indépendant

Garage attenant - local technique- cave sous partie.

Terrain arboré d'environ 2737 m².

Les informations sur les risques auxquels ce bien est exposé sont disponibles sur le site Géorisques.
La location pourra être déléguée à Foncia Développement et Location.
Voir plus

Référence: 00645471
Honoraires à la charge du vendeur.
DPE
A
B
C
D
E
F
G
GES
A
B
C
D
E
F
G
Maison à NAINTRE
Maison à NAINTRE
Maison à NAINTRE
Maison à NAINTRE
Maison à NAINTRE
Géorisques

Les informations sur les risques auxquels ce bien est exposé sont disponibles sur le site Géorisques : www.georisques.gouv.fr

Ce site est protégé par hCaptcha Politique de confidentialité et Conditions d’utilisation s’appliquent.