Bénéficiez des services de nos partenaires locaux soigneusement sélectionnés
pour vous accompagner dans votre parcours d'achat immobilier

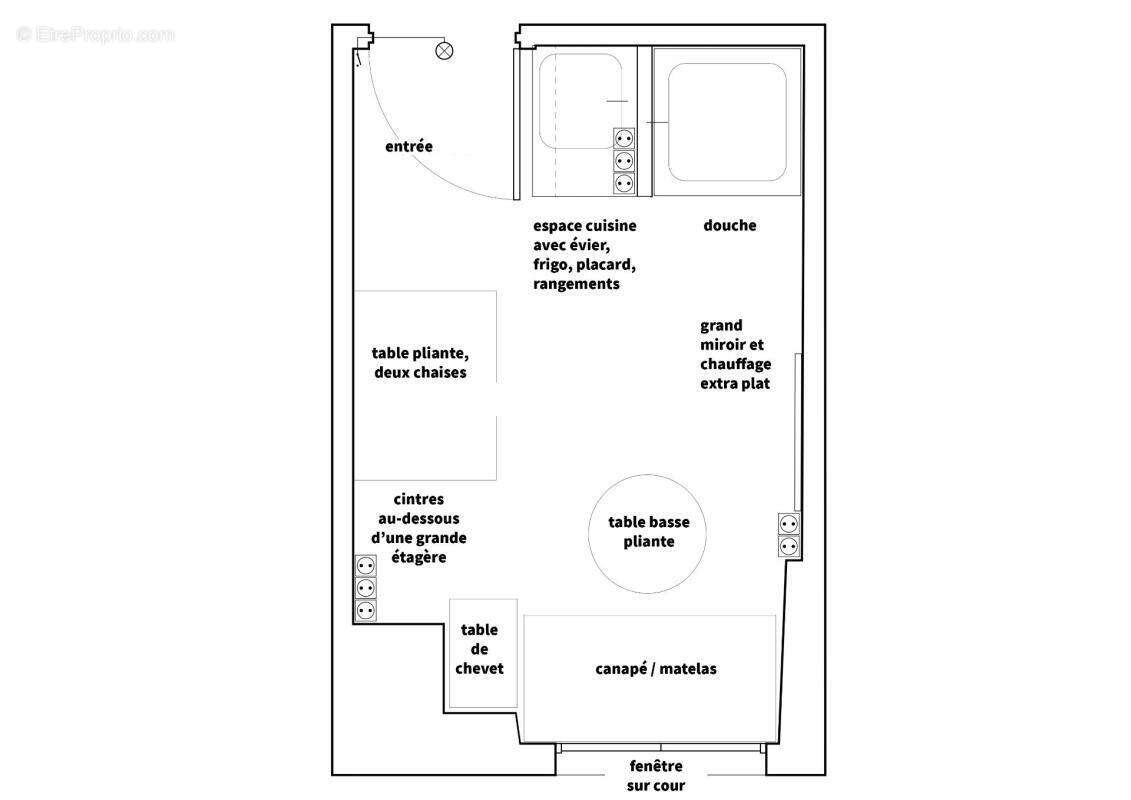
Studette optimisée – Emplacement recherché à saisir !

— Paris-11e 75011 —
74 000 €
6 m²
1 pièce

Nos partenaires locaux
Vincent HULOT vous propose ce bien :

Située rue Basfroi au sein d'une copropriété bien entretenue et sans travaux à prévoir, découvrez cette studette pleine de potentiel de 7 m².
Parfaitement agencée, elle se compose :
d'une pièce de vie fonctionnelle,
d'une kitchenette (coin cuisine aménagé),
d'une douche intégrée.
Les toilettes se trouvent sur le palier juste à côté avec un atout rare : usage privatif exclusif, la propriétaire étant la seule à en détenir la clé. Un espace suffisamment personnel pour permettre également du rangement complémentaire.
À seulement 100 mètres de la place Voltaire, vous bénéficiez d'un emplacement recherché, proche des commerces, transports et de toute la vie de quartier.
Idéal investisseur, pied-à-terre ou premier achat.\nLes informations sur les risques auxquels ce bien est exposé sont disponibles sur le site Géorisques : www.georisques.gouv.fr
Voir plus

Référence: MB6306384849
Appartement à PARIS-11E
Appartement à PARIS-11E
Appartement à PARIS-11E
Appartement à PARIS-11E
Appartement à PARIS-11E
Appartement à PARIS-11E
Appartement à PARIS-11E
Appartement à PARIS-11E
Appartement à PARIS-11E
Appartement à PARIS-11E
Appartement à PARIS-11E
Appartement à PARIS-11E
Appartement à PARIS-11E
Appartement à PARIS-11E
Appartement à PARIS-11E
Appartement à PARIS-11E
Appartement à PARIS-11E
Appartement à PARIS-11E
Appartement à PARIS-11E
Appartement à PARIS-11E
Appartement à PARIS-11E
Appartement à PARIS-11E
Géorisques

Les informations sur les risques auxquels ce bien est exposé sont disponibles sur le site Géorisques : www.georisques.gouv.fr

Ce site est protégé par hCaptcha Politique de confidentialité et Conditions d’utilisation s’appliquent.

En poursuivant votre navigation sans modifier vos paramètres, vous acceptez l'utilisation de cookies susceptibles de réaliser des statistiques de visite. Cliquez ici pour plus d'informations