Bénéficiez des services de nos partenaires locaux soigneusement sélectionnés
pour vous accompagner dans votre parcours d'achat immobilier

Chaponost – Maison familiale avec potentiel, au calme absolu

— Chaponost 69630 —
480 000 €
95 m² / 977 m²
4 pièces
parkingbalcon/terrasse

Nos partenaires locaux
Optimhome, en partenariat avec Zéfir, vous propose à la vente cette maison de 95 m² idéalement située à Chaponost, au fond d'une impasse, dans un environnement calme et recherché, à proximité immédiate du centre-village, des commerces et des transports.

Dès l'arrivée, vous serez séduit par son emplacement privilégié, sans vis-à-vis ni passage, offrant un cadre de vie paisible tout en restant proche de toutes les commodités. Lumineuse et bien agencée, cette maison est parfaitement adaptée à une vie de famille.

Elle se compose d'une pièce de vie agréable, d'une cuisine, de trois chambres, d'une salle de bain, d'un WC, d'une entrée ainsi que d'une véranda, véritable espace de vie supplémentaire, idéal pour profiter de chaque saison.

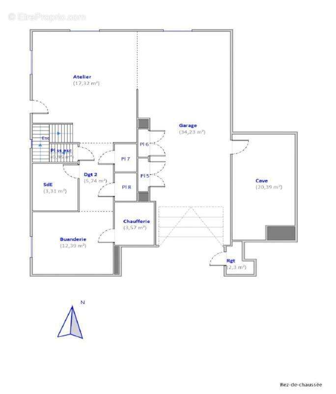
Son atout majeur ? Un sous-sol complet offrant de nombreux espaces fonctionnels : garage, cave, chaufferie, atelier et buanderie. Un véritable plus, rare sur le secteur, permettant de répondre à tous vos besoins de rangement ou d'aménagement.

À l'extérieur, le terrain constitue un véritable point fort : piscinable et doté d'un droit à construire résiduel de plus de 100 m², il offre de nombreuses possibilités d'aménagement, d'extension ou de création d'un espace de détente sur mesure.

Construite en 1974 et nécessitant un rafraîchissement, cette maison représente une belle opportunité pour personnaliser votre futur lieu de vie et valoriser tout son potentiel. Son emplacement, son environnement calme, ses volumes et ses possibilités d'évolution en font un bien particulièrement recherché sur le secteur.

Envie de découvrir ce havre de paix ? Contactez-nous dès maintenant pour organiser une visite.

Caractéristiques techniques

- Taxe foncière : 141 €
- DPE : F
- Mode de chauffage : fioul
- Mode de distribution de l'eau : électrique

Mentions légales :

Les informations présentées dans cette annonce ont été réunies avec soin par Zefir à partir des éléments disponibles au moment de la publication. Elles sont communiquées à titre indicatif et ne sauraient se substituer aux diagnostics réglementaires obligatoires ni aux vérifications techniques et administratives généralement requises (règles d'urbanisme, servitudes, documents cadastraux). Pour consulter les cartographies officielles relatives aux risques naturels, miniers et technologiques, nous vous invitons à consulter Géorisques. Zefir accompagne les candidats acquéreurs avec transparence et rigueur et peut fournir des précisions ou des documents complémentaires sur demande. Notre équipe reste à votre disposition pour toute information additionnelle.

Pour toute question, contactez Zefir au [Coordonnées masquées].
Voir plus

Référence: e90246f4-8e2a-4726-ba01-5d4aab
Honoraires à la charge du vendeur.
DPE
A
B
C
D
E
F
G
GES
A
B
C
D
E
F
G
Maison à CHAPONOST
Maison à CHAPONOST
Maison à CHAPONOST
Maison à CHAPONOST
Maison à CHAPONOST
Maison à CHAPONOST
Maison à CHAPONOST
Maison à CHAPONOST
Maison à CHAPONOST
Maison à CHAPONOST
Maison à CHAPONOST
Maison à CHAPONOST
Maison à CHAPONOST
Maison à CHAPONOST
Géorisques

Les informations sur les risques auxquels ce bien est exposé sont disponibles sur le site Géorisques : www.georisques.gouv.fr

Ce site est protégé par hCaptcha Politique de confidentialité et Conditions d’utilisation s’appliquent.

En poursuivant votre navigation sans modifier vos paramètres, vous acceptez l'utilisation de cookies susceptibles de réaliser des statistiques de visite. Cliquez ici pour plus d'informations