Bénéficiez des services de nos partenaires locaux soigneusement sélectionnés
pour vous accompagner dans votre parcours d'achat immobilier

Maison/appartement T5 de 143 m² avec terrasse et jardin

— Lissieu 69380 —
450 000 €
143 m² / 156 m²
5 pièces
parkingbalcon/terrassejardin

Nos partenaires locaux
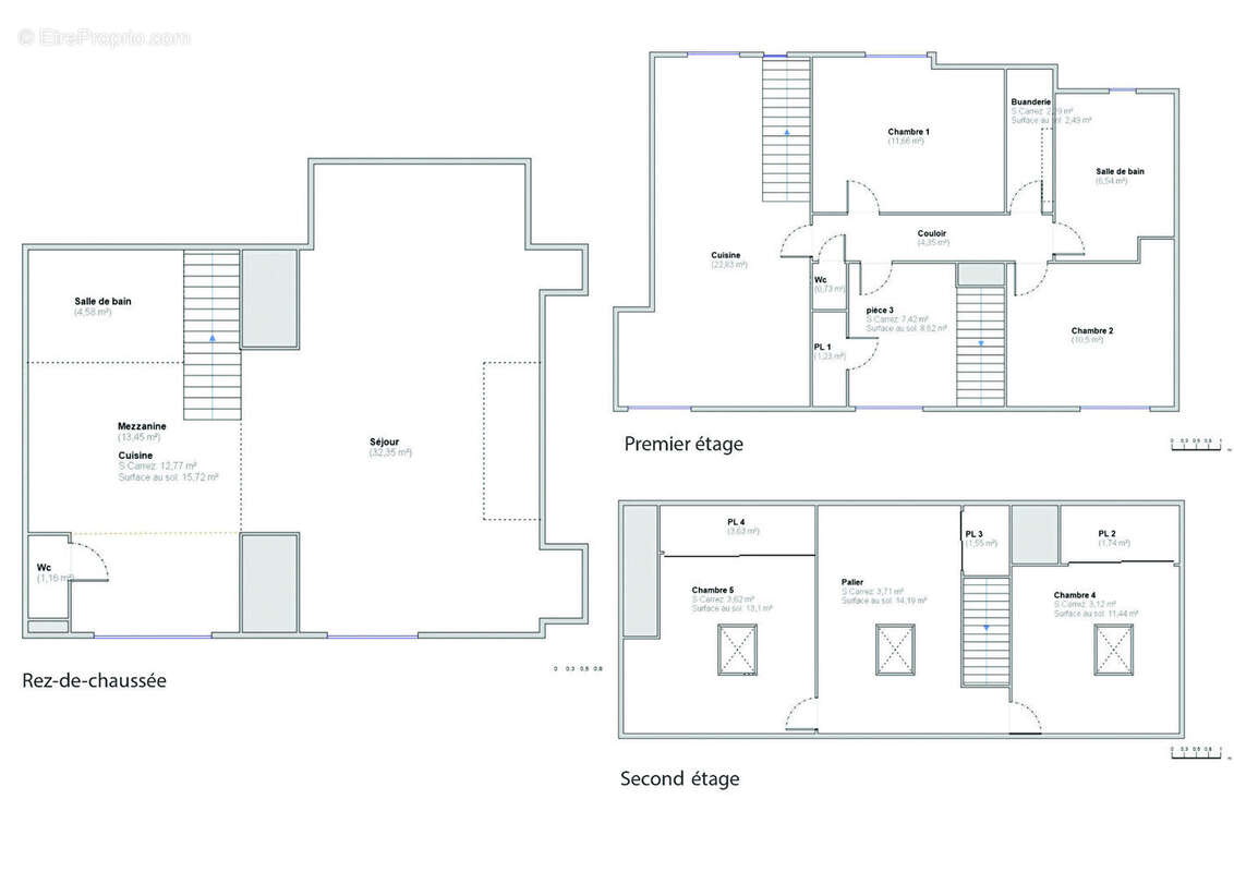
Domaine en pierres dorées, au coeur d'un parc arboré de deux hectares, venez découvrir ce T5 de charme entièrement rénové offrant 142 m² carrez (183 m² au sol) avec terrasse et jardin privatifs. Ce bien se compose : Au rez-de-chaussée : une vaste pièce de vie de 50 m² avec cuisine ouverte aménagée et équipée avec poêle à bois, ouvrant sur une terrasse exposée Est de 26 m², salle de bain, WC indépendant ainsi qu'une chambre en mezzanine avec poutres apparentes. Au premier niveau : une cuisine aménagée et équipée avec accès direct au jardin de 130 m², exposé Sud-Ouest, sans vis-à-vis avec vue sur la forêt. Ce niveau comprend également trois chambres dont une avec accès au jardin, salle de bain, WC indépendant et buanderie. Au second niveau : combles aménagés proposant deux chambres supplémentaires ainsi qu'un espace bureau. Deux places de stationnements complètent ce bien. Possibilité de division en deux logements avec entrées indépendantes. Bus à 250 m (accès direct Lyon Vaise), commerces et écoles à proximité. DPE D. "Les informations sur les risques auxquels ce bien est exposé sont disponibles sur le site Géorisques : www.géorisques.gouv.fr". Contact : Sélection Immobilier Dardilly au [Coordonnées masquées] ou [Coordonnées masquées]. Copropriété de 115 lots - dont 31 lots habitation. Charges annuelles : 3126 euros.
Voir plus

Bien en copropriété. Nombre de lots : 115. Charges de copropriété : 3126 €.
Honoraires à la charge du vendeur.
DPE
A
B
C
D
E
F
G
GES
A
B
C
D
E
F
G
Maison à LISSIEU
Maison à LISSIEU
Maison à LISSIEU
Maison à LISSIEU
Maison à LISSIEU
Maison à LISSIEU
Maison à LISSIEU
Maison à LISSIEU
Maison à LISSIEU
Maison à LISSIEU
Maison à LISSIEU
Maison à LISSIEU
Maison à LISSIEU
Maison à LISSIEU
Maison à LISSIEU
Maison à LISSIEU
Géorisques

Les informations sur les risques auxquels ce bien est exposé sont disponibles sur le site Géorisques : www.georisques.gouv.fr

Ce site est protégé par hCaptcha Politique de confidentialité et Conditions d’utilisation s’appliquent.

En poursuivant votre navigation sans modifier vos paramètres, vous acceptez l'utilisation de cookies susceptibles de réaliser des statistiques de visite. Cliquez ici pour plus d'informations