Bénéficiez des services de nos partenaires locaux soigneusement sélectionnés
pour vous accompagner dans votre parcours d'achat immobilier

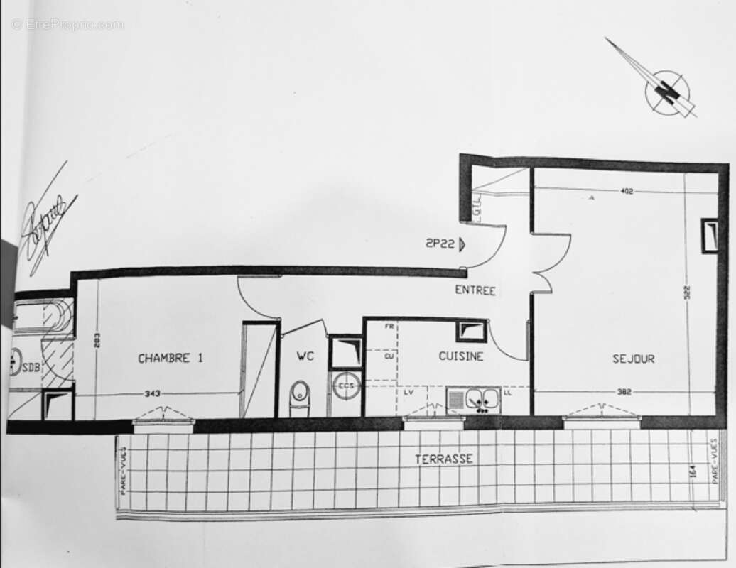
Dernier étage T2 et sa magnifique Terrasse plein ciel de 19m²!

— Asnieres-Sur-Seine 92600 —
370 000 €
58 m²
2 pièces
parkingbalcon/terrasseascenseur

Nos partenaires locaux
Asnières-sur-Seine -Centre (92600) En exclusivité MonEden immobilier vous présente dans une résidence récente (2002), découvrez ce magnifique 2 pièces au dernier étage, entièrement bordé par une terrasse de 19m² exposée Sud-Ouest, idéale pour profiter du ciel dégagé et des couchers de soleil. L'appartement, modulable en 3 pièces, se compose d'une entrée avec placard, d'un lumineux séjour de 20 m², d'une cuisine séparée (possibilité d'ouverture), de WC indépendants ainsi que d'une vaste chambre avec sa salle de bains attenante.( parking poss en sus pour 20000 euros) Toutes les pièces s'ouvrent sur la terrasse, offrant une belle continuité entre intérieur et extérieur. Un rafraîchissement est à prévoir, mais le potentiel et l'emplacement sont exceptionnels : Métro Gabriel Péri à 5 minutes, Hôtel de Ville à 10 minutes, Gare à 15 minutes. Un bien rare sur le secteur, à visiter sans tarder ! (3.35 % honoraires TTC à la charge de l'acquéreur.) Copropriété de 49 lots - dont 24 lots habitation. Charges annuelles : 1076 euros.
Voir plus

Référence: 61
Bien en copropriété. Nombre de lots : 49. Charges de copropriété : 1076 €.
Honoraires d'agence de 3.35% à la charge de l'acquéreur
Barème des honoraires
DPE
A
B
C
D
E
F
G
GES
A
B
C
D
E
F
G
Appartement à ASNIERES-SUR-SEINE
Appartement à ASNIERES-SUR-SEINE
Appartement à ASNIERES-SUR-SEINE
Appartement à ASNIERES-SUR-SEINE
Appartement à ASNIERES-SUR-SEINE
Géorisques

Les informations sur les risques auxquels ce bien est exposé sont disponibles sur le site Géorisques : www.georisques.gouv.fr

Ce site est protégé par hCaptcha Politique de confidentialité et Conditions d’utilisation s’appliquent.

En poursuivant votre navigation sans modifier vos paramètres, vous acceptez l'utilisation de cookies susceptibles de réaliser des statistiques de visite. Cliquez ici pour plus d'informations