Bénéficiez des services de nos partenaires locaux soigneusement sélectionnés
pour vous accompagner dans votre parcours d'achat immobilier

Clichy "centre-ville" - 2 pieces - 307 500 fai

— Clichy 92110 —
307 500 €
45 m²
2 pièces
parkingascenseur

Nos partenaires locaux
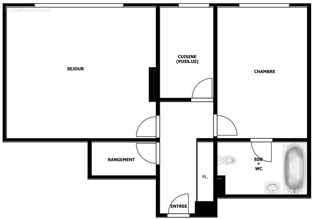
Entre la place des Martyrs et le métro Porte de Clichy (ligne 14), proche de toutes les commodités, au sein d'un immeuble semi récent et sécurisé avec gardien, Imax vous propose ce grand deux pièces à l'agencement idéal et donnant au calme sur le jardin de la copropriété. Au quatrième étage avec ascenseur, il se compose d'une entrée avec rangements, d'un séjour lumineux, d'une cuisine indépendante (poss. US), d'une grande chambre, d'une salle de bain avec wc et d'un dressing. Travaux de rafraichissement à prévoir. Une cave, un local vélos et un terrain de tennis complètent ce bien. Possibilité d'acquérir un emplacement de parking en sus du prix de vente. Mandat exclusif : V622 (3.19 % honoraires TTC à la charge de l'acquéreur.) Copropriété de 298 lots. Charges annuelles : 2500 euros.
Voir plus

Référence: V622
Bien en copropriété. Nombre de lots : 298. Charges de copropriété : 2500 €.
Honoraires d'agence de 3.19% à la charge de l'acquéreur
Barème des honoraires
DPE
A
B
C
D
E
F
G
GES
A
B
C
D
E
F
G
Appartement à CLICHY
Appartement à CLICHY
Appartement à CLICHY
Appartement à CLICHY
Appartement à CLICHY
Géorisques

Les informations sur les risques auxquels ce bien est exposé sont disponibles sur le site Géorisques : www.georisques.gouv.fr

Ce site est protégé par hCaptcha Politique de confidentialité et Conditions d’utilisation s’appliquent.

En poursuivant votre navigation sans modifier vos paramètres, vous acceptez l'utilisation de cookies susceptibles de réaliser des statistiques de visite. Cliquez ici pour plus d'informations