Bénéficiez des services de nos partenaires locaux soigneusement sélectionnés
pour vous accompagner dans votre parcours d'achat immobilier

Paimpol - Kerfot : Charmante longère en pierre avec grand terrain et hangar !

— Kerfot 22500 —
424 440 €
134 m² / 2 517 m²
6 pièces
parkingbalcon/terrassejardin

Nos partenaires locaux
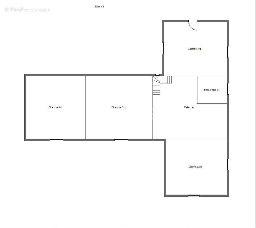
Laissez-vous séduire par cette authentique longère en pierre de 134 m², alliant charme de l'ancien et confort moderne, située à 2km de Paimpol, dans un environnement agréable et spacieux. Au rez-de-chaussée, vous découvrirez une belle pièce de vie lumineuse comprenant un salon-séjour ouvert sur une véranda orientée ouest, idéale pour profiter des longues soirées d'été. Un insert bois apporte une atmosphère chaleureuse et conviviale. La cuisine, aménagée et entièrement équipée, offre un espace fonctionnel et agréable. Vous disposerez également d'une salle d'eau ainsi que d'une buanderie pratique au quotidien. Dans le prolongement de la buanderie, une pièce supplémentaire de plus de 30 m² reste à aménager selon vos envies : cuisine d'été, chambre ou espace de vie, offrant la possibilité d'une vie de plain-pied. Le chauffage est assuré par une chaudière à granulés, garantissant confort et performance énergétique. A l'étage, la maison propose 4 chambres, dont 2 aux volumes généreux. La plus grande offre une sortie sur le jardin. Une salle d'eau avec WC complète cet étage. A l'extérieur, vous profiterez d'un jardin paysagé mature sur une parcelle de 2517 m². Un grand hangar de 130 m² offre de nombreuses possibilités. Prix FAI : 424 440 euros dont 4.80 % honoraires TTC à la charge de l'acquéreur. Rachel PEREZ (EI) Agent Commercial - Numéro RSAC : 930 727 979 - SAINT BRIEUC.
Voir plus

Référence: 34449
Honoraires d'agence de 4.8% à la charge de l'acquéreur
Barème des honoraires
DPE
A
B
C
D
E
F
G
GES
A
B
C
D
E
F
G
Maison à KERFOT
Maison à KERFOT
Maison à KERFOT
Maison à KERFOT
Maison à KERFOT
Maison à KERFOT
Maison à KERFOT
Maison à KERFOT
Maison à KERFOT
Maison à KERFOT
Maison à KERFOT
Maison à KERFOT
Maison à KERFOT
Maison à KERFOT
Maison à KERFOT
Maison à KERFOT
Maison à KERFOT
Maison à KERFOT
Maison à KERFOT
Maison à KERFOT
Maison à KERFOT
Maison à KERFOT
Maison à KERFOT
Maison à KERFOT
Géorisques

Les informations sur les risques auxquels ce bien est exposé sont disponibles sur le site Géorisques : www.georisques.gouv.fr

Ce site est protégé par hCaptcha Politique de confidentialité et Conditions d’utilisation s’appliquent.

En poursuivant votre navigation sans modifier vos paramètres, vous acceptez l'utilisation de cookies susceptibles de réaliser des statistiques de visite. Cliquez ici pour plus d'informations