Bénéficiez des services de nos partenaires locaux soigneusement sélectionnés
pour vous accompagner dans votre parcours d'achat immobilier

Maison 80 m² à Vernou-La-Celle-Sur-Seine

— Vernou-La-Celle-Sur-Seine 77670 —
186 000 €
80 m² / 303 m²
3 pièces
balcon/terrasse

Nos partenaires locaux
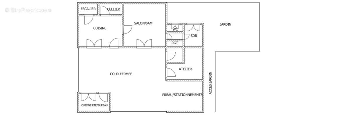
77670 – VERNOU LA CELLE sur SEINE – MAISON 3 PIÈCES, 2 CHAMBRES DE 79 M2 + DEPENDANCES effiCity, l'agence qui estime votre bien en ligne vous propose, cette jolie maison donnant sur une cour fermée et implantée sur un TERRAIN de 303 m². En RDC, elle se compose d'une cuisine aménagée et équipée, d'un cellier avec dressing, d'un séjour/SAM parqueté avec CHEMINEE, d'une SDB, d'un wc séparé. Au 1er étage, ce bien dispose de 2 grandes CHAMBRES parquetées dont une avec dressing. Une CAVE de 30 m², un atelier de plus de 26 m², un PREAU de plus de 28 m2 permettant d'accueillir 2 véhicules, une cuisine d'été ou bureau indépendant, un jardin avec PUIT complètent cet ensemble. A noter : potentiel d'agrandissement intéressant. Située à 5 mn des écoles et commerces, à 45/50 mn de Paris en train, 15 mn de Fontainebleau.
Les informations sur les risques auxquels ce bien est exposé sont disponibles sur le site Georisque : georisques. gouv. fr
Arnaud des Diguères - EI - est Agent Commercial mandataire en immobilier, immatriculé au Registre Spécial des Agents Commerciaux du Tribunal de Commerce de Melun sous le n°818554768.
Siège social du mandant : effiCity, 48 avenue de Villiers - 75017 PARIS - Société par Actions Simplifiée, société au capital de 132 373,05 euros, immatriculée au RCS Paris 497 617 746 et titulaire de la Carte professionnelle CPI 75[Coordonnées masquées]02 025 - CCI Paris IDF - Caisse de Garantie : GALIAN Assurances 89 rue de la Boétie 75008 Paris
Voir plus

Référence: 211931
Honoraires à la charge du vendeur.
Barème des honoraires
DPE
A
B
C
D
E
F
G
GES
A
B
C
D
E
F
G
Maison à VERNOU-LA-CELLE-SUR-SEINE
Maison à VERNOU-LA-CELLE-SUR-SEINE
Maison à VERNOU-LA-CELLE-SUR-SEINE
Maison à VERNOU-LA-CELLE-SUR-SEINE
Maison à VERNOU-LA-CELLE-SUR-SEINE
Maison à VERNOU-LA-CELLE-SUR-SEINE
Maison à VERNOU-LA-CELLE-SUR-SEINE
Maison à VERNOU-LA-CELLE-SUR-SEINE
Maison à VERNOU-LA-CELLE-SUR-SEINE
Maison à VERNOU-LA-CELLE-SUR-SEINE
Géorisques

Les informations sur les risques auxquels ce bien est exposé sont disponibles sur le site Géorisques : www.georisques.gouv.fr

Ce site est protégé par hCaptcha Politique de confidentialité et Conditions d’utilisation s’appliquent.

En poursuivant votre navigation sans modifier vos paramètres, vous acceptez l'utilisation de cookies susceptibles de réaliser des statistiques de visite. Cliquez ici pour plus d'informations