Bénéficiez des services de nos partenaires locaux soigneusement sélectionnés
pour vous accompagner dans votre parcours d'achat immobilier

Appartement récent

— Bussy-Saint-Georges 77600 —
295 000 €
70 m²
3 pièces
parkingbalcon/terrasseascenseur

Nos partenaires locaux
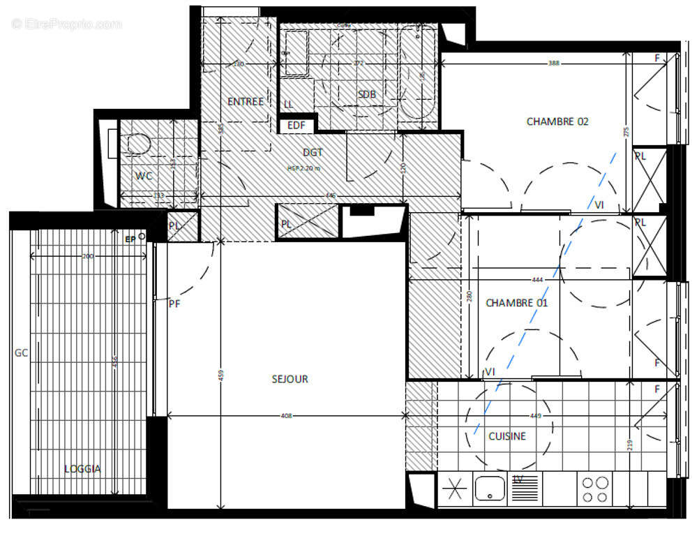
77600 BUSSY SAINT GEORGES - F3 DE 70M² - Quartier des SYCOMORES – TERRASSE – PARKING

Idéalement situé dans le quartier des Sycomores, à proximité de toutes commodités ; commerces, écoles, transports et axes autoroutiers,
Maryse Sangarin EffiCity, l'agence immobilière qui estime votre bien en ligne,
vous propose ce bel appartement de 3 pièces d'une superficie exacte de 67,30m² au 5ème étage d'une résidence neuve et sécurisée.

A vous la chance de pouvoir emménager dans un appartement sans avoir attendu les 2 ans de constructions !

Il se compose d'une entrée avec dégagement, d'une cuisine ouverte sur le séjour de 20m², donnant sur une loggia de 9m², de 2 belles chambres, d'une salle de bain et de WC séparé.
A noter qu'aucun logement se situe au-dessus de celui-ci !

1 place de parking en sous-sol vient compléter ce bien.

Les PLUS :
-un jardin potager partagé
-un espace de co-working de plus de 80m²
-une terrasse partagée

A visiter sans tarder !
Les informations sur les risques auxquels ce bien est exposé sont disponibles sur le site Georisque : georisques. gouv. fr
Maryse Sangarin - EI - est Agent Commercial mandataire en immobilier, immatriculé au Registre Spécial des Agents Commerciaux du Tribunal de Commerce de Meaux sous le n°909629495.
Siège social du mandant : effiCity, 48 avenue de Villiers - 75017 PARIS - Société par Actions Simplifiée, société au capital de 132 373,05 euros, immatriculée au RCS Paris 497 617 746 et titulaire de la Carte professionnelle CPI 75[Coordonnées masquées]02 025 - CCI Paris IDF - Caisse de Garantie : GALIAN Assurances 89 rue de la Boétie 75008 Paris
Voir plus

Référence: 211998
Bien en copropriété. Nombre de lots : 285. Charges de copropriété : 97 €.
Honoraires à la charge du vendeur.
Barème des honoraires
DPE
A
B
C
D
E
F
G
GES
A
B
C
D
E
F
G
Appartement à BUSSY-SAINT-GEORGES
Appartement à BUSSY-SAINT-GEORGES
Appartement à BUSSY-SAINT-GEORGES
Appartement à BUSSY-SAINT-GEORGES
Appartement à BUSSY-SAINT-GEORGES
Appartement à BUSSY-SAINT-GEORGES
Appartement à BUSSY-SAINT-GEORGES
Appartement à BUSSY-SAINT-GEORGES
Appartement à BUSSY-SAINT-GEORGES
Appartement à BUSSY-SAINT-GEORGES
Appartement à BUSSY-SAINT-GEORGES
Appartement à BUSSY-SAINT-GEORGES
Appartement à BUSSY-SAINT-GEORGES
Appartement à BUSSY-SAINT-GEORGES
Appartement à BUSSY-SAINT-GEORGES
Appartement à BUSSY-SAINT-GEORGES
Appartement à BUSSY-SAINT-GEORGES
Géorisques

Les informations sur les risques auxquels ce bien est exposé sont disponibles sur le site Géorisques : www.georisques.gouv.fr

Ce site est protégé par hCaptcha Politique de confidentialité et Conditions d’utilisation s’appliquent.

En poursuivant votre navigation sans modifier vos paramètres, vous acceptez l'utilisation de cookies susceptibles de réaliser des statistiques de visite. Cliquez ici pour plus d'informations