Bénéficiez des services de nos partenaires locaux soigneusement sélectionnés
pour vous accompagner dans votre parcours d'achat immobilier

F4 récent avec terrasse plein sud ? Résidence de standing 2019 ? Ermont / Eaubonne

— Saint-Gratien 95210 —
349 900 €
77 m²
4 pièces
ascenseur

Nos partenaires locaux
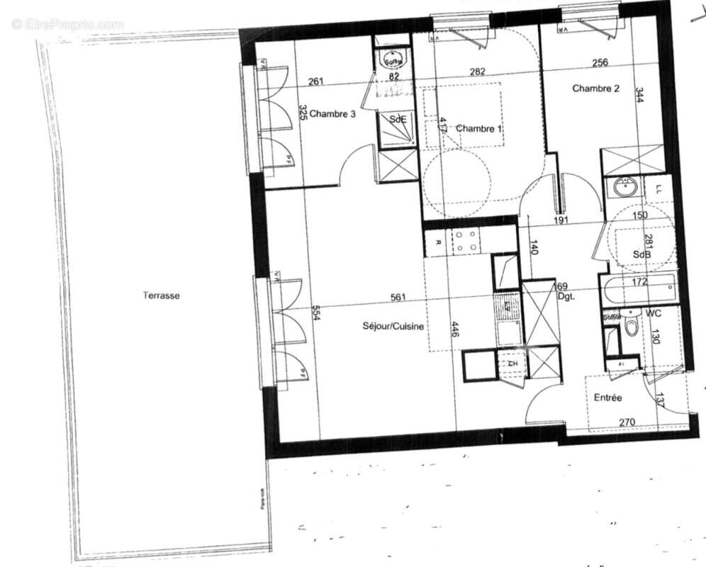
Dans une résidence moderne et sécurisée de 2019 (normes RT2012), idéalement située à 11 minutes à pied de la gare Ermont / Eaubonne (lignes H, J et RER C), découvrez ce très bel appartement 4 pièces de 76,3 m², en parfait état, sans travaux à prévoir. L'appartement se compose d'une entrée, d'un séjour lumineux de 28 m² avec cuisine ouverte haut de gamme (plan de travail en granit), offrant un accès direct à une superbe terrasse de 46 m² exposée plein sud, sans vis-à-vis, bénéficiant d'un ensoleillement optimal toute la journée. Côté nuit, vous trouverez trois chambres, dont une chambre parentale de 12,5 m², deux chambres de 9 m², ainsi qu'une chambre disposant de sa propre salle d'eau. Toutes les chambres sont équipées de placards et donnent sur la cour intérieure, au calme. Une salle de bain avec baignoire, des WC séparés ainsi que de nombreux rangements dans les dégagements complètent ce bien. Deux places de stationnement en sous-sol sont incluses. Appartement entièrement repeint, chauffage individuel au gaz, excellente isolation permettant de réaliser des économies d'énergie. Charges de copropriété : 175 euros par mois (incluant eau froide, entretien des parties communes, ascenseur et espaces verts). Copropriété de 80 lots, sans procédure en cours. Garantie décennale valable jusqu'en 2029. Proche des commerces, écoles et accès rapide à l'A15. Appartement lumineux, fonctionnel, avec un extérieur rare sur le secteur.
Voir plus

Référence: 1091
Bien en copropriété. Charges de copropriété : 2100 €.
Honoraires à la charge du vendeur.
Barème des honoraires
DPE
A
B
C
D
E
F
G
GES
A
B
C
D
E
F
G
Appartement à SAINT-GRATIEN
Appartement à SAINT-GRATIEN
Appartement à SAINT-GRATIEN
Appartement à SAINT-GRATIEN
Appartement à SAINT-GRATIEN
Appartement à SAINT-GRATIEN
Appartement à SAINT-GRATIEN
Appartement à SAINT-GRATIEN
Appartement à SAINT-GRATIEN
Appartement à SAINT-GRATIEN
Appartement à SAINT-GRATIEN
Appartement à SAINT-GRATIEN
Appartement à SAINT-GRATIEN
Appartement à SAINT-GRATIEN
Géorisques

Les informations sur les risques auxquels ce bien est exposé sont disponibles sur le site Géorisques : www.georisques.gouv.fr

Ce site est protégé par hCaptcha Politique de confidentialité et Conditions d’utilisation s’appliquent.

En poursuivant votre navigation sans modifier vos paramètres, vous acceptez l'utilisation de cookies susceptibles de réaliser des statistiques de visite. Cliquez ici pour plus d'informations