Appartement 48 m² à Morzine

— Morzine 74110 —
360 000 €
48 m²
2 pièces
parkingbalcon/terrasse

Le Domaine de l'Ardoise offre une opportunité intéressante d'acquérir un appartement neuf à proximité du centre de Morzine, à seulement 2 km et à quelques minutes à pied des navettes gratuites reliant les pistes et le centre du village. Situé dans un environnement calme, sur un versant exposé plein sud avec une vue dégagée sur les montagnes, le programme propose une large sélection d'appartements à des prix attractifs à partir de 360 000 €.

Ce nouveau développement apporte un concept moderne à Morzine, avec des résidences et chalets de taille plus intimiste, intégrés dans un cadre paisible et très ensoleillé. Le projet est réalisé par un promoteur fiable et reconnu, garantissant une construction de qualité et des prestations soignées.

La résidence bénéficie d'un emplacement privilégié sur un versant sud offrant une vue panoramique et un accès facile au domaine skiable grâce aux navettes gratuites à proximité. Elle propose des appartements du T2 au T3 ainsi que des chalets individuels ou mitoyens du T4 au T6.

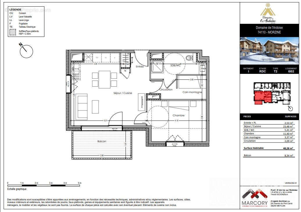
L'appartement I002 est un T2 de 48,3 m² situé en rez-de-chaussée, composé d'une entrée avec placard, d'un séjour lumineux avec cuisine ouverte, d'une chambre confortable, d'un coin montagne, ainsi que d'une salle de bain moderne avec WC. L'appartement dispose également d'un balcon exposé plein sud de 8,34 m².

La résidence propose des prestations de qualité et des équipements modernes pensés pour le confort, avec notamment un chauffage au sol, des cuisines et salles de bains contemporaines, du parquet dans les pièces de vie et les chambres, du carrelage grand format dans les salles de bains, ainsi que des espaces de vie ouverts et fonctionnels. Tous les logements bénéficient de balcons ou terrasses profonds.

Construite selon les normes RT2012, la résidence offre une excellente isolation thermique et acoustique ainsi qu'une consommation énergétique réduite. L'achat dans le neuf permet également de bénéficier de frais de notaire réduits d'environ 2,2 à 2,5 % au lieu de 7,5 %, ainsi que d'une garantie décennale.

Caractéristiques :
Casier à skis
Cave privative
Possibilité d'acquérir un garage en supplément


Honoraires à la charge du vendeur. DPE en cours. Les informations sur les risques auxquels ce bien est exposé sont disponibles sur le site Géorisques : georisques.gouv.fr.
Voir plus

Référence: VA2538-MC
Honoraires à la charge du vendeur.
Barème des honoraires
Appartement à MORZINE
Appartement à MORZINE
Appartement à MORZINE
Appartement à MORZINE
Appartement à MORZINE
Appartement à MORZINE
Appartement à MORZINE
Appartement à MORZINE
Géorisques

Les informations sur les risques auxquels ce bien est exposé sont disponibles sur le site Géorisques : www.georisques.gouv.fr

Ce site est protégé par hCaptcha Politique de confidentialité et Conditions d’utilisation s’appliquent.

En poursuivant votre navigation sans modifier vos paramètres, vous acceptez l'utilisation de cookies susceptibles de réaliser des statistiques de visite. Cliquez ici pour plus d'informations